Casa MoMa
Estudio Tecalli
Casa MoMa se encuentra en el estado de Puebla, México, en la localidad de San Pedro Cholula. Esta población es una de las zonas de crecimiento de la metrópoli angelopolitana, aun así, al interior de la trama urbana se encuentran todavía muchas parcelas dedicadas a la agricultura, ladrilleras, talleres, fábricas y demás oficios y microempresas tradicionales.
El cliente es una pareja joven, que aprovecharon exitosamente, durante la pandemia por COVID-19, las oportunidades que otorgó el trabajo desde casa. Por ello, el programa arquitectónico se presenta inicialmente como una alternativa a los modelos convencionales de vivienda en México.
Este proyecto familiar se encuentra en una antigua zona de recreo privada, convertida ahora en fraccionamiento residencial. Quedan preservadas en ese espacio varias hileras de árboles de pino de considerable altura, los cuales crean un microclima al interior de la lotificación, más húmedo y templado que el clima promedio del Valle de Puebla.
El lote presenta una particularidad que lo diferencia de la mayoría de los predios inmobiliarios de la zona. Se trata de un frente mayor a su profundidad, 13 metros x 8 metros de fondo, lo que condiciona todas las premisas de diseño y presenta la oportunidad de trazar una fachada más ancha y aprovechar de mejor manera el oriente de la fachada para, así, dotar a la casa de luz natural durante las mañanas.
Para este proyecto se propuso una materialidad típica de la región Puebla-Tlaxcala: ladrillo de barro rojo y azulejos de talavera típica combinados con procesos constructivos contemporáneos como el concreto aparente y el cristal. Para la ventanería se pensó en la herrería como un llamado a las arquitecturas modernas de mediados del siglo XX en México, cuyas ventanas y soluciones resultan memorables y atractivas, características que se han perdido en la actualidad.
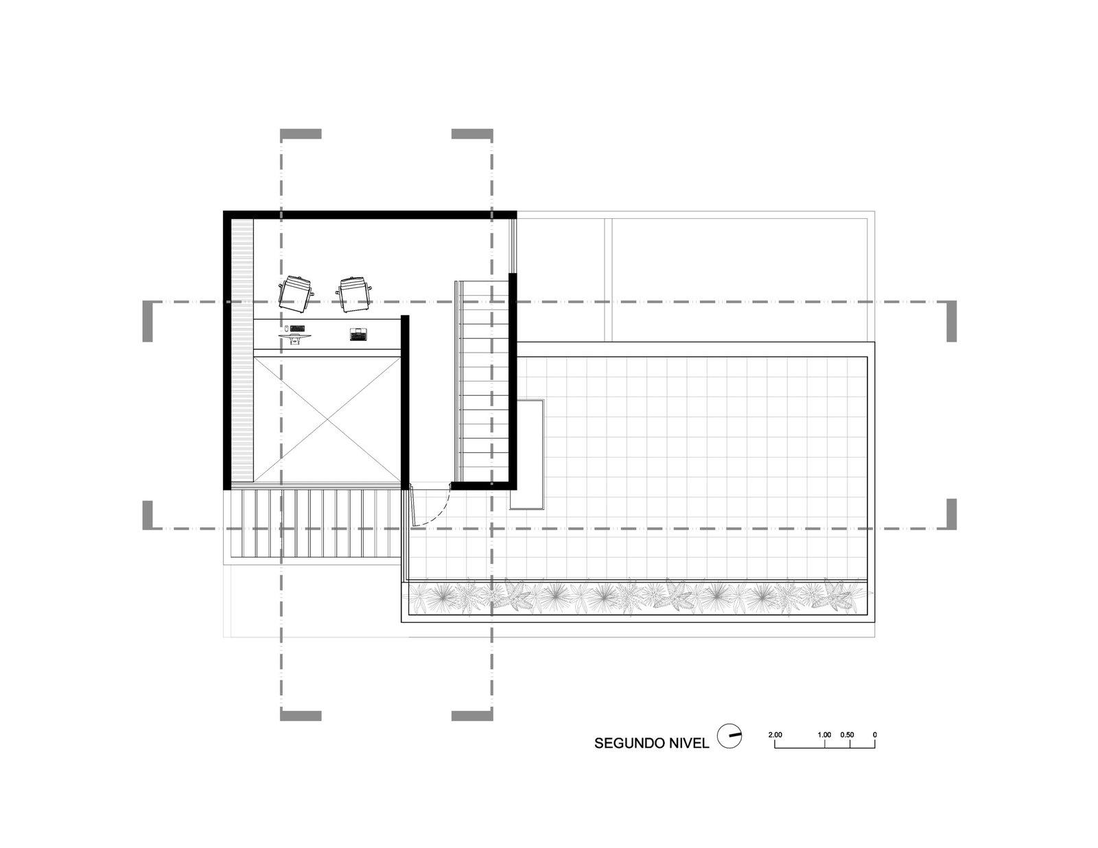
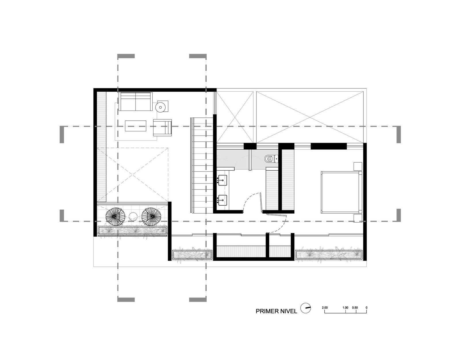
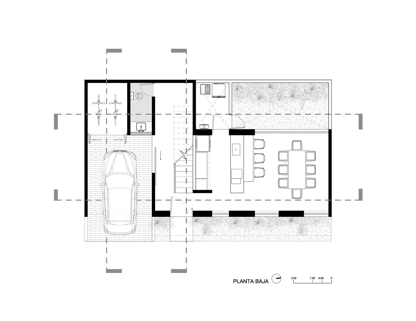
Se elimina la sala, un segundo espacio para auto, y la segunda habitación para dar paso a diferentes recursos programáticos que enriquecen la propuesta arquitectónica. En planta baja, se propone un sólo lugar de estacionamiento y se agrega una bodega grande. La omisión de la sala se proyecta debido a que el cliente es mucho más asiduo a las dinámicas sociales que suceden alrededor de la cocina. El espacio de comedor, entonces, se nutre de las luces de la mañana y el atardecer, teniendo como remate un patio adornado con una celosía de barro que da lugar para disponer de plantas con macetas diversas a libre estilo.
El espacio principal de la casa es un estudio a doble altura; su ventanal provoca una entrada de la luz y calor solar provechoso a lo largo del día. Está diseñado para dispersión adecuada de la acumulación de calor que evita el efecto invernadero. Los acabados que complementan la casa se conforman por losas artesanales de madera y concreto pulido en pisos, los cuales aminoran el costo de la casa y que no compromete la calidad de la construcción gracias a la mano de obra local de los constructores expertos de esta región.
Créditos del Proyecto
Arquitectura: Estudio Tecalli
Año de proyecto: 2023
Ubicación: San Pedro Cholula, Puebla
Superficie de construcción: 189m2
Materiales: Concreto, ladrillo rojo, madera, acero, cristal
Fotografía:Amy Bello y Roberto Martinez.




