Casa PDC
Central de Proyectos SCP

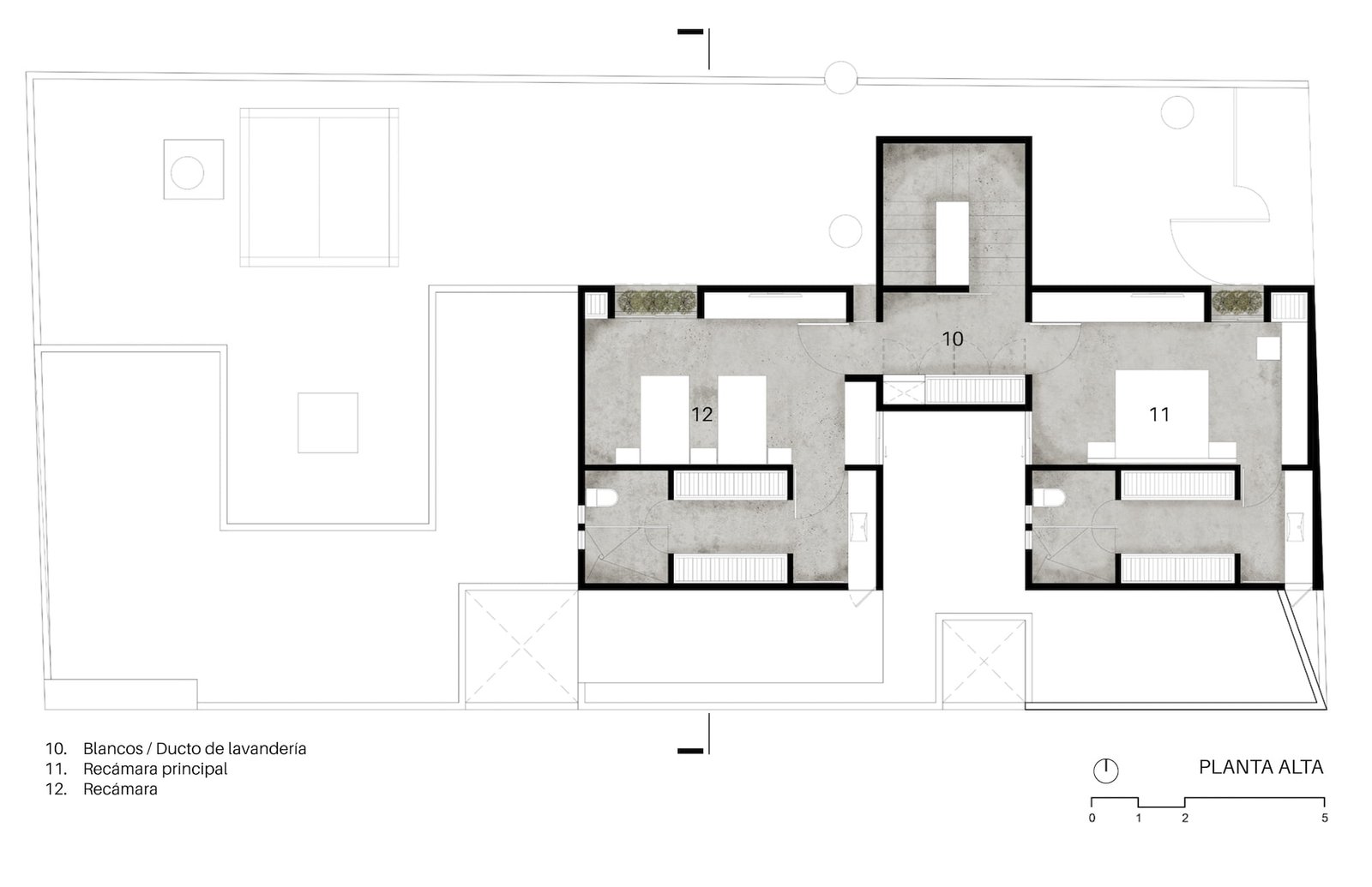
La estrategia de diseño de esta vivienda parte de una apuesta por la honestidad constructiva artesanal, el respeto al contexto natural en una zona urbana, y la búsqueda de una forma de habitar donde la austeridad material brinde calidad espacial. El cuerpo principal de la casa es ubicado en la colindancia sur del terreno, respetando los 3 árboles frutales preexistentes del costado norte y aprovechando la mejor ventilación y luz natural. El programa, que contempla 2 habitaciones, área social, un estudio familiar y servicios, se concentra en un bloque monolítico para reducir su huella. Como estrategia principal, el volumen inclina su cubierta 21 grados creciendo hacia el norte, donde se ubican las habitaciones, y reduce su altura hacia el sur, donde se ubican los servicios. La sustracción y giro de un segmento central genera un desfase en planta alta que permite la ventilación cruzada en habitaciones, así como el alojamiento de equipos de azotea y la ubicación de las áreas de servicio y ductos de instalaciones de la casa. En sección, la composición permite la circulación de viento norte-sur y el enfriamiento la cocina mediante un efecto de sifón generado por el escape de aire caliente en ese espacio de mayor altura que el resto.
La solución constructiva contempla la honestidad material en todos los elementos. Los muros de concreto aparente, cimbrados con madera de reciclaje y de tercera calidad, nos permiten un acabado imperfecto coherente con lo austero de la cubierta, pero contrastado con la limpieza y continuidad volumétrica del enmasillado en planta alta. Dado que una gran carga económica reside en los metros de cubiertas y el modelo de piso a elegir, se optó por eliminar totalmente los acabados en ambos, utilizando pisos de concreto pulido aparente y, con el fin de expresar el desempeño constructivo y estructural, el entrepiso y azotea utilizan un sistema de viguetas de concreto aparentes en combinación con piezas abovedadas, diseñadas y fabricadas con un molde artesanal de herrería local. El diseño de esta pieza permitió tener la misma cantidad de concreto en el colado de la capa de compresión que una bovedilla tradicional, mientras que reduce peso de la losa al contar con una masa menor por pieza.
Créditos del Proyecto
Proyecto arquitectónico: Central de Proyectos SCP
Arquitectos a cargo: Arq. Ana Laura Puig Casares, Arq. Eduardo Calvo Santisbón.
Ingeniería estructural: ADECSA.
Construcción: Central de Proyectos SCP
Ubicación de proyecto: Mérida, Yucatán, México.
Superficie construida: 320 m2
Año: 2018
Fotógrafo: Eduardo Calvo Santisbón





