CUBO ROJO
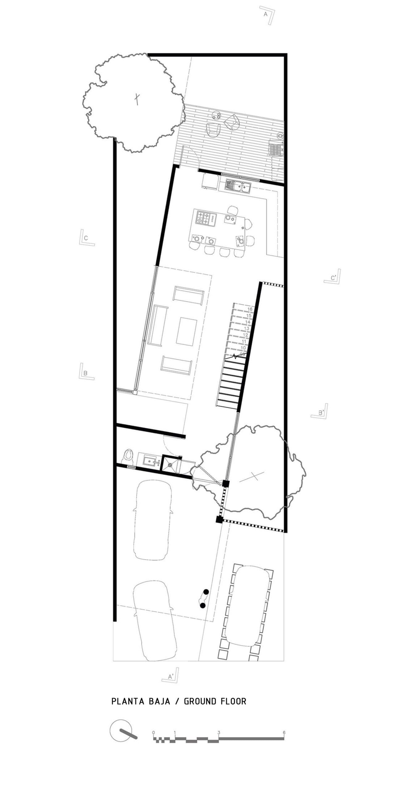
El proyecto tiene como protagonista a un gran mezquite en el terreno, que cuenta con una superficie más profunda que ancha, se decide alargar los recorridos dentro de la casa para aprovechar la mayor cantidad de espacio habitable sin tener espacios residuales.
Un arduo ejercicio de integración del mezquite con la casa, donde el resultado fuera una sinergia entre lo natural y lo construido, así como una relación constante interior-exterior, de esta forma se opta por el respeto al árbol en su totalidad sin tocarlo ni envolverlo , lo que dio como resultado un eje diagonal que nos brinda el lado más largo del sitio, generando una deconstrucción de la tipología de casa común en la zona que se caracteriza por un patio-cochera al frente y un patio ajardinado al fondo, en éste caso el eje diagonal del proyecto nos da la oportunidad de crear dos patios y jardines a los lados, separándonos así de las colindancias, dándole iluminación y ventilación a toda la casa.
Siguiendo con el deseo de incorporar el árbol en todo momento a la casa, se origina en la planta alta una terraza cuya sombra se genera por la copa del mismo árbol, haciendolo vivir desde todos sus ángulos, tomando la analogía de la “casita del árbol” que muchos soñamos de pequeños.
Los materiales predominantes del proyecto son en términos generales concreto, barro y cristal; elementos que relacionamos con la piedra, tierra y el aire que son la esencia del sitio. A su vez, estos se vuelven elementos arquitectónicos que le dan un carácter acogedor a la casa.
Los muros de concreto aparente, la losa flotante e incluso el piso de concreto en planta baja, buscan la atemporalidad y a su vez, cederle el protagonismo a la vegetación de los jardines laterales y al árbol mismo. Se buscó incorporar elementos tradicionales de la arquitectura mexicana como las celosías de barro, las losetas de zotehuela , las bóvedas y el mosaico artesanal, evocando a la memoria del hogar.
En planta alta se encuentra el área privada con dos habitaciones que se conectan a través de un puente desde el cual apreciamos la amplitud del espacio por medio de la doble altura de la estancia, a su vez estas habitaciones comparten la terraza ya mencionada, y mediante la cual podemos tener un diálogo directo entre el árbol, la persona y el cielo, siendo quizás el espacio más íntimo.
La fachada se cierra al poniente para proteger del asoleamiento del suroeste y respira a través del este, iluminándose por el sol de la mañana. Hacia la calle tenemos un volumen que es soportado por un par de columnas inclinadas y por un muro de concreto, nuevamente tenemos una analogía del árbol que emerge de la tierra y es cubierto por su follaje; a un costado y conviviendo de la mano, tenemos al gran árbol en primer plano parcialmente vestido por una celosía que desde el exterior nos permite apreciarlo, pero que deja cierto misterio para invitar a recorrer el espacio por dentro.
Créditos del Proyecto
Arquitectura: Cubo Rojo
Equipo de trabajo: Alejandro Vargas, Eduardo Tapia, Omar López y Christian Villanueva.
Colaboradores: Oliver Fernando Arturo
Ubicación: Calle Quinta los Pirules # 168 Col. Quinta los Naranjos, León, Guanajuato, México.
Área: 200.00 m2
Año: 2017
Fotografía: César Béjar Studio





