OAX Arquitectos
Se encuentra en un predio de dimensiones irregulares en el fraccionamiento privado “El Refugio” El Uro, Nuevo León.
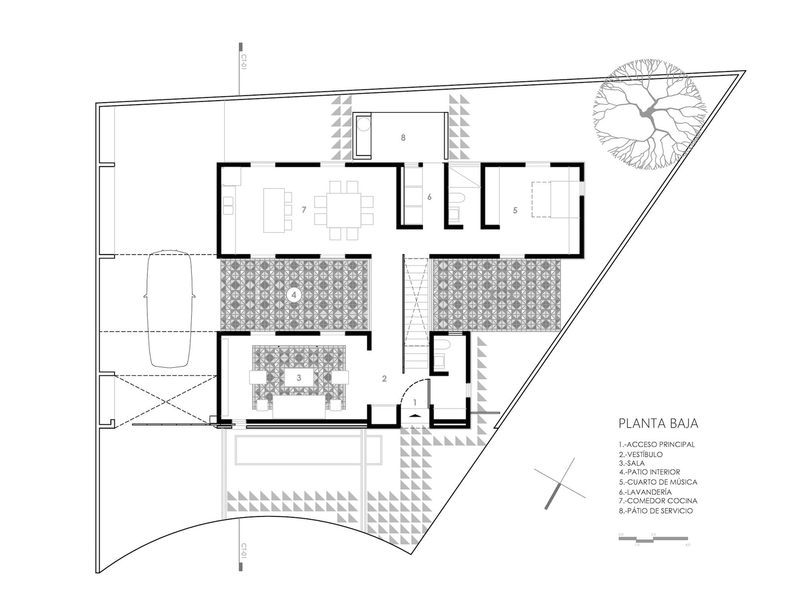
Se compone de dos volúmenes antepuestos que solventan en su interior las necesidades y requerimientos de sus usuarios dando como resultado un partido arquitectónico simple que contiene una sucesión de tres patios dispuestos en sentido longitudinal.
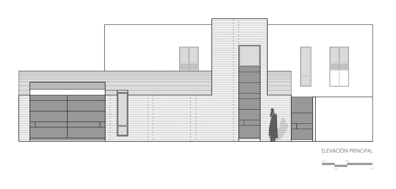
El volumen frontal se resuelve en un solo nivel remarcando únicamente el acceso principal a doble altura para rematar la fachada y a la cual se consigue accesar a través de una disposición de huellas de concreto en forma triangular descansadas en un atrio de tierra compactada de la región que ceden continuidad a la calle y a la banqueta del fraccionamiento.
El volumen posterior es de dos niveles y se separa del volumen frontal por un patio central corrido que funciona como una extensión de las áreas sociales , cocina y de estudio en planta baja y que además facilita la ventilación, las vistas y el asoleamiento del conjunto, este patio es seccionado en dos por una escalera dentro de un tercer volumen acristalado que integra las conexiones vertical y horizontal de la vivienda. El patio posterior tiene dos áreas jardinadas que envuelven la zona de patio de servicio y lavandería y que permiten la continuidad de las vistas desde la casa.
El área techada del estacionamiento funciona además como una extensión del patio, convirtiéndose en un área flexible de estar.
La materialidad resalta al concreto como recurso principal, aplicado con cimbra aparente en fachada, en el piso de forma pulida y con piso de pasta(cemento con color) en los detalles, además del uso del acero en la manguetería, portones, puertas y escalera.
En la vivienda se contempló el uso de plantas endémicas y/o de bajo mantenimiento. En el acceso se utilizaron cactáceas como el nopal y el órgano, así como la hierba de potro, un árbol estilizado que provoca sombra pero que también permite seguir viendo la geometría de la casa. En el patio central se utilizó una enredadera de jazmín de la India a manera de parra para tamizar la luz y en el patio posterior se remató el jardín con un olmo.
Casa Pía es el resultado de una transformación de una casa de campo a una vivienda suburbana sin perder el sentido de conexión del edificio con el exterior, pero a su vez filtrando la espacialidad a zonas más privadas, más íntimas y de uso exclusivo de sus habitantes, es una reinterpretación de la arquitectura mexicana de la segunda mitad de siglo pasado con un nuevo carácter formal.
Créditos del proyecto:
Autor: Arq. José García Toledo
Colaboradores:Ing. Eduardo Vásquez Velásquez
Arq. Fernanda Roiz Silva
LDI Andrea García Aragón
LDI Luis Carlos Rodríguez González
LDI Sinuhé Machuca Esquivel
Arq. Krizia Nasser
Arq. Christian López
Agradecimientos:
Patricio Betteo, escalas humanas
Ubicación:
Fraccionamiento El Refugio, El Uro, Nuevo León, México.
Área: 200 M2
Año: 2017
Fotografía: Arq. Francisco Martín Alvarez de la Vega / The Raws





