ARQMOV Workshop
La redensificación de distintos puntos de la ciudad de México ha sido un tema muy importante dentro del sector de la construcción. Distintas vías, áreas verdes y zonas urbanas han sido intervenidas positivamente con el fin de brindar espacios públicos dignos y en pro de la salud pública de los habitantes.
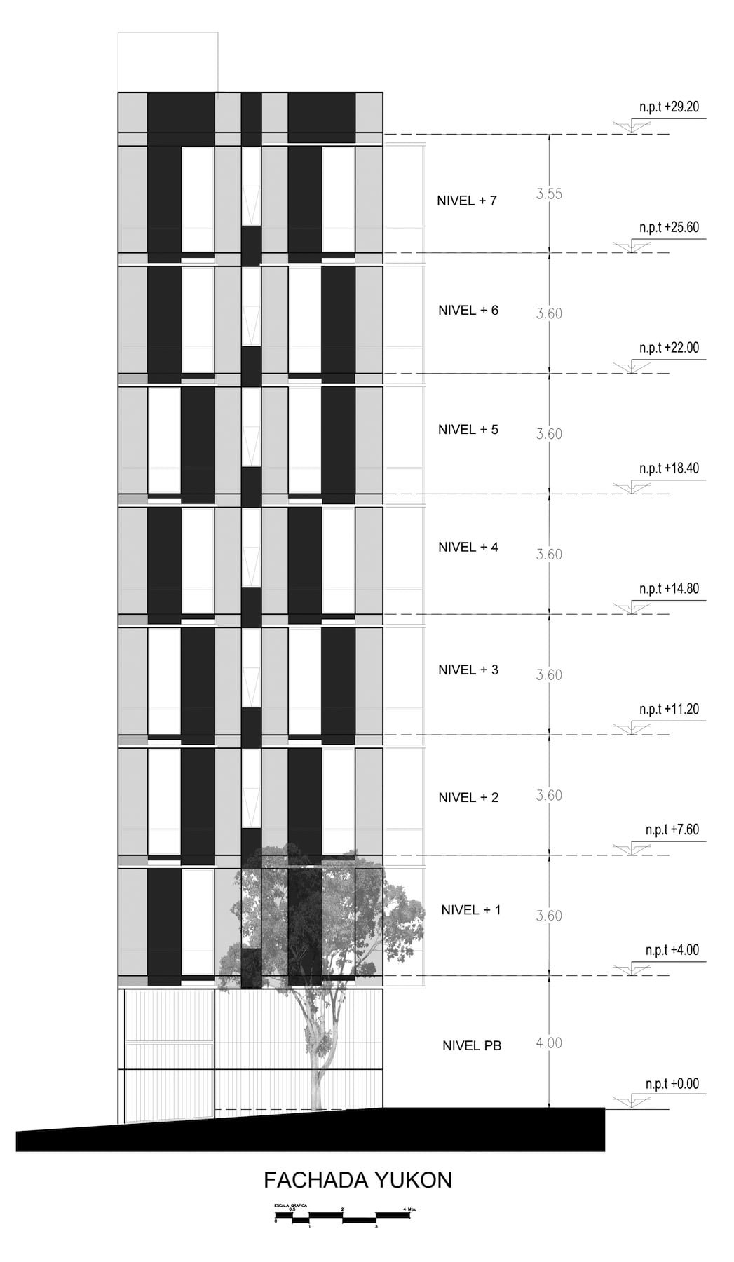
Partiendo de estas premisas nos vimos con el reto de edificar una construcción destinada a vivienda vertical multifamiliar de 8 niveles, compuesta por planta baja y 7 departamentos, en un predio donde anteriormente se ubicaba una deteriorada casa habitación unifamiliar.
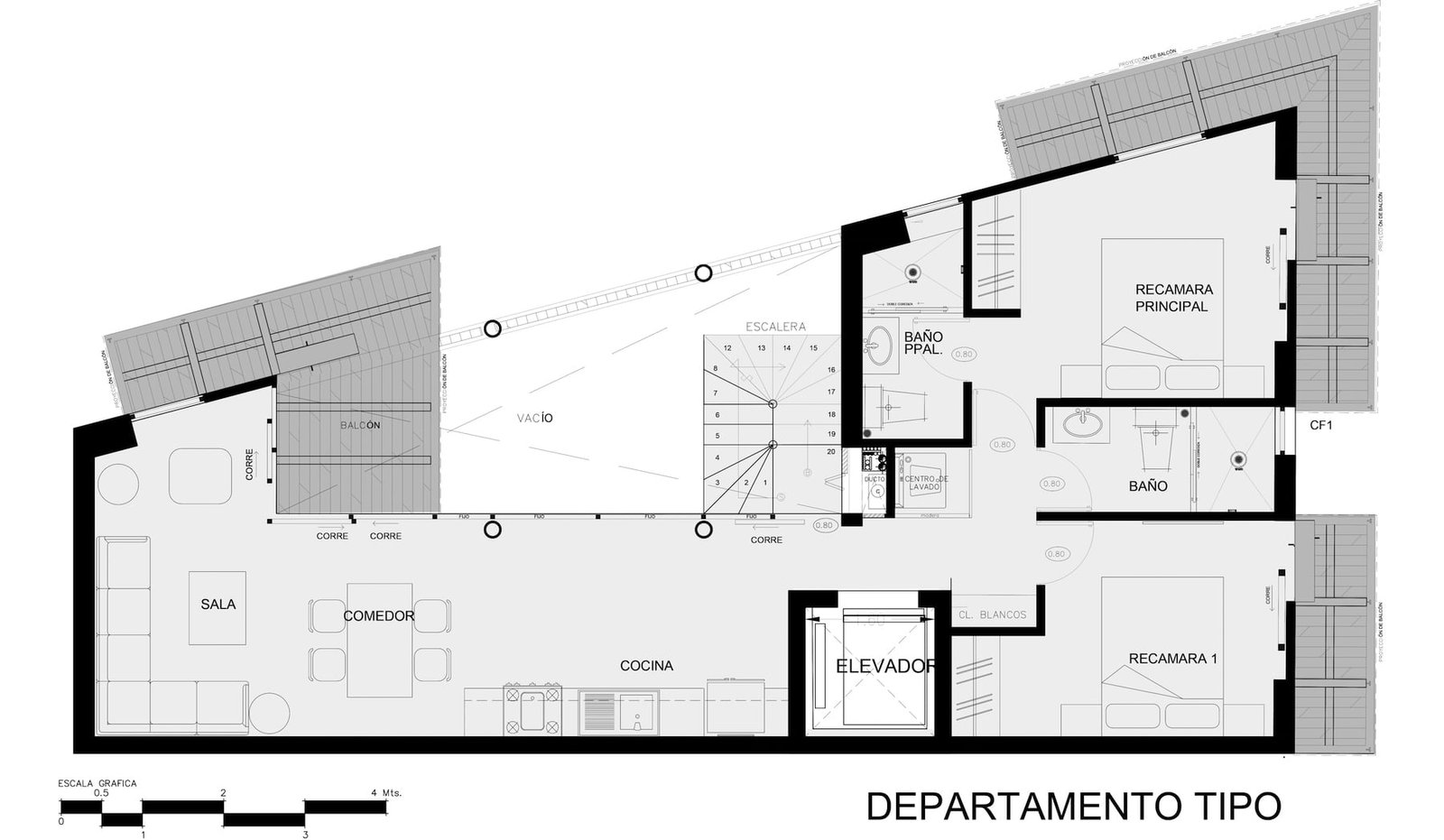
El terreno donde se ubica el edificio de departamentos, cuenta con una superficie de 92m2, presenta una forma irregular trapezoidal con dos frentes de calle, uno de ellos de 8 metros lineales que se reducen a únicamente 4 metros en el fondo del terreno y el segundo frente de 15m de largo con vista hacia una de las avenidas más importantes en CDMX, a lo largo de la cual corre un parque lineal construido sobre el Rio de la Piedad un rio entubado de aguas negras..
Uno de los retos más importantes de este proyecto fue precisamente las dimensiones e irregularidad del predio, aunado a la responsabilidad de diseñar y edificar en un punto tan importante de la ciudad, con impacto a nivel urbano al tratase de una zona donde aún se está trabajando en transformar el espacio público y en abrir paso a la redensificación.
El edificio se desplanta sobre nivel de banqueta, desde la cual se tiene acceso inmediato a una planta libre donde se ubican estacionamiento y recepción. En Cada uno de los niveles subsecuentes se desarrolla un departamento de 72 m2 con 19m2 de terrazas y balcones.
La conexión entre entrepisos se da a través de un elevador con acceso directo a cada departamento. Así mismo se diseñó una escalera metálica de servicio, un elemento muy importante en la fachada del edificio.
El diseño busca resaltar la verticalidad y esbeltez del edificio, la estructura fue diseñada como un monolito de concreto, donde el color y la textura de cada elemento representan la esencia total del edificio, el juego de cartelas de dos tonos de concreto genera dinamismo al interior y exterior de la fachada y a su vez se hace contraste de colores y sensaciones con la madera que aporta calidez y confort a los espacios interiores. Cada uno de los elementos, como las líneas verticales en los balcones y la escalera suman a la verticalidad del edificio. Los materiales que lo componen son materiales atemporales que envejecerán de acuerdo a su propia naturaleza.
Para lograr la iluminación y ventilación de todos los espacios se decide tomar el máximo de altura permitida para cada uno de los entrepisos, lo que además permite brindar amplitud a los espacios interiores y abrir las vistas hacia el exterior, permitiendo que desde cada uno de los departamentos se pueda tener un panorama distinto de la ciudad y sus andadores.
Créditos del Proyecto
Proyecto arquitectónico:
ARQMOV Workshop.
Arquitectos a cargo:
Fabio Correa Martínez, Eduardo Micha Mizrahi, Gabriel Merino.
Equipo:
Miguel Angel Chiney Tapia, Christian Rodriguez Santa Ana, Oscar Osorio Santos, Maricruz Pérez Mendoza, Daniel Miranda Rendon.
Ingeniería:
Gerson Huerta.
Ubicación de proyecto: Ciudad de México.
Año: 2018.
Superficie construida: 564 m2.
Fotógrafo:
Rafael Gamo.




