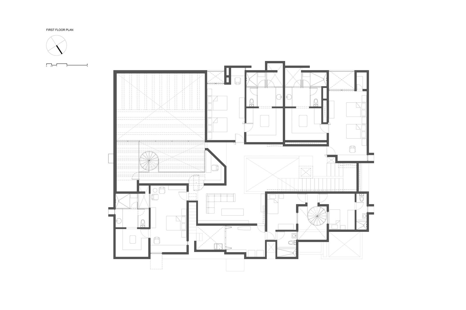
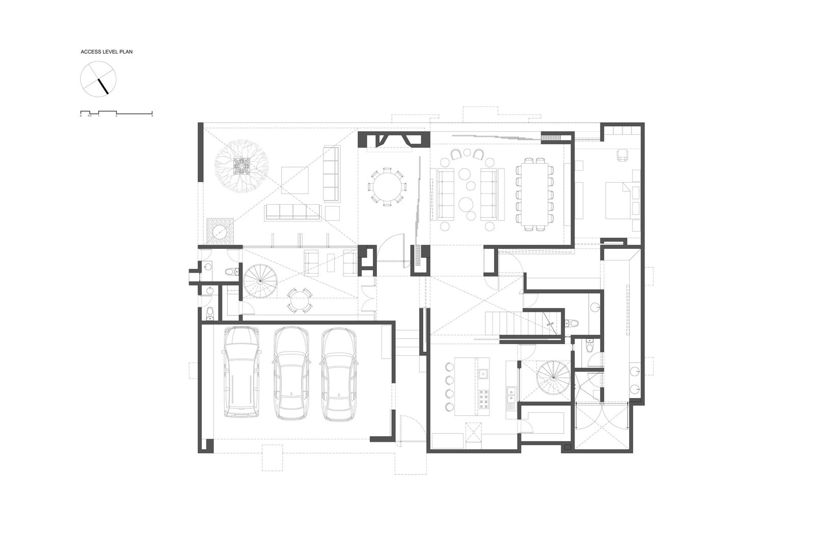
Casa HMZ
Lucio Muniain et al
Una sinfonía de luces, sombras y tranquilidad en medio de San Luis Potosí, México. Lucio Muniain et al crean una enigmática maravilla arquitectónica.
Ubicada dentro de los pintorescos paisajes de un campo de golf en San Luis Potosí, México, HMZ House trasciende los límites convencionales, inspirándose en la dedicación a la arquitectura sensorial, la vida interior y la perfecta integración de elementos naturales. Esta residencia es un testimonio de la fusión armoniosa de una estética dramática, un ambiente sereno y la danza de la luz dentro de su diseño arquitectónico.
Los aspectos más fascinantes de la HMZ House no se describieron inicialmente en el programa de propietarios. Al revelar una narrativa de misterio y exploración, el arquitecto ideó caminos que elevan el viaje entre espacios domésticos típicos a una experiencia inmersiva. La altura, la estrechez, la distancia, las sombras y la luz asumen roles fundamentales, esculpiendo la trama de esta joya arquitectónica.
En el centro de HMZ House se encuentra la interacción fundamental de la luz, enmarcada por hormigón en bruto meticulosamente acabado para abrazar la luz, las sombras y el espacio como el epítome del lujo. Realzados con mármol travertino, madera de tzalam, acero y vidrio, estos elementos se fusionan a la perfección para redefinir la esencia de la vida contemporánea.
Créditos del Proyecto
Arquitectura: Lucio Muniain et al.
Equipo de diseño: Lucio Muniain, Juan Carlos García, Gustavo Morales, Michel hernandez, Ignacio Balvanera, José Luis Arroyo
Contratista: Juan Carlos García, Michel Hernández, Gustavo Morales
Ingeniero de estructuras: José Alfredo Blanco
Ubicación: San Luis Potosí, México
Año: 2023
Tamaño: 800 m2
Materiales: Concreto en bruto, Madera de Tzalam, Mármol Travertino, Acero y Vidrio
Fotógrafo: Edmund Sumner





