Casa Media Perra
Santos Bolivar

Proyecto ubicado al noroeste de México, En Valle de Guadalupe la ruta del vino, con un importante crecimiento y desarrollo vitivinícola.
De acuerdo a un plan maestro establecido en el 2013, antes de comenzar con la intervención de la propiedad se contempló primero desarrollar como primera etapa la cervecería que lleva como nombre Media Perra, construida en 2014 . Como segunda etapa se consideró diseñar y construir el nuevo hogar de nuestro cliente ” Casa Media Perra”.
Para el desarrollo del proyecto contábamos con un área de terreno con elementos naturales muy particulares , una topografía accidentada con cambios de nivel muy pronunciados. Una roca de gran escala como partícipe de un análisis de posibilidades en torno a ella, y de ser versátiles con nuestra propuesta.
Adaptación y conexión con el contexto fueron conceptos que nos llevaron a decidir que la roca tenía un sentido de pertenencia del lugar y el nuevo hogar debía relacionarse e interactuar con ella. Conectar habitar- naturaleza creando un puente (por medio de la Roca) y generar un diálogo entre ambos , fue así que nuestras escaleras del acceso principal al hogar y una parte de nuestros cimientos quedaron asentados sobre la roca.
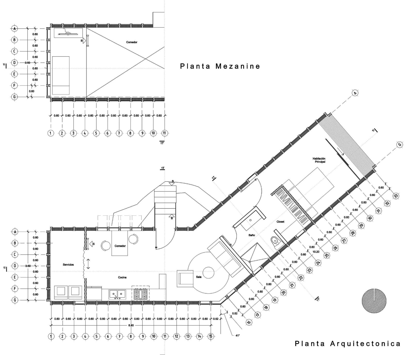
Levantamos el piso de la casa por medio de columnas de madera y acero, con la firme idea de dejar un suelo más permeable que no tuviera gran impacto sobre la naturaleza del terreno y utilizar la planta inferior como un anfiteatro al aire libre para reuniones y eventos familiares.
La vivienda cuenta con solamente 75m2 , espacio óptimo para las necesidades de nuestro cliente una recamara principal , baño completo , walk in closet , sala , comedor , cocina , cuarto de servicio y un mezzanine para descanso de visitas. Las principales vistas desde el interior hacia el paisaje exterior de la casa se concentran en las áreas de la recamara principal , sala y mezzanine.
Créditos del Proyecto
Lider del Proyecto: José Antonio de los Santos Bolivar.
Equipo: Giancarlo Reyes Olgin , Roberto Amaya Alvarado, Tayde Chan Ojeda, Jorge Armando Quevedo Jordán.
Ubicación: Valle de Guadalupe.
Área: 75 m2
Año:2020.
Fotografía: Miguel Ángel Mayoral Rodriguez




