Corporativo Execon
TRESISMO
Corporativo Execon es un proyecto de interiorismo en espacios de trabajo de una empresa de tecnología de internet que da servicio a las tiendas a nivel nacional. El proyecto se desarrolla en un edificio de 6 niveles, en donde los dos primeros niveles están destinados al uso comerciales, mientras que los otros cuatro niveles más el rooftop están destinados a la operación de la empresa.
Unos de los puntos fuertes del proyecto fue la humanización en el diseño y acondicionamiento de las áreas de trabajo y de esparcimiento del personal, estableciendo un balance entre un corporativo que refleje seriedad empresarial y un espacio tipo retail. El concepto utilizado para el diseño del proyecto se definió como Work Sweet Home, en donde cada uno de los espacios se emula el trabajo desde casa y de la manera más cómoda posible, donde el usuario pueda potencializar más su operación y la incorporación del diseño biofílico con presencia de vegetación y colores verdes y tierra.
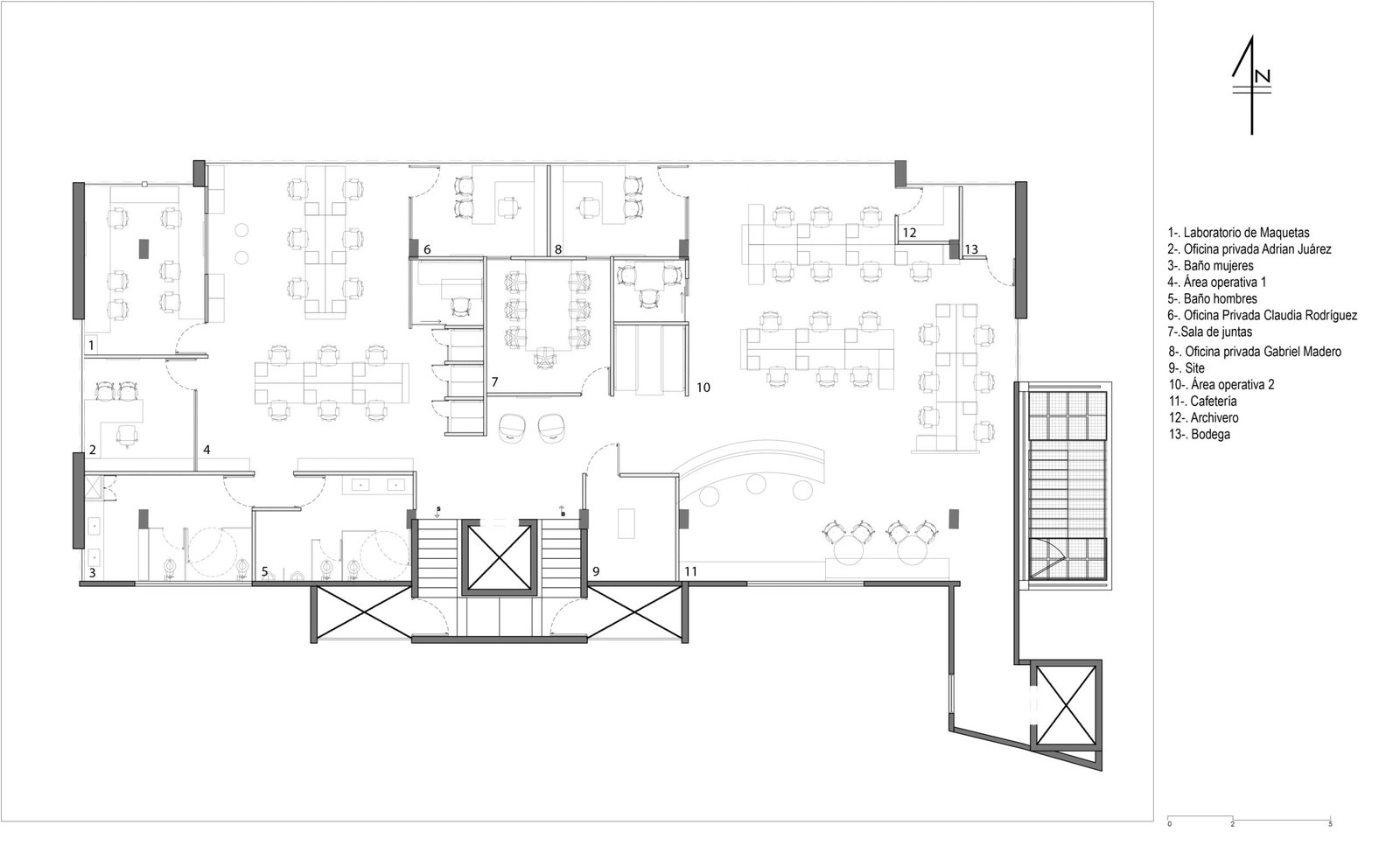
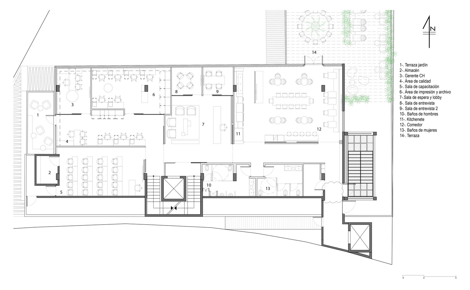
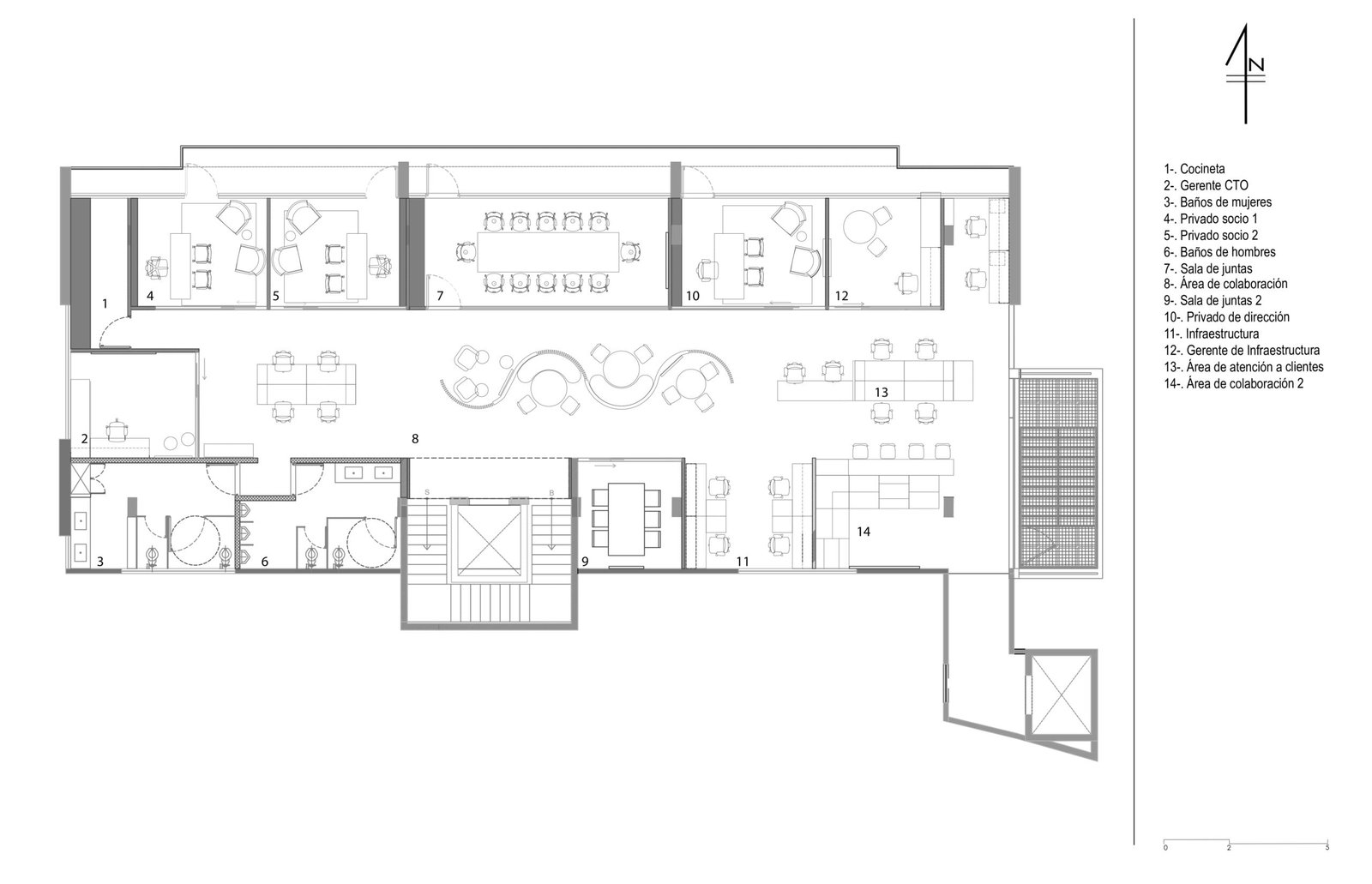
El corporativo cuenta con ocho áreas de trabajo en donde cada uno de ellos tiene su propia identidad, pero siendo siempre parte de un mismo lenguaje y comunicación entre ellos. Los pisos de estas áreas están revestidos con una alfombra que posee un diseño y una paleta de colores diferentes para cada nivel, guiando al usuario hacia donde tiene que dirigirse gracias al juego de formas y colores que este posee.
La distribución de las plantas está diseñada con el concepto Open Space, en donde las oficinas cerradas, asignadas a los directores de la empresa, se ubican al centro de la planta, mientras que todo el espacio de trabajo colaborativo se ubica alrededor de esta oficina, pegándose hacia las fachadas del edificio y obteniendo la mayor cantidad de luz natural.
Créditos del Proyecto
Arquitectura: TRESISMO.
Lideres de Proyecto:
Sandra de la Torre Zavala.
Equipo de Diseño:
Alessandro Vergot, Fabiola Ornelas, Maryfer Gaytán, Natalia Rodríguez, Stephanie Torres.
Construcción: EXECON.
Ubicación: Monterrey, Nuevo León.
Área: 2200 m2
Año: 2020.
Fotografía: Idea Cúbica





