Villa Nink El Arca
Arquitectura Elemental
Desde el exterior, podemos apreciar la tipología de una fachada que evoca la sencillez y luminosidad de las casas tradicionales yucatecas, reinterpretada con influencias contemporáneas. Si bien sus arcos y volúmenes blancos pueden recordar estilos mediterráneos, en el contexto de Mérida, esta elección de diseño resalta una estética de frescura y amplitud, ideal para el clima cálido local. Se busca una integración visual que, sin ser mimética, armonice con el carácter colonial y tropical de la ciudad.
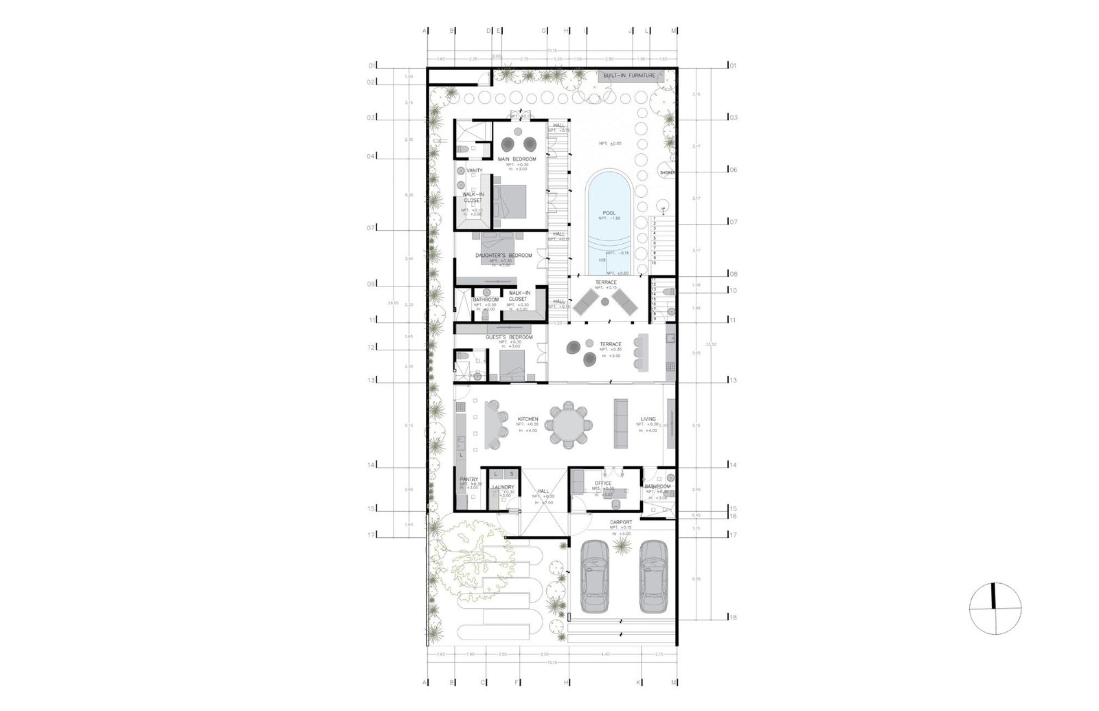
Al ingresar a la vivienda, nos recibe un vestíbulo que se abre a un amplio espacio social. Desde este punto, se accede a la recámara principal, la cual cuenta con un diseño espacioso, y donde destaca la presencia de luz natural a través de un gran ventanal con forma de arco, que también favorece la ventilación cruzada, una característica esencial en la arquitectura de la región para mitigar el calor, conectando visualmente con el exterior.
Continuando, el vestíbulo nos lleva a un espacio abierto que integra la cocina, la sala y el comedor. La cocina, con su isla central de líneas curvas, amplía la sensación de apertura y se comunica directamente con las áreas sociales. La sala y el comedor se extienden linealmente a lo ancho de la propiedad, culminando en un gran ventanal arqueado que permite un juego de transparencias y la integración total con el exterior. Este diseño da paso a un patio central que alberga la piscina, enmarcada por los volúmenes blancos y los arcos de la construcción. El patio cuenta con espacios para sentarse y vegetación, incluyendo palmas, elementos esenciales en los jardines yucatecos. A un lado, se encuentran dos recámaras secundarias, con acceso a un baño compartido, diseñado con un estilo sencillo y funcional que prioriza la practicidad y la frescura.
La intención principal de la materialidad del proyecto, nace de la búsqueda de luminosidad, frescura y una durabilidad que se alinee con las condiciones climáticas de la península. Por ello, predominan los tonos blancos y neutros en paredes y pisos, creando una base clara que maximiza la luz natural y amplifica los espacios. Los detalles en madera clara y elementos decorativos con texturas naturales que aportan calidez y en el exterior, la continuidad de los arcos y las superficies blancas, junto con la grava clara alrededor de la piscina, refuerzan la atmósfera vacacional.
La madera clara en puertas y mobiliario, junto con la elección de textiles suaves en tonos crema y beige, es lo que aporta calidez al proyecto, logrando una integración armónica entre la arquitectura de volúmenes limpios y la creación de ambientes acogedores, que invitan a la tranquilidad y al disfrute del estilo de vida yucateco.
Créditos del Proyecto
Arquitectura: Arquitectura Elemental.
Autores: Arq. María Fernanda Torres Juárez – Arq. Luis Manuel Ramírez Molina
Equipo de diseño: Arq. Augusto Ceh V., Arq. Luis Contreras, Arq. Fabiola Estrada, Arq. Dayner Huchin, B.R. Andrea Abud y B.R. Juan Pablo Aparicio.
Ubicación: Calle 16 No.17.x11. Cholul-Santa María Chi. Carretera Mérida, Km.2, Sitpach, Yucatán.
Fotografía: Diafragmas
Área construida: 289.76 M2
Área del terreno: 511.96 M2
Año de diseño: 2023
Año de finalización: 2024




