Oaxaca 88
CCA | Bernardo Quinzaños + IP STUDIO / Ivanka V Pichardo
El edificio Oaxaca 88 se encuentra entre dos grandes espacios públicos muy importantes de la Ciudad de México: la glorieta de la Cibeles y el parque España, en la colonia Condesa.
Dentro de un contexto urbano vibrante y fuertemente arbolado.
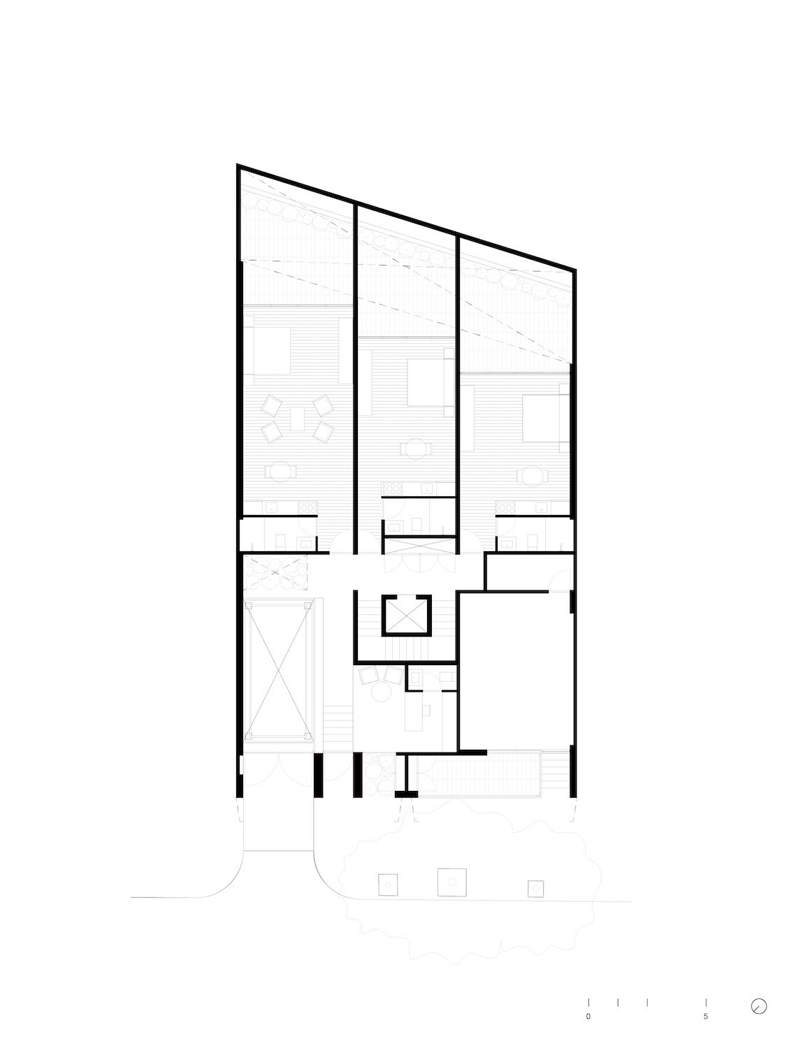
Ubicado en un predio de 27m por 15m de forma irregular, el proyecto se desplanta bajo un esquema de dos volúmenes interconectados por el núcleo de circulaciones verticales.
El programa propone 26 unidades de vivienda pequeñas, que van desde los 38m2 el más pequeño, hasta los 117m2 el más grande y único penthouse, el rooftop y un local comercial al costado del acceso peatonal y vehicular.
Por la naturaleza del terreno lo primero que se plantea es la separación de dos volúmenes, uno al frente y otro en la parte posterior, unidos por el núcleo de circulaciones verticales. Esto ayuda a generar unidades orientadas al norte y otras con orientación sur.
El edificio respeta fuertemente una modulación que es regida por la estructura y se ve reflejada en el resto del proyecto: materialidad, interiores y el tratamiento de las distintas fachadas.
La fachada norte y principal se divide en dos, delatando la distribución interna de los departamentos y resultando en dos cartelas de concreto, el detalle principal que destaca como una gran buña en la fachada.
Del lado posterior la modulación cambia a tres, lo cual permite, desde el sótano, separar claramente cajones de estacionamiento, hasta en los siguientes niveles ordenar las tipologías más pequeñas.
Esta trama de distribución hace que el proyecto sea claro tanto en planta como en alzado.
En cuanto a la materialidad el concreto aparente es el motivo principal desde el cual se orientaron el resto de los materiales.
En el interior, se utiliza una paleta reducida que busca, en su esencia, la atemporalidad: pisos de madera en habitaciones y estancias, piedra natural en tonos grisáceos para baños, circulaciones y terrazas y muros blancos.
Las carpinterías son de madera clara y en varias de las tipologías un mismo mueble resuelve múltiples necesidades, como el clóset que es a la vez el mueble de la televisión. Cada tipología se acentúa con detalles en color.
Al exterior, como complemento cromático al concreto, se le suma la herrería de un color verde que se funde con el gran árbol hacia el que vive la fachada principal.
La fachada se complementa de una cancelería que te permite abrir en su totalidad y dar paso del exterior al interior del departamento.
Es a través de sus atractivos balcones y grandes terrazas que el edificio se siente inmerso en la ciudad; en un contexto que enriquece al proyecto en todos los sentidos, desde la vegetación que se mete desde la calle, hasta la privilegiada vista del contorno urbano de Avenida Paseo de la Reforma, donde se alcanzan a ver los edificios más altos e importantes de la ciudad.
Créditos del Proyecto
Arquitectura: CCA | Bernardo Quinzaños + IP STUDIO / Ivanka V Pichardo.
Lideres de Proyecto: Bernardo Quinzaños, Ivanka V Pichardo
Equipo: Victor Zúñiga, Keren Espinoza.
Cliente: Grupo Blackloft
Constructora: Abisal Construcciones.
Ubicación: Ciudad de México, México.
Área: 2,444 m2
Año: 2024.
Fotografía: Ricardo de la Concha





