MF Pavilion
Guillermo Tirado González Architects

Pabellón MF: Un oasis de diseño atemporal en armonía con la naturaleza
El Pabellón MF es una ampliación independiente a una vivienda unifamiliar existente. Se integra de manera sutil y estratégica a la casa, creando una nueva forma de coexistencia productiva y complementaria sin perturbar la jerarquía de esta.
Diseño y contexto
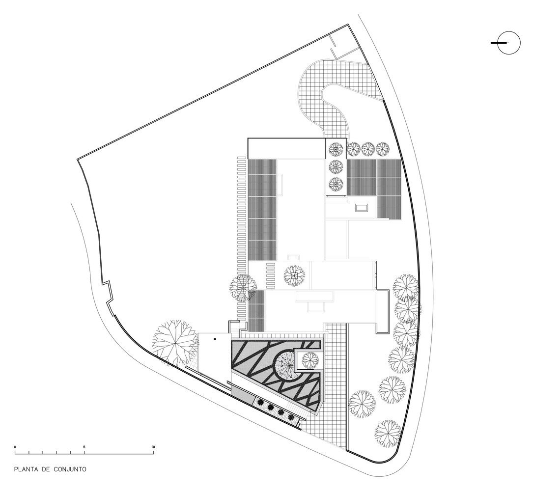
El diseño del pabellón surge de la proyección de una serie de líneas hacia el sitio de intervención, tanto de la geometría del sitio como de la casa existente. La huella del pabellón es una consecuencia directa de la lectura del contexto inmediato.
Programa
El pabellón alberga un área de comedor, bar, sala de TV y área de billar. Al aire libre se compone de una terraza con asador y un anfiteatro que a la vez funciona como escaleras para acceder al jardín posterior o principal, ya que el edificio se encuentra enterrado.
Respeto al entorno
Para respetar los niveles de desplante actuales de la casa, así como la vegetación, se diseñó en base al respeto de la vegetación existente y generando más área verde bajo el formato de una azotea verde.
Conceptos
- Diseño atemporal: sobrio en el exterior y con una dualidad expresiva en el interior.
- Materiales naturales: concreto aparente en el exterior y una mezcla de materiales en el interior.
Condicionantes del proyecto
- Mínima intervención en el área verde.
- Autonomía funcional del pabellón.
- Altura del pabellón no mayor al antepecho del ventanal del antecomedor.
- Relación con la naturaleza: conservar un encino verde en el centro del área de intervención.
- Reconocimiento de la arquitectura de la casa existente mediante la diferenciación formal y material.
- Materialidad: uso de materiales naturales y puros.
El Pabellón MF es un ejemplo de diseño atemporal que se integra armoniosamente con la naturaleza. Su materialidad, diseño y programa lo convierten en un espacio único para disfrutar del tiempo libre y la convivencia.
Créditos del Proyecto
Arquitectura: Guillermo Tirado González Architects.
Autores: Guillermo Tirado González.
Ubicación: San Pedro Garza García, Nuevo León.
Equipo de Diseño: Arq. Andrés Laurent Tirado, Arq. Daniela Carrillo Gutiérrez, Arq. Roberto Galván García, LDI. Marisol Maciel Santos.
Ingeniería: Paralelo.
Paisajismo: Guillermo Tirado González Architects.
Diseño de interiores: Guillermo Tirado González Architects
Área: 191 m2
Año: 2018.
Fotografía: Idea Cúbica, Documentación Arquitectónica, The Raws.





