Departamento UVAH
BYMURA

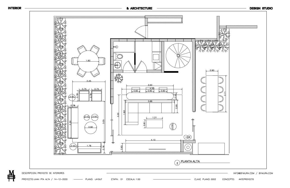
Diseño integral y ejecución de departamento residencial ubicado en el complejo ARBOLEDA en San Pedro Garza García. Propuesta ecléctica, fresca, dinámica y atrevida para el departamento, enfocándonos en integrar elementos modernos y de tendencia pero con funcionalidad y gamas de colores neutros y atemporales. El departamento consta de dos niveles, planta baja con cocina y sala comedor estilo “open floor plan” con su respectivo baño de visitas, la recamara principal y secundaria con Closets y baños completos. La planta alta incluye 2 terrazas exteriores unidas por medio del área social de TV con lavandería y baño de visitas igualmente. Integramos diferentes acabados y texturas en carpinterías, mobiliario y accesorios para reflejar la personalidad de nuestra clienta. La carpintería, el ladrillo y piedras naturales cómo el mármol volakas en balance con telas neutras con mucha textura en sillones, bancas, cojines y tapetes, crean un contraste único para reforzar el carácter único del proyecto. Igualmente integramos propuestas espectaculares de arte, accesorios, candiles, lámparas y elementos de colección en todas las habitaciones. “





