CASA SMT
Taller de Arquitectura Bajío

Casa SMT está ubicada en la zona norte de la ciudad de León Guanajuato. Un sitio con vista hacia el parque metropolitano de la ciudad. Como objetivo proyectual, se plantea la intimidad, el peso y el vacío necesario.
El proyecto se construye a partir de un volumen estereotómico. Busca incorporar volúmenes elementales que estima el vínculo incorpóreo del habitante; la vivienda como objeto descansa sobre un basamento que estimula el fuerte contraste visual con relación al volumen superior.
El basamento que da paso al interior transmite la privación, asimismo, modera la claridad interior liberando el ruido público. De esta manera, el acceso es generado gracias a la elevación de uno de sus volúmenes preeminente, de manera que ofrece un área exterior que funciona como mirador.
Los espacios interiores seducen gracias a la iluminación natural y a sus claras paredes, transmiten amplitud y un ambiente frío. Los remates visuales de luz y sombra estimulan la visibilidad del blanco y el negro como principal contraste. A su vez el centro de la casa busca la conexión íntima y es la concentración principal de luminosidad gracias a su doble altura.
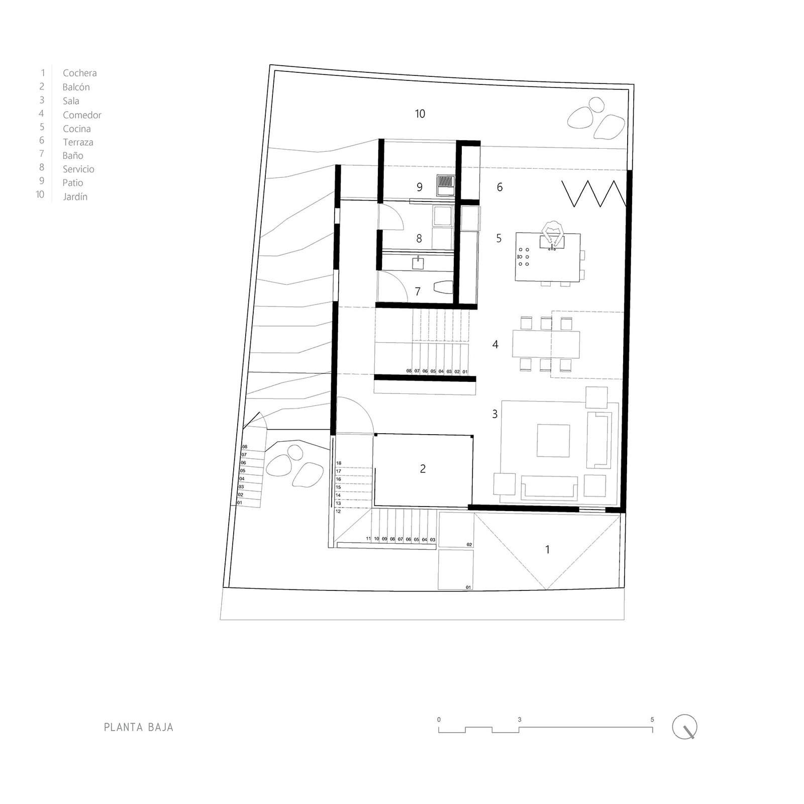
De los principales espacios que conforman la planta baja es la cocina, la cual confluye también el lenguaje de contrastes y acoge un sentido de temporalidad. Se pueden percibir sensaciones climatológicas gracias a la ventilación del patio y a la iluminación de la doble altura.
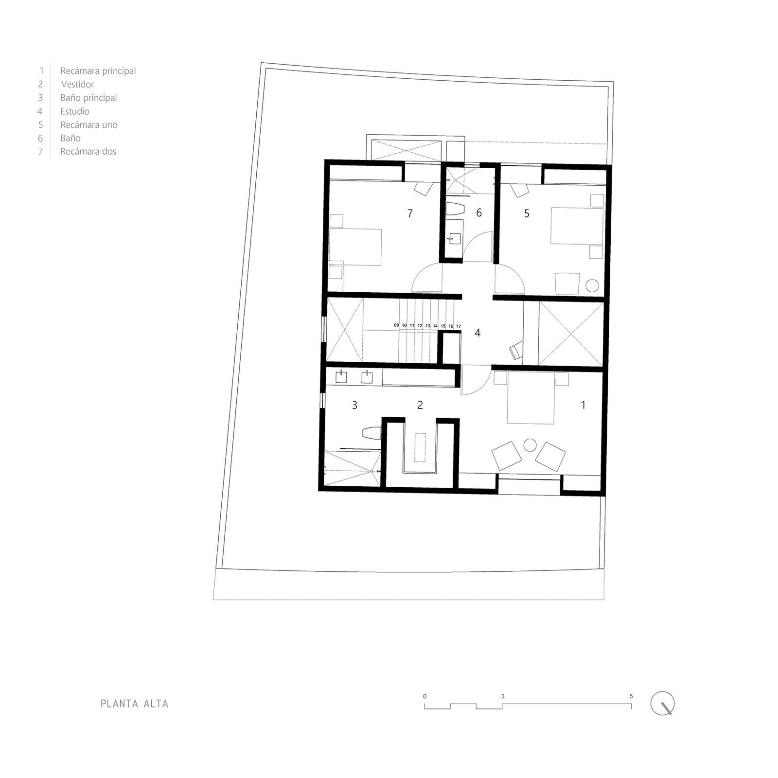
Las escaleras de concreto nacen del basamento y conducen al segundo nivel. La planta subterránea que forma parte de dicho basamento induce a lo cubierto, la brevedad y la frigidez. Por otro lado, la planta alta es lo particular, la privacidad y lo íntimo. De esta manera las escaleras disgregan, pero a la vez articulan la armonía de la casa.
Los vanos se abren a partir de los distintos remates visuales que producen los diversos espacios interiores y circulaciones.
Créditos del Proyecto
Arquitectura: Taller de Arquitectura Bajío.
Lideres de Proyecto: David Martínez.
Constructor: Jesús Gallardo Contreras.
Ubicación: León, Guanajuato.
Área: 295 m2
Año: 2021
Fotografía: Jorge Succar.
Comunicación: Jennifer I. Robles Zaragoza.




