CASA ROSADELA
MU - COLECTIVO ARQUITECTURA

El proyecto fue concebido bajo la premisa de buscar la contundencia formal de un “barn nórdico”, por lo que la forma obedece a las líneas marcadas por las cubiertas inclinadas y su prolongación a los paramentos verticales, reforzando la misma con materiales de carácter local.
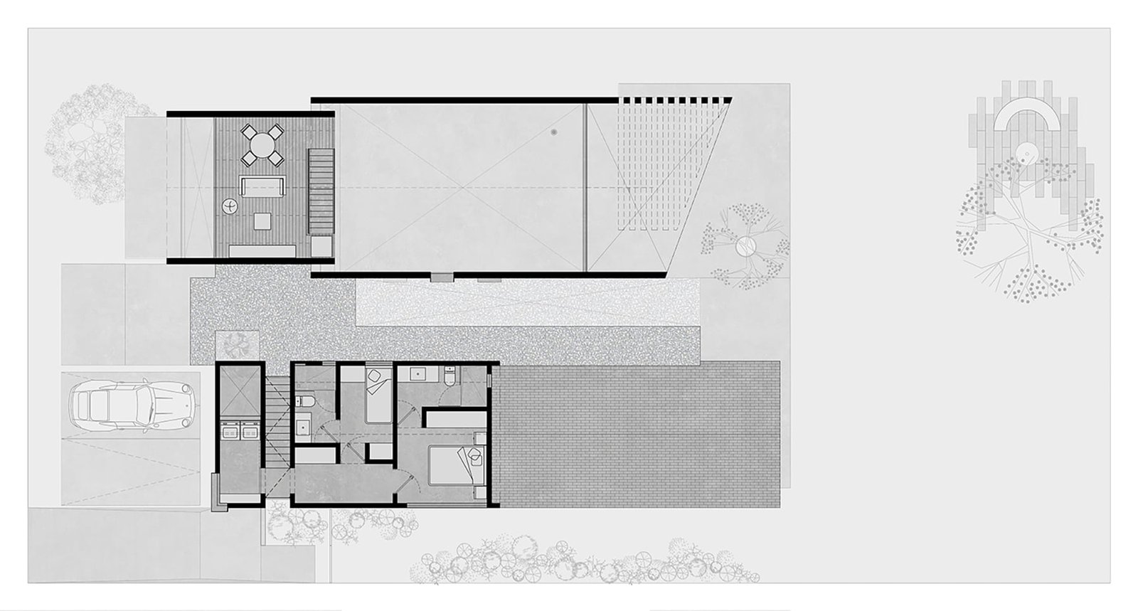
Dividido en 2 alas longitudinales y paralelas entre sí, el proyecto se separa para generar zonas públicas y privadas, siendo la primera la que le da el carácter formal al conjunto mediante la creación de un gran contenedor con forma de barn con una doble altura que permite que un volumen de forma similar, pero de escala menor, se aloje por debajo del primero para poder generar los locales necesarios y permitiendo que la luz permee desde la ranura generada en la intersección de los volúmenes y los ventanales de cada extremo; con este juego
volumétrico se buscaba una continuidad visual, espacial y física al interior.
El vestíbulo de acceso se convierte en la articulación entre el volumen anterior, el privado, que contiene recamaras y servicios, y el exterior; privilegiando al interior los recorridos a través de los pasillos que, a pesar de estar cubiertos, se integran visualmente con los jardines que rodean el conjunto.
Se buscó, además, llevar los locales más importantes del programa hacia la planta baja para acercar las actividades de los usuarios a los jardines que rodearían la casa, siendo muy importante la planeación de los macizos que conformarían el diseño paisajístico en puntos como la cocina y las recamaras.
Créditos del Proyecto
Arquitectura: Macia Ubierna – Colectivo Arquitectura
Colaboradores: Joaquín Macia Ubierna, Hugo E. Blancas Romero, Viridiana Cruz
Estructura: PI Arquitectos
Instalaciones: PI Arquitectos
Construcción: IMCI Constructora
Año: 2022.




