CASA PLUMBAGO
Ríos de Arquitectura
Casa Plumbago es un proyecto que al encontrarse en una zona considerada como sitio patrimonial y de gran importancia histórica, buscó crear una residencia contemporánea que rindiera homenaje a su pasado. Durante la demolición de la edificación previa, se encontraron diversos restos arqueológicos que junto con otros materiales como los tabiques de demolición, se ocuparon en la nueva construcción tratando de rescatar un poco el pasado y darle una segunda vida a elementos existentes en el sitio.
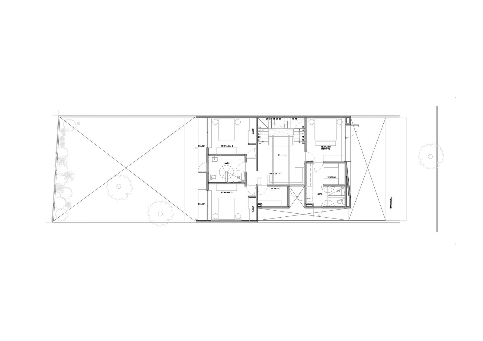
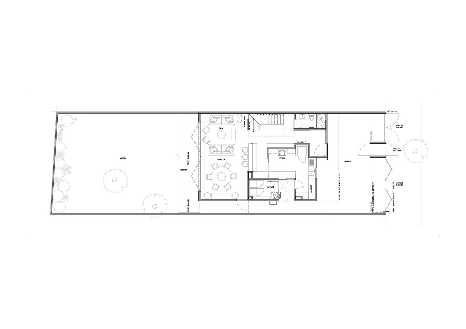
En el corazón de la casa se hicieron bóvedas catalanas tratando de traer un elemento de la arquitectura colonial a la casa, aprovechando grandes alturas para dar la sensación de un espacio bastante digno y con mucha presencia. De igual manera otro elemento que se utilizó para traer este lenguaje a la edificación fue el muro de piedra del jardín que continua al interior de la casa por la sala, el cual fue realizado con piedra de la cimentación anterior.
A pesar de el uso de todos estos elementos, se buscó que la volumetría y las formas limpias fueran contemporáneas. La casa es bastante limpia en sus acabados, se utilizó el concreto aparente, sus muros y techos son blancos, los pisos son en colores claros al igual que las maderas utilizadas.
Otro aspecto importante en el diseño de esta casa era evitar la sensación de frialdad y oscuridad que tenia la edificación anterior debido a los grandes edificios que la rodeaban. Por ello se buscó que el diseño de los espacios fueran abiertos, muy luminosos, donde la luz natural se pudiera aprovechar al máximo. Por ejemplo en la escalera principal se hizo un domo para bañar el interior de la casa. De igual manera al hacerse de herrería y no ser sólida, la luz que viene del domo logra bañar hasta la planta baja hacienda que el espacio se siente como un espacio mucho más amplio y ventilado.
Por supuesto parte integral del proyecto fue diseñar espacios que fueran funcionales. Es una casa donde el cliente planeaba pasar una gran parte de su tiempo en la cocina, por lo que se buscó que fuera un espacio functional pero a la vez estético por lo que se diseñó de tal manera que al encontrarse al inicio de la casa, el acceso al espacio fuera sencillo y al mismo tiempo esta abierta hacia la sala, comedor y al jardín, haciendo que quien se encuentre en este espacio pudiera compartir con los demás espacios.
Para finalizar , como en todos nuestros proyectos se cuidó la manera en la que la casa te recibe y cómo se despide de sus visitantes. Al llegar te recibe una exclusa con una pequeña campana antigua recuperada, la cual sirve de antesala para ingresar al espacio abierto del vestíbulo con una gran puerta de madera y un ventanal de igual magnitud que permite la entrada de luz acompañando a quien la visita.
Créditos del Proyecto
Arquitectura:
Rios de Arquitectura – Arq. Eduardo Ríos Ramírez.
Despacho Demichelis Código Arquitectónico – Arquitecta Laura Demichelis Chapa.
Arquitecto Rodrigo José Zorrilla Lobatón





