A-001 Taller de arquitectura
Casa Ocoxal se encuentra emplazada en el bosque aledaño a Valle de Bravo, a 160 kilómetros de la Ciudad de México, en un terreno de 9,000m2 que funciona como un microsistema productivo y en el que la casa se integra respetuosamente.
La forma de la casa principal nace de una geometría de volúmenes sobrepuestos a través de los cuales se habita el vacío. La composición formal evoca a las viviendas tradicionales en Valle de Bravo, la imagen de la cabaña con techo a dos aguas, propone una reinterpretación de esta iconografía con una estética contemporánea lograda gracias a la lámina negra en la fachada, el concreto y el cristal.
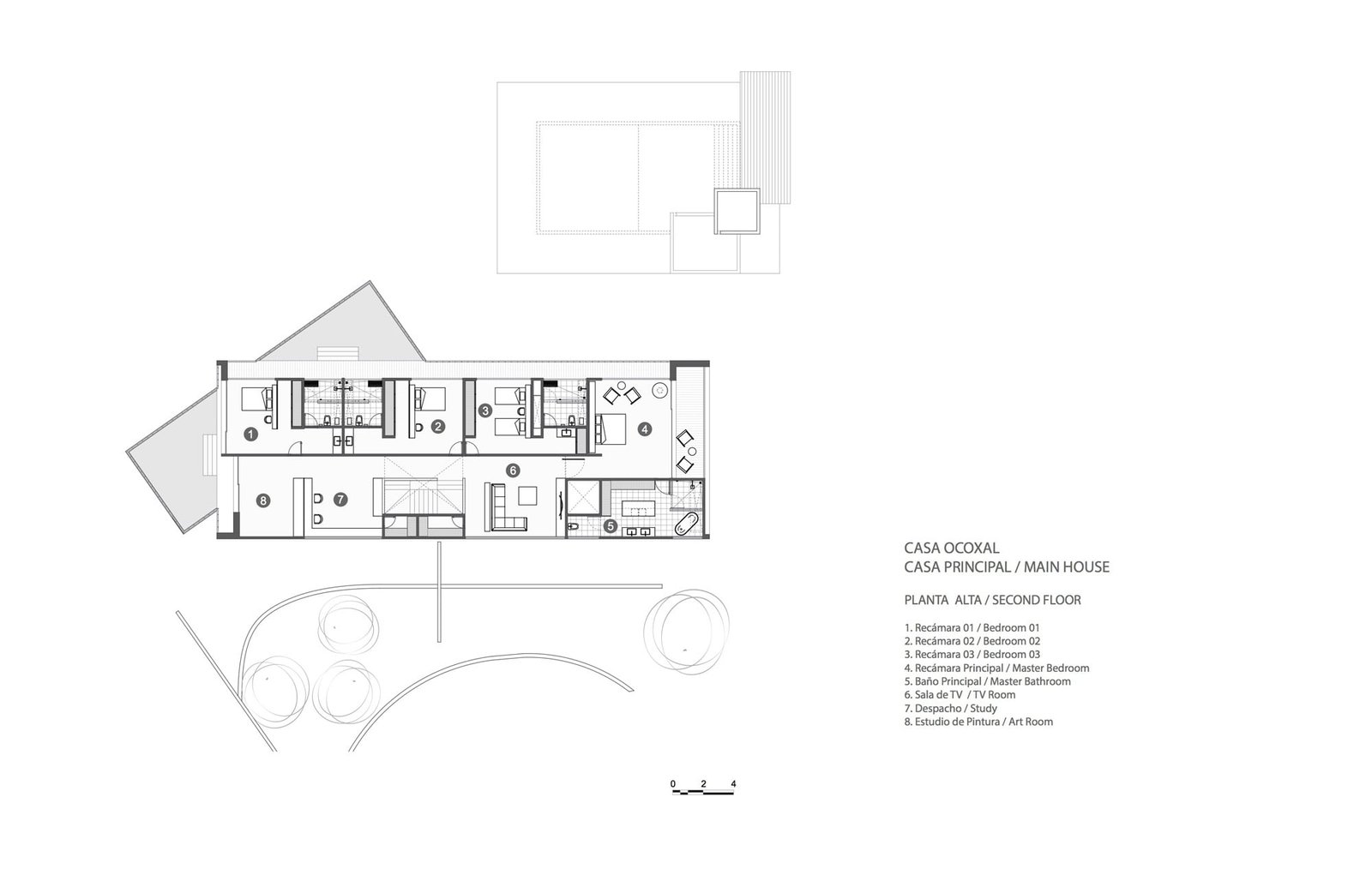
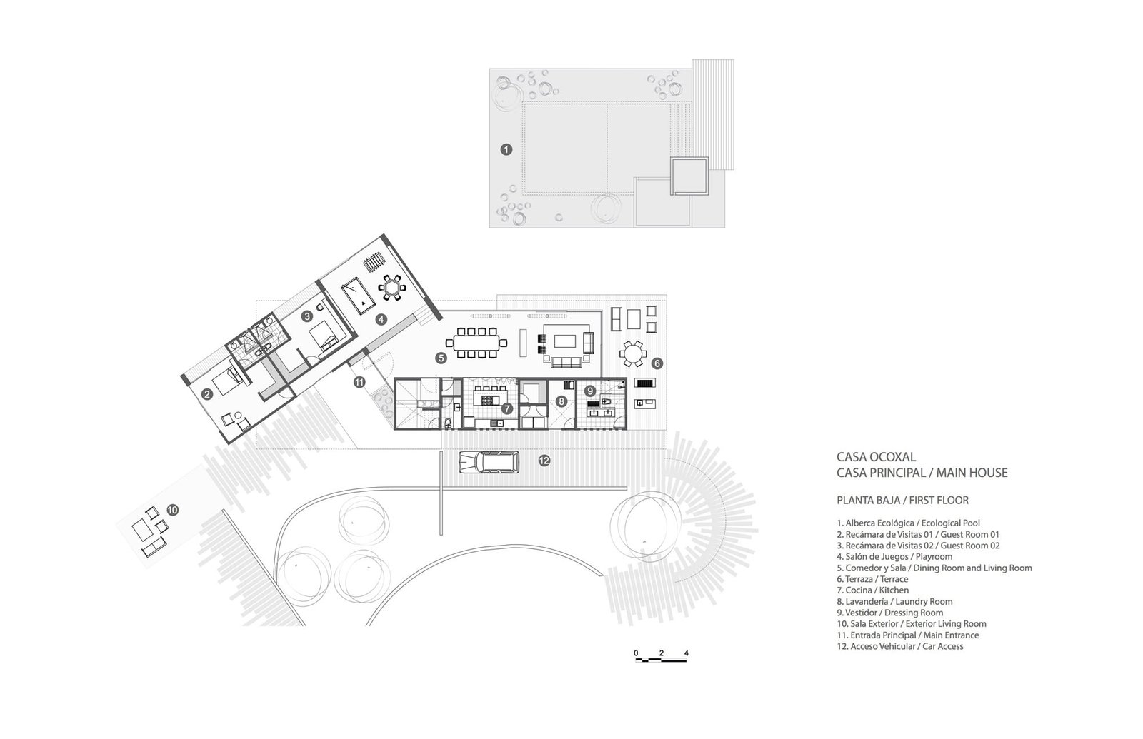
El volumen superior contiene los espacios de vida privada de la familia, mientras que el volumen inferior, espacios semiprivados, como dormitorios para las visitas. En el vacío generado por la intersección de ambos volúmenes descritos, se encuentran los espacios compartidos que permiten una relación del interior con el exterior, propiciando la contemplación agreste y el entendimiento del ecosistema.
El proyecto no es solamente una casa familiar de descanso, sino un ejercicio creativo exhaustivo, centrado en dar respuesta a todos los requerimientos funcionales y en dar valor al conjunto, partiendo de observar y comprender el rol de cada elemento presente en el espacio de intervención.
Para el cliente era muy importante habitar un espacio que pudiera generar ciclos de vida con el medio ambiente, es por ello que el leitmotiv del proyecto fue generar un puente con el territorio, a través de la conservación y el aprovechamiento de los recursos naturales existentes que vitalizaran a las hortalizas, los árboles frutales – se conservaron todos los árboles existentes en el predio- las abejas y las gallinas.
Parte de la composición característica del terreno es una cañada en la que se encuentra se encuentra el río que alimenta un molino hidráulico desde el cual se crea energía eléctrica que abastece en un 70% a la casa, una red de distribución, un canal de riego y aprovechamiento de aguas, humedales, zonas de plantación, árboles frutales y huertos de cosecha. La planta de recolección de agua pluvial, misma que es filtrada y destinada a abastecer el sistema hidrosanitario, la alberca y el riego de las áreas verdes. El agua que no es utilizada es regresada al río, generando un 0% de desaprovechamiento.
Se implementaron tecnologías pasivas de control bioclimático con la intención de aprovechar los recursos naturales del entorno y regular los distintos factores que afectan la habitabilidad y el confort, como la humedad y la temperatura.
20 paneles solares ubicados en la azotea son los encargados de mantener la temperatura cálida en los baños y la alberca.
Es posible conservar una temperatura agradable durante todo el año, incluso en el invierno, gracias al sistema de extracción natural Venturi y un sistema de fachada ventilada en el que por medio de ductos y respiraderos interiores y exteriores.
Créditos del Proyecto
Ubicación: Valle de Bravo, Estado de México.
Año: 2020
Área de terreno: 9,000 m2.
Área de construcción: 850 m2
Diseño: A-001 Taller de arquitectura, Eduardo Gorozpe
Equipo de diseño: Arq. Eduardo Gorozpe, Arq. Joel Betanzos, Arq. Arturo Olavarrieta, Arq. Erik Ley, Arq. Andrés Mendizábal, Arq. Mariluz Arce, Arq. Eridani Reyes, Arq. Gerardo Ham, Ing. Fernando Calleja.
Fotografías: Ximzfoto





