Pabellón de arquitectura
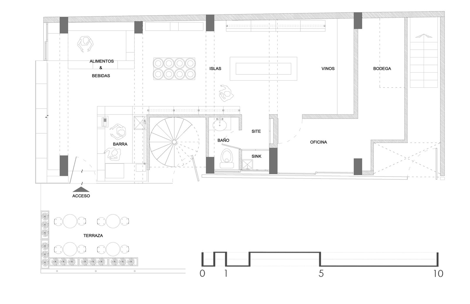
Boutique de productos naturales y a granel, en donde la intención principal en primer lugar fue el generar una identidad para la marca y en segundo un espacio innovador y divertido que se diferenciara de la competencia, ademas de generara una tendencia. Lo anterior se logra gracias a la elaboración de diferentes piezas de mobiliario que provocan una interacción constante con el usuario. Elementos colgados del techo y piezas de mobiliario modular se complementan para plasmar un ambiente acogedor con un recorrido claro que eficienta cada metro cuadrado de la tienda. El proyecto de iluminación se compone de un esquema de luz directa, provista por spots distribuidos en rieles, que en combinación con una luz indirecta, generan diferentes ambientes dentro del local comercial resaltando ciertos elementos decorativos y productos.
Créditos del Proyecto
Ubicación: Alfonso Reyes 216, Condesa, CDMX.
Diseño: Pabellón de Arquitectura.
Arquitectos a Cargo: Alvaro Rodríguez García, Sebastián Navarro Mora, Héctor Fuentes Veyna.
Año finalización construcción: 2020.
Superficie construida: 75m2.
Fotografía: Darío Cruz





