Casa Majalca
OAX Arquitectos

Enclavada en la sierra de Chihuahua, Casa Majalca se conceptualiza como una casa de estancia corta en una zona carente de servicios, con un clima que varía de lo templado al frío intenso, incluso con presencia de nevadas ocasionales y con una topografía de valles rocosos y vegetación boscosa que privilegian las vistas panorámicas.
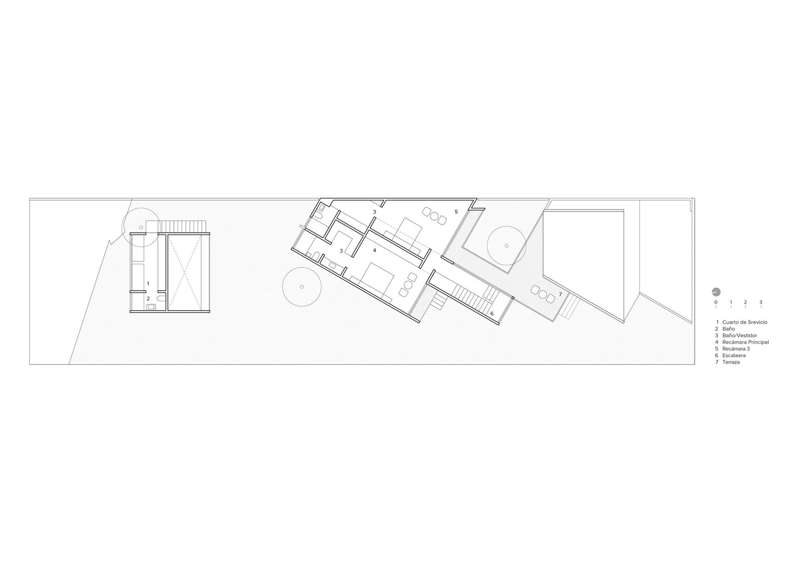
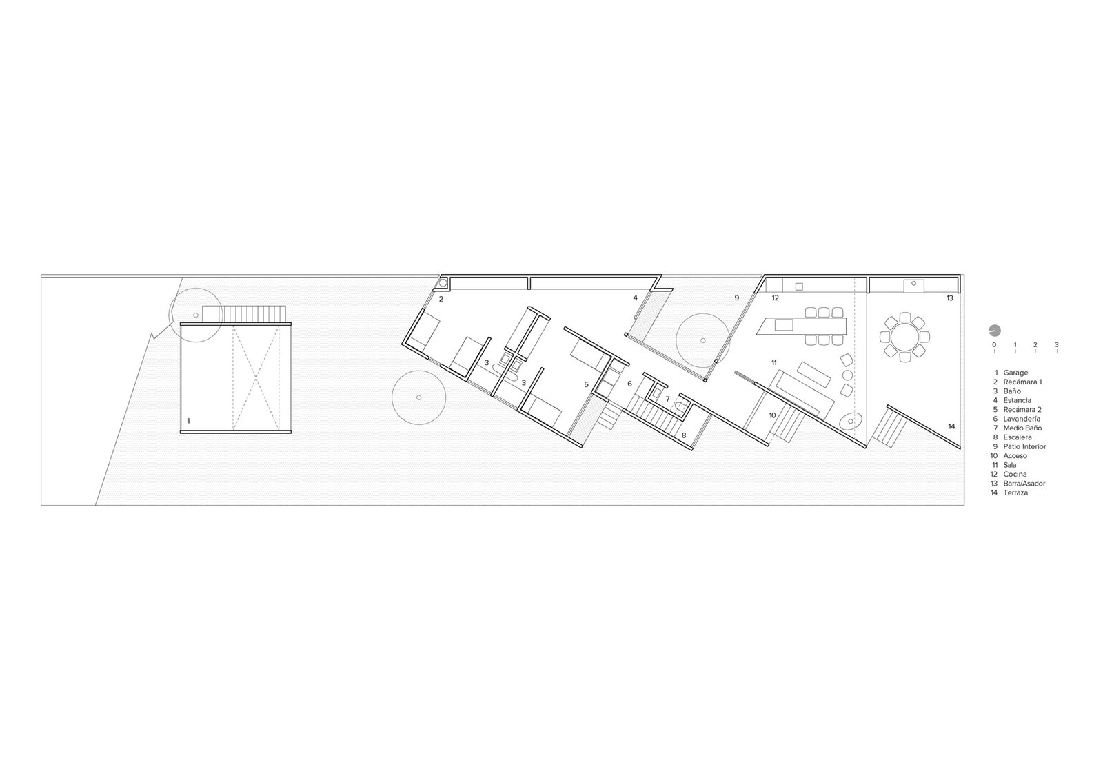
El terreno de proporción alargada cuenta con un frente de 12.5 m y un fondo de 50 m y proponía el reto de lograr capturar las mayor cantidad de vistas posibles, por lo que se optó por desfasar cinco cuerpos unidos a diferentes alturas y con diferentes programas, articulados por los espacios de circulaciones comunes, dejando de manera aislada el sexto volumen destinado a almacenaje de equipamiento y vehículos todo terreno.
En el primer nivel se resolvió el área social y la cocina con continuidad a una terraza techada en el frente y en su parte posterior a un patio interior que articula la zona de habitaciones para los invitados en el mismo nivel, dejando la planta alta para las recámaras principales.
La materialidad se concentró en resolver el requerimiento de bajo mantenimiento en la vivienda, así como también para simplificar el sistema constructivo proporcionado por la mano de obra de la zona, intentando recrear el pasado histórico de los muros emergentes de la tierra con un nivel de acceso flotado para acentuar la ligereza de la estructura de conexión, combinado con la rigurosa elección de plantas endémicas y sistemas pasivos de arquitectura sustentable.
Créditos del Proyecto
Arquitectura: OAX Arquitectos.
Arquitecto: José García Toledo
Colaboradores: Luis Carlos Rodríguez, Fernanda Roiz, Ing. Carlos Estrada Zubía, Ing. Julio González
Ubicación: Chihuahua.
Área: 625 m2
Año: 2019-2020.
Fotografía: Francisco Álvarez / recording.architecture





