Casa Luz
Pseudónimo

Diseñar esta casa ha sido un proceso de mucho aprendizaje, creatividad y detalles, la primicia fue diseñar una casa que se sintiera completamente propia de los habitantes, que es una pareja joven y dinámica con tres hijos pequeños que necesitan crecer en un hogar que sea todo terreno y en donde no tengan limitantes para sentirse libres. Todo esto enlazado de forma elegante, con un estilo nórdico, lleno de texturas y algunos toques de color y muchos detalles específicos para cada uno de sus usuarios.
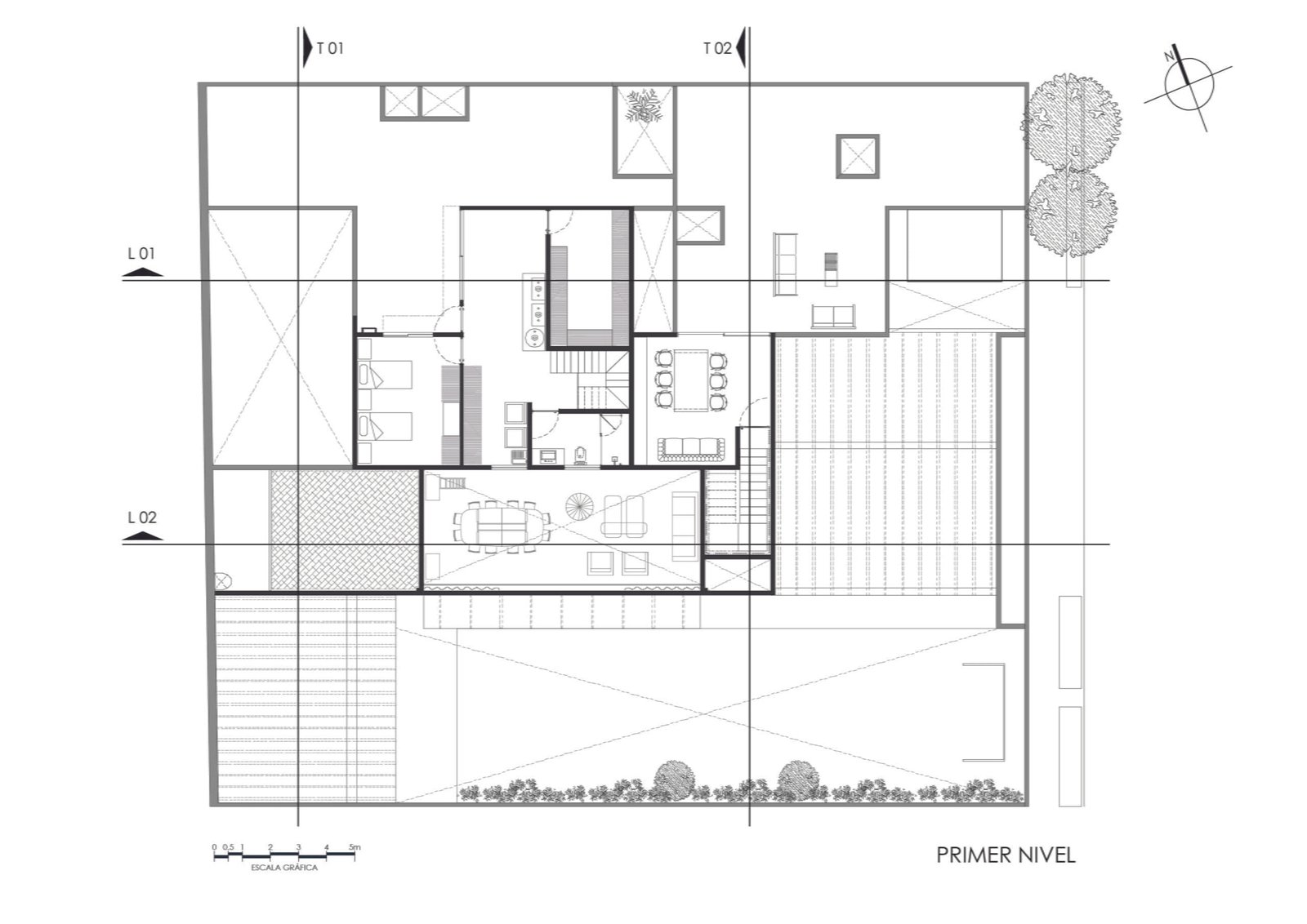
La casa se muestra con una fachada ciega hacia el exterior, de color blanco con una larga jardinera de solera negra y dos accesos embocinados con portones negros, vehicular y peatonal, escoltados por una jacaranda, el acceso / estacionamiento con cubierta de cristal y vigas metálicas, enmarcan la puerta principal de la casa con un color sábila, que permite el acceso al recibidor, con un lambrin de tiras de mármol de carrara blanco como remate visual, este espacio vestibula la casa entre la zona privada, la zona de convivencia y la oficina. Todo el programa se conecta por patios interiores, los cuales ventilan naturalmente cada espacio, además de que la luz entra a esta casa, por distintos vanos a diferentes horas del día, de ahí viene su nombre.
La zona privada, cuenta con un family room con un gran domo donde entra luz cenital, con un espacio de home office, un delicioso sillón para descansar, un mueble de redondos de madera que se extiende por todo el muro, que sirve de área de guardado y un antecomedor para 6 personas, 2 recamaras infantiles con baño y vestidor y la recamara principal con una terraza techada que tiene vista al acceso y al jardín. Esta zona también cuenta con un gimnasio equipado con cabina de vapor, y patios interiores como remates visuales.
El área pública, se compone del salón principal (sala-comedor) que es un espacio a doble altura, con un cancel que abre completamente al jardín y permite la sensación de apertura total en este espacio, como remate visual, varios, en el muro del fondo se eleva una cava para vinos del total de la altura, dos puertas de cristal bronce con reflejan todo el jardín y la luminaria que cuelga sobre el comedor y una obra de arte da color al último muro. En este espacio sobresale el diseño de molduras que se encuentran en toda la casa, tanto en muros como en plafones, y la utilización de zoclos y cornisas integran el estilo nórdico que está presente en todo el proyecto.
Las áreas de conexión entre los espacios públicos y privados, son las de servicio y esparcimiento, la cocina se encuentra al centro de la casa, con una gran isla central y una alacena que se extiende a lo largo de todo el muro y tiene servicio tanto al family room como al salón principal.
Las áreas de esparcimiento están enfocadas en sus dos tipos de usuario, para los niños una ludoteca a doble altura con piso de caucho, pasamanos, y un tapanco de juegos que se prolonga en todo el espacio con una red de descanso, y un patio de juegos como espacio de atelier, con loseta hidráulica en piso.
Para los adultos, la terraza de juegos permite sentirse al exterior, con una cubierta de cristal sobre un pergolado de delgados perfiles metálicos, y un piso espigado artesanal de terrazo blanco, con una cancelería corrediza que abre por completo el espacio hacia en jardín, el área de jacuzzi y asador, con un sillón en “L” alrededor de un gran mueble de tv de madera de encino, con futbolito un columpio es la zona más relajante de la casa.
En el primer nivel de la casa se encuentra una oficina, las escaleras están envueltas con lambrin de madera de nogal y una luminaria colgante que enmarcan la transición al espacio más masculino de la casa, con una mesa de juntas para 8 personas y un espacio de lectura, con una gran terraza con mobiliario exterior y una celosía que brinda privacidad al espacio.
Sin duda esta casa brinda a sus usuarios una serie de espacios muy cómodos dedicados a distintos usos que les permite expresarse libremente.
Créditos del Proyecto
Arquitectura: Pseudónimo.
Autores: Fernanda García y Didier Solo.
Área: 830 m2
Año: 2020.
Construcción: Angel Mejía.
Fotografía: Zaickz Moz y Ricardo de la concha.





