OBRA BLANCA
Es una vivienda unifamiliar ubicada a 400 metros del Golfo de México. Su sólida volumetría la dotan de presencia y protección contra las constantes rachas de viento del norte, la humedad y los altos niveles de corrosión de la costa.
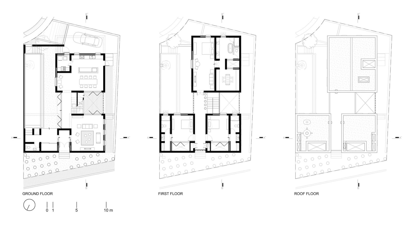
El proyecto se sintetiza en tres volúmenes independientes, conectados por medio de un puente delimitado por tres muros celosía a base de soleras de barro recocido dispuestos de la misma forma en la que se levanta una torre de naipes, reinterpretando los remates de muros y balcones presentes en algunas de las construcciones tradicionales de la región.
Como parte de los requerimientos, la casa debía ser de carácter tranquilo, un refugio de la rutina y cotidianidad. Pese a ser una residencia de uso permanente, los espacios transportan al usuario a un Veracruz de recreación y descanso.
La casa cuenta con un programa público y de servicio, en planta baja, desplantado dentro de los límites de los tres volúmenes que conforman el proyecto. En planta alta, por el contrario, encontramos un programa exclusivamente privado, distribuyendo una recámara por cada uno de los tres módulos.
La luz juega un papel importante al trabajar en conjunto con los muros celosía; un juego de tramas, de luces y sombras, recorre los espacios materializando el paso del tiempo.
La obra trasciende al retomar oficios olvidados por la mano de obra local, la cual revaloriza y dignifica su tiempo de trabajo y el de los materiales con los que construyen de manera habitual en la región.
Créditos del Proyecto
Diseño: OBRA BLANCA (Gabriela Villegas y Daniel Treviño)
Construcción: 2015 – 2016
Sitio: 375 m2
Área de construcción: 365 m2
Ubicación: Alvarado, Veracruz, México.
Fotógrafo: Adrián Llaguno / Documentación Arquitectónica
Constructor: V+B Construcciones
Ingeniero estructural: Ing. Apolinar Cortez Sánchez
