Nova Arquitectura
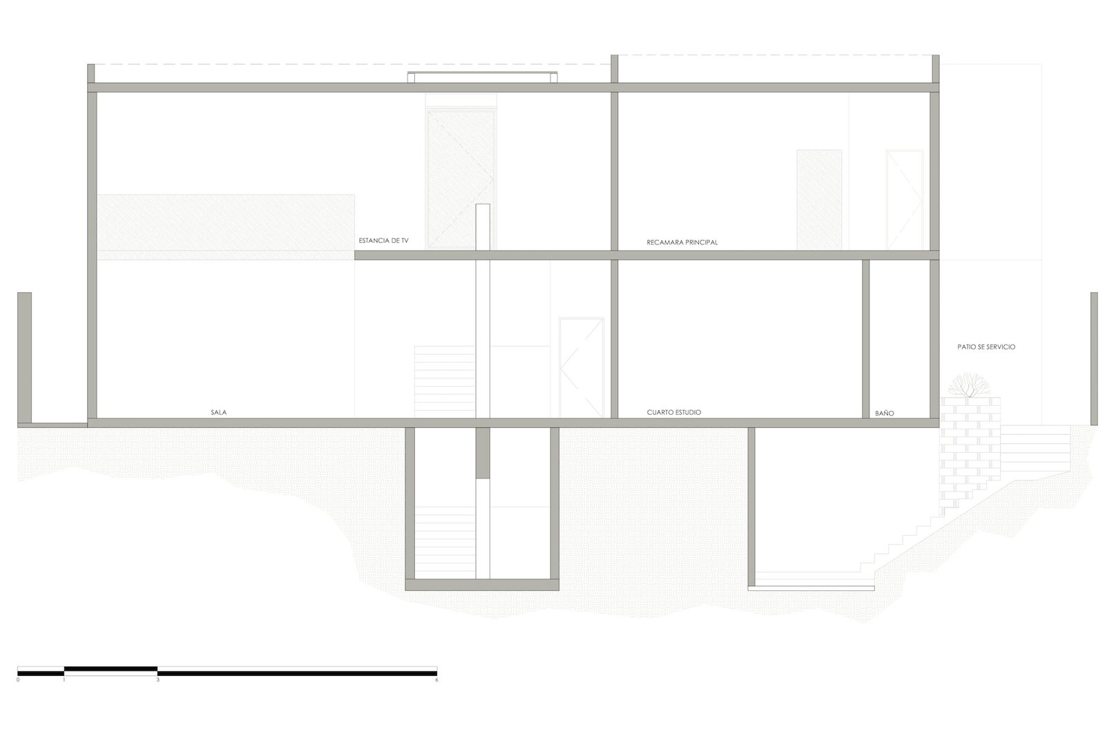
se encuentra en un sitio ubicado en la zona sur de la ciudad de Monterrey, en el fraccionamiento Sierra Alta. El diseño de la casa se basó en el aprovechamiento al máximo del terreno, su orientación, las vistas envidiables hacia la sierra y al campo de golf y al mismo tiempo respetando su topografía. Utilizando la escalera como eje principal de diseño, toda la casa se resuelve alrededor de ella.
En el sótano, o nivel de calle, tenemos la cochera con el acceso general, que da a un pequeño recibidor, una oficina privada y a la escalera, mientras que por fuera, se encuentra el acceso al pasillo de servicio, así como un medio baño servicio y una bodega.
En el costado opuesto, el poniente, está el acceso principal, resuelto con una escalera escultórica, que atraviesa el jardín frontal para llegar al pórtico de acceso, en la planta baja. Ingresando al recibidor de doble altura, nos encontramos nuestro primer remate visual y el centro de la casa: Una escalera escultórica volada, forrada de madera, apoyada solo sobre un muro de concreto recubierto con piedra volcánica y envuelta en una celosía de acero, fabricada de manera artesanal, pieza por pieza y bañada con luz natural por medio de un domo ubicado en la losa de azotea, que se encarga de formar un juego de luz y sombras, a través de un pergolado de acero.
Cumpliendo con su función, sirve también como elemento decorativo, que se puede apreciar desde toda el área social, especialmente desde la sala. En esta zona, se colocó un ventanal de doble altura, que baña de luz del sur a la sala y la estancia familiar en planta alta. Al costado opuesto de la sala y del otro lado de la escalera, se encuentra el baño y la recámara de visitas, así como una terraza jardín.
En la zona norte de la casa, se encuentra el área social, conformada por un salón de juegos, un bar, el comedor y la cocina, todo con vista hacia el jardín y con acceso a la terraza-asador techada, por medio de ventanales de cristal, que provocan la sensación de estar al mismo tiempo en el interior y en el exterior. A un costado de la cocina, se encuentran los servicios.
En la planta alta, se encuentran las habitaciones de las hijas, cada una con su baño vestidor y una terraza compartida, así como la recámara principal, con su balcón que permite apreciar la vista hacia la Sierra Madre. El juego de volúmenes se desarrolló de manera que el nivel superior, funcionara como protección para el área social, en la planta baja, dándole sombra por medio de volados, que provocan una sensación de ligereza.
Utilizando una paleta de acabados y tonos neutros, se procuró que la casa mantuviera un estilo contemporáneo y con calidez. Al interior, el piso de mármol y la duela, junto con acentos de acero y madera, crean un ambiente atemporal y cálido.
Créditos del Proyecto
Arquitectura: Nova Arquitectura.
Arquitecto a cargo: Erik Ruiz Pichardo.
Colaboradores: María de Lourdes Carrazco, Thalia de León.
Construcción. Grupo Loop.
Interiorismo: Nova Arquitectura.
Ubicación: Sierra Alta 9o Sector, Monterrey, N.L.
Oficina de Superficie: 750m2.
Fotografías: The Raw.





