CASA COLIBRÍ
UG arquitectos
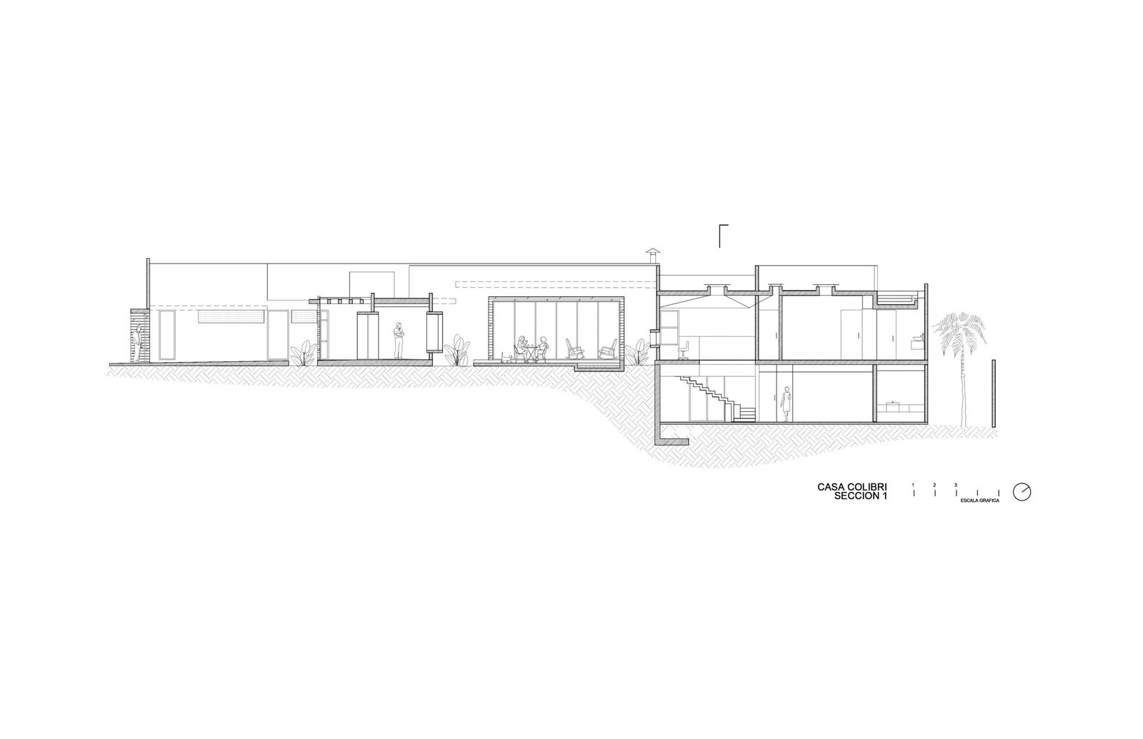
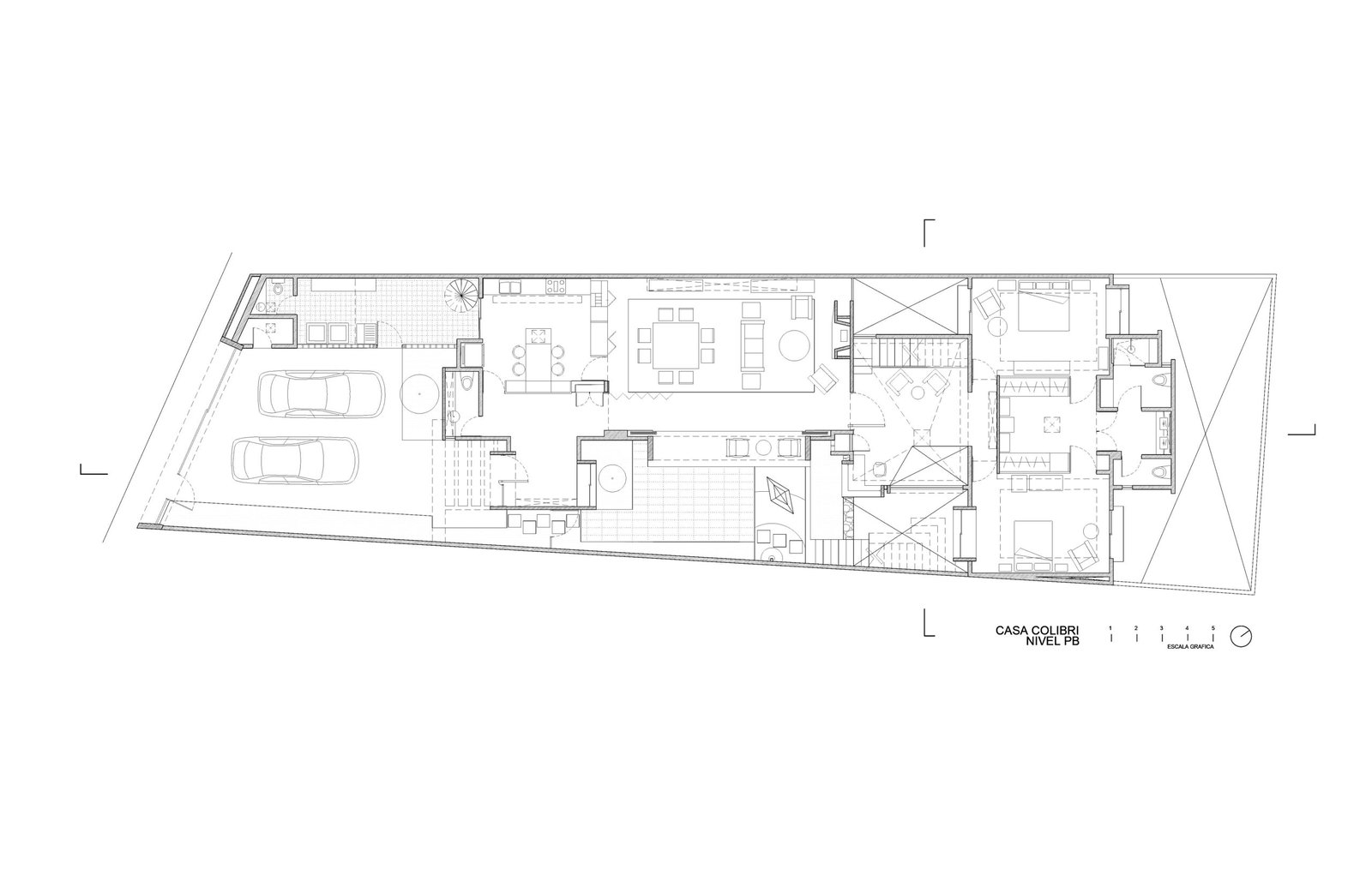
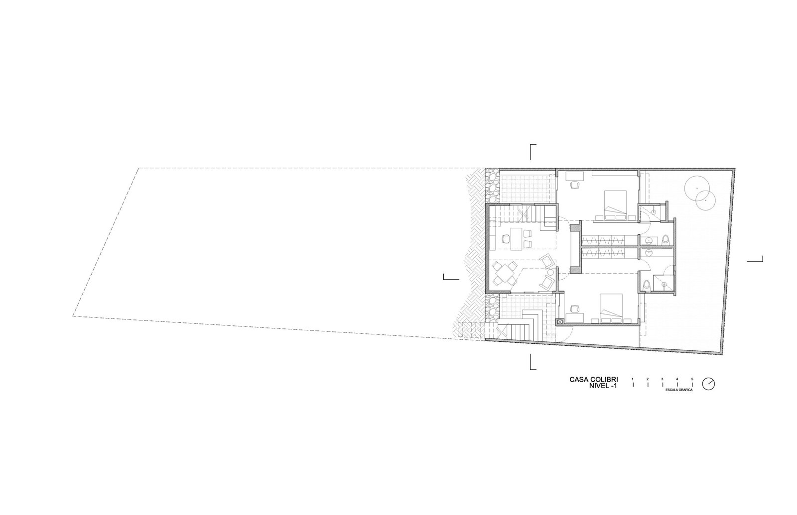
Esta es una casa proyectada en un terreno en desnivel para un matrimonio mayor que quiso se desarrollara en una sola planta, donde se sintiera amplitud y que estuviera muy bien iluminada. Para el mejor empleo de recursos, se utilizó el desnivel natural del terreno donde se ubicaron en nivel -1 dos recamaras secundarias para los hijos que acuden de visita, así como un estudio.
La casa se distribuye en torno a un patio lateral que se convierte en punto focal y auditivo desde el interior. La circulación es lineal y paralela a este patio, con un pequeño quiebre en el vestíbulo del ingreso y un muro que desvía los flujos en el extremo opuesto antes de entrar a las recámaras principales.
De este modo se reinterpreta el patio de la casa antigua organizada en relación al espacio abierto en un patio-jardín que permite iluminación, ventilación, contemplación y esparcimiento. El grato sonido del agua del estanque inunda toda la casa, y en todo momento en el exterior, visual y sonido evocan metafóricamente el macrocosmos del universo y la naturaleza.
Las zonas social y privada se articulan a través de un espacio de doble altura flanqueado por otros dos pequeños patios de menor tamaño que propician ventilación cruzada e iluminación natural.
Se colocaron tragaluces en lugares estratégicos para generar deliberadamente efectos dramáticos que destacan algunos elementos arquitectónicos: en esta casa la luz natural es protagonista.
Entre los muros terminados con aplanado y pintura se alternan algunos muros fabricados en sitio con concreto gris aparente moldeado con duelas horizontales, material utilizado igualmente para enmarcar los vanos de la casa, secuencia que se convierte en un lenguaje arquitectónico propio.
Créditos del Proyecto
Nombre del despacho: UG arquitectos / Luis Ugalde Tuero.
Ubicación del inmueble: Paseo de las Palmas 141, Fraccionamiento Jardines de las Ánimas, Xalapa Veracruz.
Terreno: 482 m2
Edificado: 365 m2
Año de edificación: 2022-2024.
Tipología: Habitacional.
Créditos:
Equipo de proyecto, obra y administración:
Arq. Luis Ugalde Tuero
Arq. María Fernanda Ceballos Portilla
Arq. Daniela Lozada González
Fotografía: Luis Gordoa




