ÁMSTERDAM 75
Jorge Hernández de la Garza

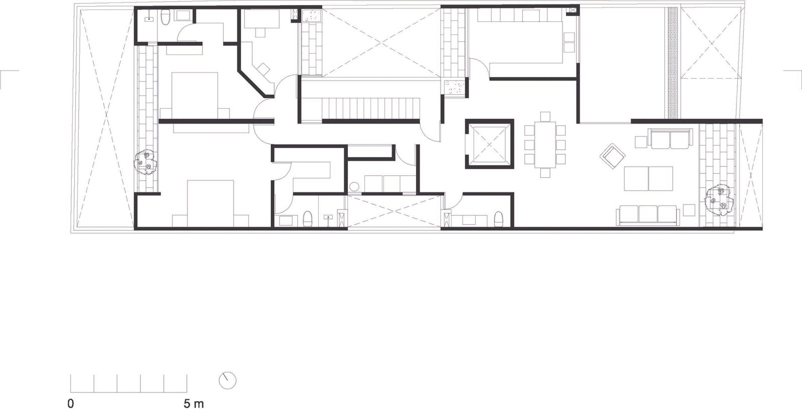
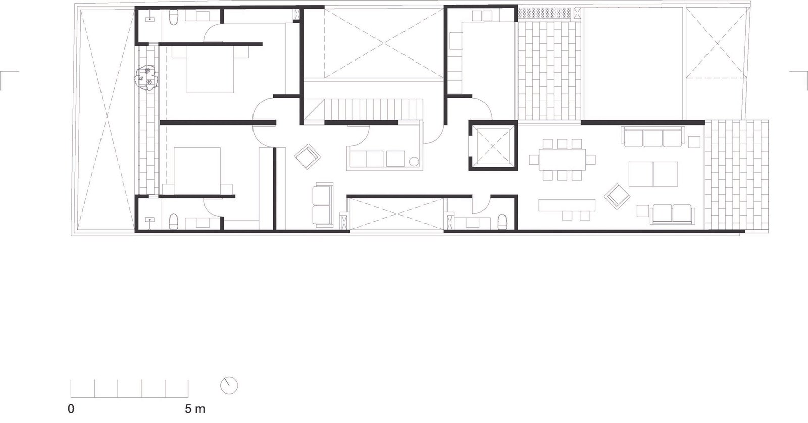
Ámsterdam 75 es un edificio de viviendas con una preexistencia que está ubicado en la colonia Hipódromo de la Ciudad de México. En un terreno rectangular, la intervención consistió en resolver cinco departamentos de diferentes tipologías y una vivienda adicional en la preexistencia —una casa del siglo XIX, catalogada por el Instituto Nacional de Bellas Artes—.
El proyecto se resolvió en dos grandes volúmenes, a manera de cajas de concreto aparente, orientadas hacia la avenida arbolada para logran enmarcar las mejores vistas hacia el contexto.
El penthhouse se encuentra en los dos últimos niveles y cuenta con una doble altura que articula los espacios públicos de la vivienda en sus dos niveles.
En la parte posterior del predio el edificio se remete en su fachada poniente para generar una serie de terrazas que dan protección solar y aprovechan las vistas hacia el parque España.
Créditos del Proyecto
Proyecto arquitectónico :
JORGE HERNANDEZ DE LA GARZA
Colaboradores:
Miguel Angel Loyola
Alin Gamboa
Octavio Alvarado
Isabel Hernández
Construcción y Desarrollo inmobiliario: Grupo Desarrollador FG2.
Diseño estructural: Miguel Angel Arriaga.
Ingeniería: Mauricio Gutierrez.
Fotografía: Jorge Hernández de la Garza.
JORGEHERNANDEZDELAGARZA




