7Once
Duales Taller
El proyecto 7Once surge de una necesidad de transformar una carnicería tradicional en una experiencia integral que combina la venta de carne de calidad, alimentos preparados y productos especializados para parrilla. Los clientes buscaban extender su marca, pero también redefinir la relación entre producto, espacio y usuario, insertándose en una cultura local profundamente vinculada con la carne asada como acto social.
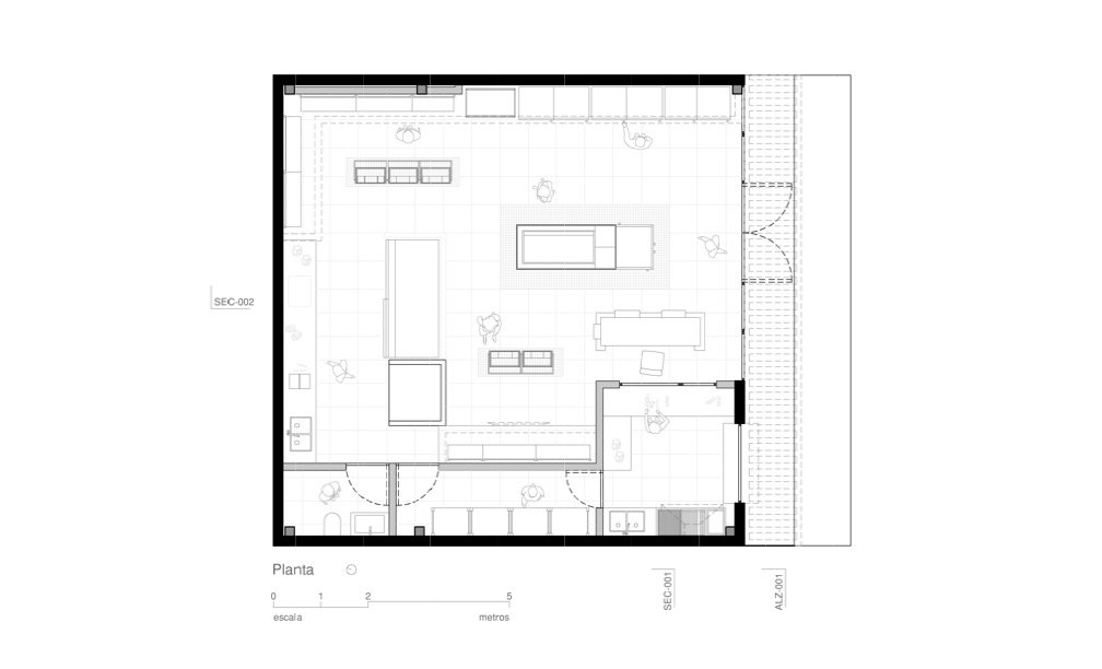
Ubicado en un local comercial de 100.00 m² en Mazatlán, el programa requería precisión: tienda, área de caja, carnicería con vitrina y preparación, zona de grill, medio baño y almacenamiento. El primer reto fue ordenar estos espacios sin sacrificar fluidez ni jerarquía visual. Se diseñó una distribución que permite recorridos intuitivos, visibilidad transversal desde el acceso hasta el fondo, y una lectura clara de las funciones desde cualquier punto del local. El espacio se organiza como un recorrido contenido, donde el cliente, transita frente a cada unidad de exhibición antes de llegar a la caja.
La zona del grill, donde el humo, el calor y el aroma del carbón se hacen presentes, fue pensada como un punto de conexión directo con la calle. Una ventana permite que el cliente sea testigo del proceso de asado, reforzando el carácter performático de la experiencia. Este vínculo visual entre el interior y el exterior disuelve los límites del espacio, convirtiendo a la carnicería en un escenario abierto, donde lo que sucede adentro atrae a quienes pasan afuera.
La fachada incorpora un sistema de azulejos cerámicos dispuestos en un patrón que remite al movimiento del fuego. Esta elección responde tanto a una necesidad de identidad visual como a un gesto contextual: una lectura gráfica de la tradición parrillera del norte del país. Los colores rojo y blanco, parte esencial de la marca, encuentran aquí una expresión arquitectónica que busca captar la atención sin recurrir a excesos.
En el interior, la paleta de colores neutros —pintura cálida, azulejos tradicionales de carnicería, madera y detalles metálicos— busca crear un contraste con los productos exhibidos, destacando especialmente los cortes de carne. El congelador central, revestido en fajillas de madera, se convierte en el núcleo del espacio, organizando los flujos y sirviendo como un punto focal.
Además, se diseñaron estructuras metálicas para exhibir verduras y otros complementos, inspiradas en los pallets de mercado. Estas unidades aportan flexibilidad, orden y una estética artesanal. Cada decisión en el proyecto, desde los materiales hasta la proporción y las conexiones visuales, está pensada para optimizar la operación del negocio mientras se ofrece una experiencia espacial coherente con los productos que se venden.
Créditos del Proyecto
Arquitectura: Duales Taller
Lideres de Proyecto: Gerson Guízar, Alberto Chávez De La Vega
Ubicación: Mazatlan, Sinaloa
Área: 100 m2
Año: 2025.
Fotografía: Jorge Fregoso




