Serfimex 2.0
ARCO Arquitectura Contemporánea
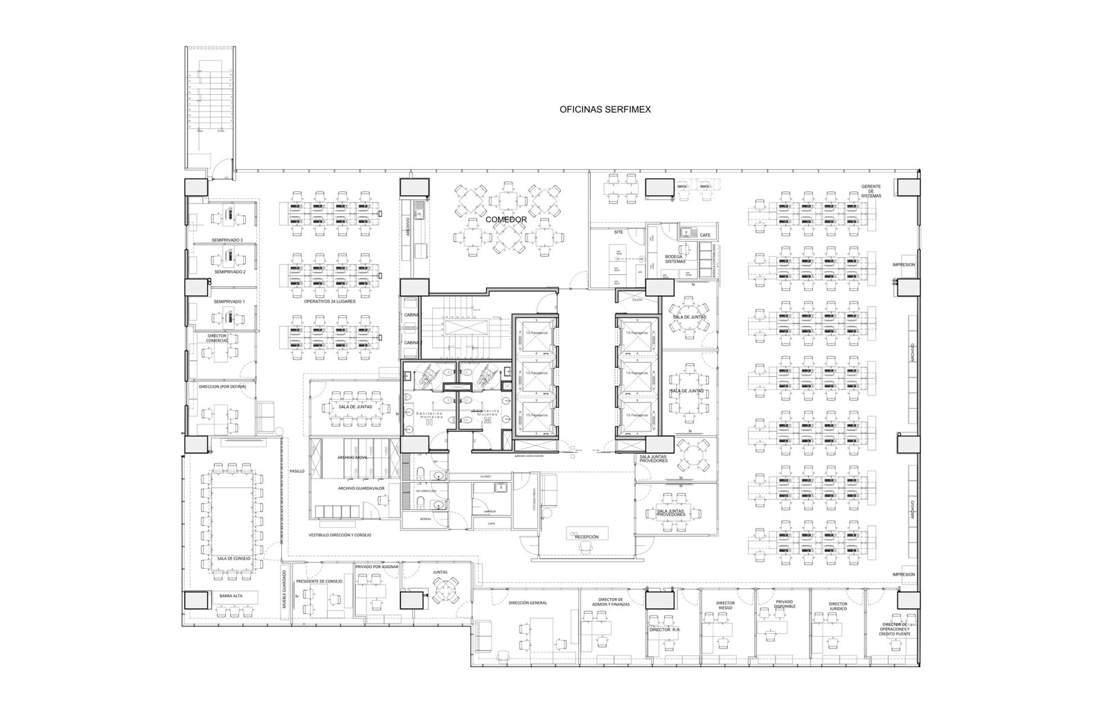
El éxito de la empresa Serfimex nos llevó a retomar el espacio adicional que quedó pendiente en la primera fase y presentar una propuesta para el crecimiento del área comercial. Con base en los parámetros definidos para el proyecto original surge la propuesta para Serfimex 2.0 que comprende: área operativa, zona de gerentes, una sala de juntas y cabinas para el trabajo individual o llamadas telefónicas con mayor privacidad.
La conexión entre ambos espacios se da en dos lugares. El primero es por el pasillo de la dirección y el segundo por el comedor, logrando la libre circulación y el flujo de manera muy armónica. También era muy importante mantener la congruencia entre ambos espacios, ya que, aunque es una nueva fase sigue siendo la misma empresa.
El principio de diseño se relaciona con el proyecto original, un espacio de trabajo abierto con áreas colaborativas y mucha transparencia. La estructura y las instalaciones se dejaron aparentes, delimitando solamente las áreas de los privados, para los que se utilizaron medios muros para enfatizar tanto el espacio abierto como la comunicación. Los únicos espacios cerrados son la sala de juntas y las cabinas de trabajo, que si es necesario se pueden mantener abiertas.
La paleta de acabados y colores también responde a los lineamientos establecidos, habiendo revisado previamente con los usuarios que no hubiera alguna incomodidad o molestia. Se instalaron pisos de SPC que además de ser muy resistentes y fáciles de limpiar, tienen cualidades acústicas correctas para los ambientes de trabajo. También se incorporaron muros recubiertos con Tektil y mobiliario de Estudio M para lograr la continuidad con el primer espacio y un resultado eficiente y productivo.
Créditos del Proyecto
Arquitectura: ARCO Arquitectura Contemporánea
Lideres de Proyecto: Arq. Bernardo Lew, Arq. José Lew, Arq. José Memún
Colaboradores: Oscar Sarabia, Azucena Santillán, Miguel Ocampo, Fernanda Villareal, Federico Teista, Cynthia Luna, Beatriz Canuto
Ubicación: Ciudad de México.
Área: 250 m2
Año: 2022.
Fotografía: Jaime Navarro



