EDAA
Yácatas 475 acorta la brecha entre la arquitectura y la inmobiliaria al hacer de todo el proceso (diseño, gestión, construcción, comercialización) una experiencia de diseño.
Busca resolver la complejidad que implica generar una arquitectura contemporánea que responda contextualmente al irregular perfil urbano, y simultáneamente enfrentar las presiones del desarrollo inmobiliario: alto valor del suelo, densificación, reglamentos de construcción, costos de suelo y obra, demanda de mercado y tiempo de ejecución.
Contextualmente, se inserta con una fachada cuadrada, negra y reflejante. El azulejo, ahora en desuso, captura los reflejos de los edificios vecinos y de las luces que los rodean, al tiempo que imprime a la calle un carácter especial. La fachada se impregna de sus alrededores mientras que logra una sutil y estilizada abstracción en negro. Utiliza un material de alta durabilidad, no sólo por su legado histórico y características de bajo mantenimiento sino también por lograr una exposición absoluta de sus propiedades estéticas: saturación de luz y color.
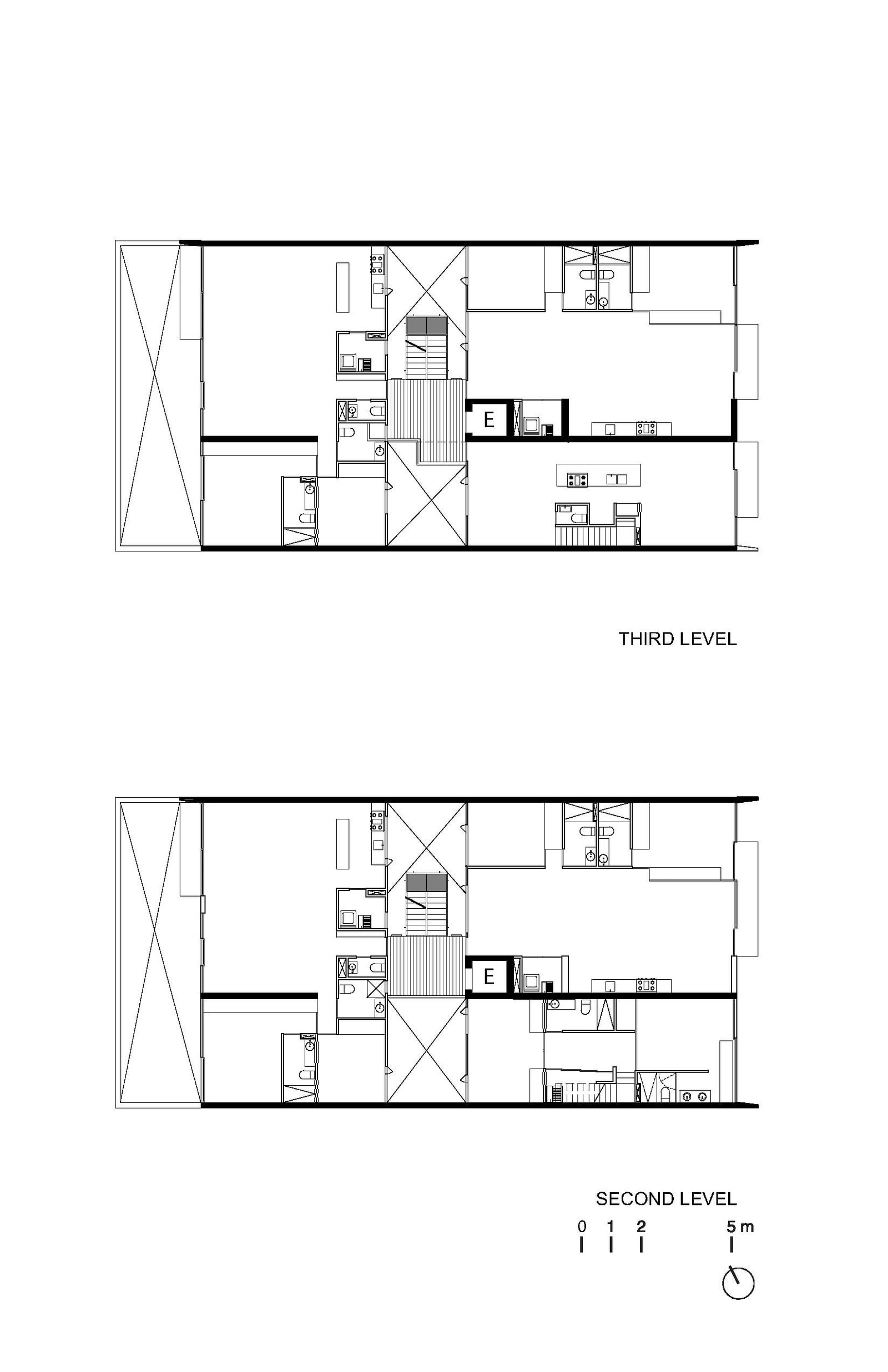
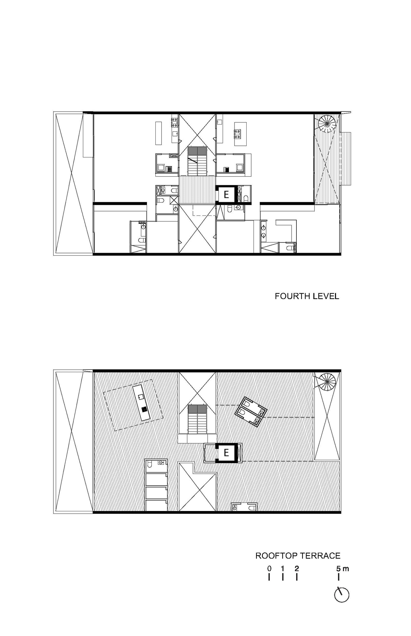
Esta arquitectura busca ofrecer una vida cómoda a un precio de mercado. El lujo se consigue mediante la combinación de espacios amplios, flexibles, con luz natural y una cuidadosa paleta de materiales comunes. Los nueve departamentos que conforman el condominio viven continuamente hacia el exterior en sus fachadas frontales y traseras. La luz y ventilación natural son una constante. El conjunto de las áreas comunes –la azotea habilitada como roof garden, los vestíbulos abiertos, las terrazas y los patios– se convierten en una forma de vida.
La geometría del edificio es simple y eficiente en términos económicos y espaciales. La construcción de cuatro niveles de vivienda y un semisótano se desplantan sobre un cajón de cimentación ocupado por el estacionamiento, mientras que los cuatro niveles habitables están estructurados por marcos de concreto con muros de carga laterales y losas de vigueta y bovedilla. Esta construcción no sólo es ligera sino que permite maximizar los tiempos de construcción, a la vez que logra espacios amplios y flexibles para que sus habitantes puedan configurarlos según sus necesidades futuras.
Créditos del Proyecto
Ubicación: Residencial, Narvarte, Ciudad de México
Alcance EDAA: diseño, publicidad, desarrollo de arquitectura, supervisión de obra.
Alcance GARBA: desarrollo inmobiliario, ventas, marketing.
Área de construcción: 1800 m²
Área del sitio: 440 m²
Equipo de diseño: Luis Arturo García, Jahir Villanueva, Juan Hernández, Hans Álvarez, Enrique Villalón, Antonio Rivas, Ana Rodríguez.
Consultores: PBS Ingenieros, MS, Bimsa Reports, EMR, Alejandro García Lara.
Fotografía: Yoshihiro Koitani.
Cliente: GARBA.





