Serrano Monjaraz arquitectos
Un edificio con historia…Francisco J. Serrano (1900-1982), uno de los creadores de las colonias Hipódromo Condesa y Polanco, con cientos de edificios emblemáticos, entre ellos el edificio Basurto (1939), crea junto con su hijo Francisco Serrano Cacho (del despacho Serrano Serrano y Nava) el edificio Juan de la Barrera 5 (1967).
Con el cual, en su tiempo, fueron ganadores de prestigiados premios por su innovación en cristal y aluminio.
Un edificio con vida…La finalidad de este proyecto fue volver a darle vida después del sismo del 19 de septiembre del 2017.
Se trata de una rehabilitación estructural, que nace desde sus cimientos a 18m. de profundidad, hasta su revestimiento de acero en sus 8 niveles de altura.
Se buscó respetar la esencia y el diseño original, trayéndolo a la actualidad a través de la aplicación del nuevo reglamento de construcción, el uso de materiales innovadores, la integración de las últimas tecnologías y la vanguardia de la sustentabilidad.
Un edificio único…Por su ubicación a menos de 100 m. de distancia del parque España, y rodeado por otros pulmones de la CDMX, se considera un predio privilegiado.
Se encuentra en una de las calles más tranquilas de la condesa, pero con una accesibilidad envidiable a una amplia variedad de establecimientos comerciales, como restaurantes, bares, tiendas, teatros y galerías.
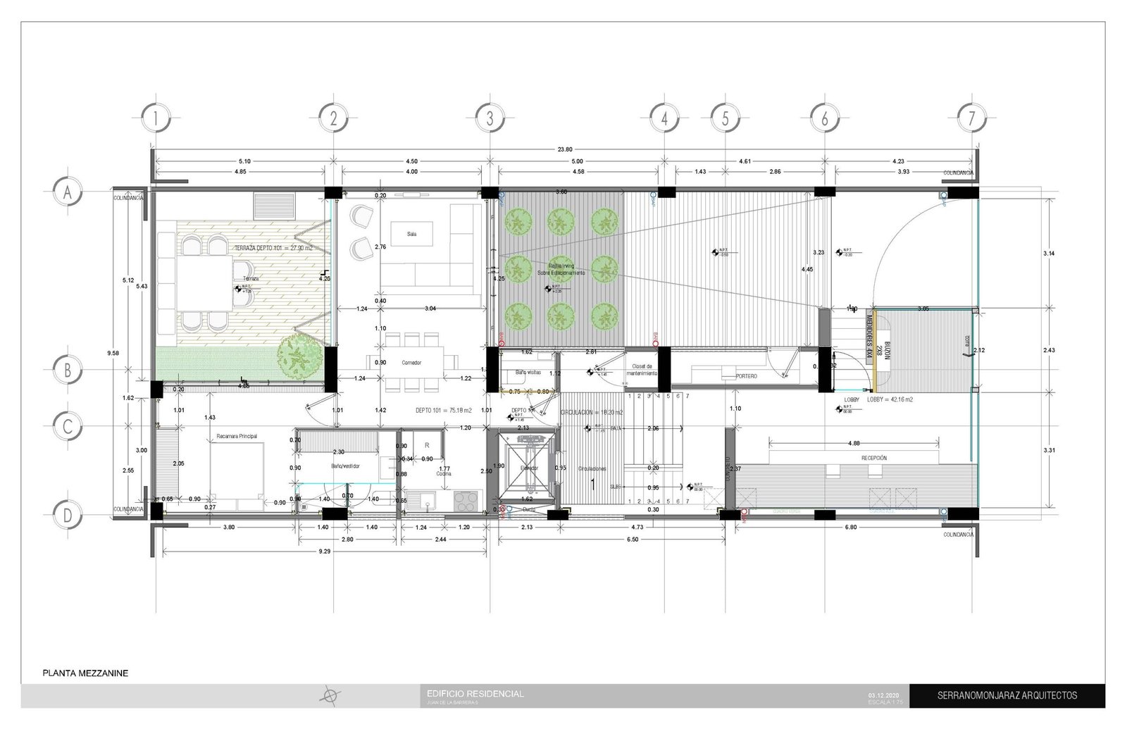
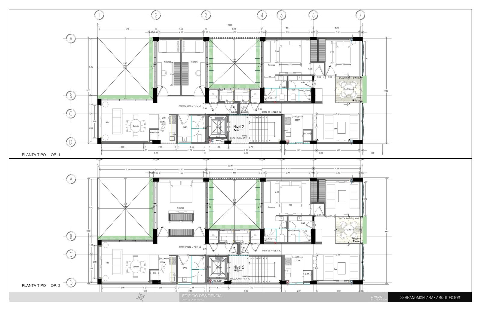
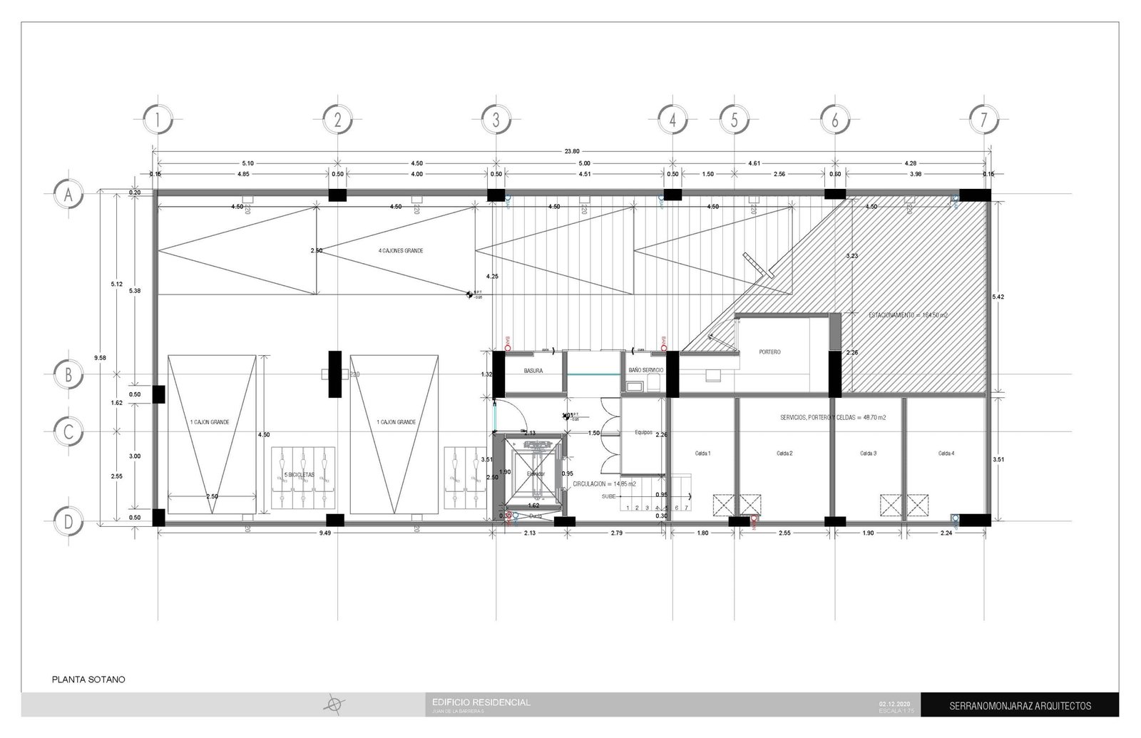
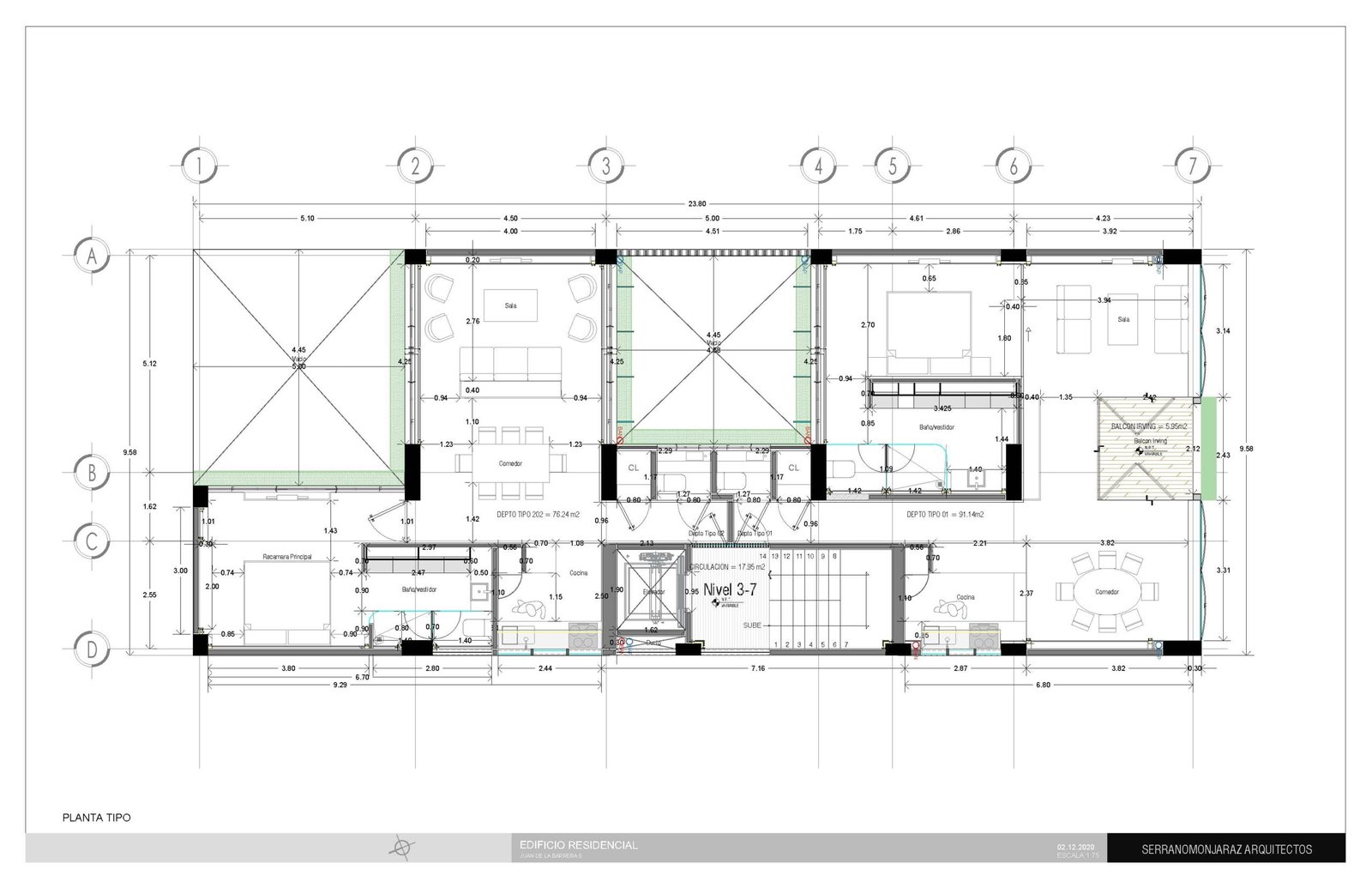
El proyecto consta de un lobby, estacionamiento, mezzaniene, 15 residencias en las cuales las plantas tipo pueden variar de una recamara con vestidor y 1.5 baños, otra opción con 2 recamaras y 1.5 baños y otra de 2 recamaras y 2 baños por departamento. Para que de esta forma el usuario pueda elegir el diseño que mejor se acople a sus necesidades. Y finalmente los PH de dos niveles.
Es un proyecto único, ya que ofrece:
Acabados de alta calidad, revestimientos de madera en pisos y muros, jardines verticales y terrazas en la mayoría de los departamentos, cristales Duo-vent que permiten el cuidado de la acústica de cada departamento. Y al ser un edificio sustentable en la azotea se cuenta con fotoceldas, una cisterna de agua pluvial a potable lo que permite ahorrar de manera significativa el agua. Un diseño único de iluminación 100% led.
Integración del sistema inteligente “Alexa” en cada departamento, de la misma manera las cámaras de seguridad cuentan con un sistema inteligente y vigilancia 24/7. Un elevador inteligente e instalación para coches eléctricos en el estacionamiento, el edificio tiene una eficiencia térmica y acústica que permite la privacidad y confort para los usuarios. Se cuenta con una ausencia de la instalación de gas, ya que la vanguardia e innovación se refleja en los accesorios eléctricos, hidráulicos y de la cocina ya que todos funcionan por la electricidad. En los sanitarios se manejan marcas de lujo, al igual que todos los acabados de lujo que se tienen en todo el proyecto.
Créditos del Proyecto
Ubicación: Juan de la Barrera #5
Col. Condesa Cuauhtémoc 06140
Ciudad de México, D.F.
Proyecto:
Serrano Monjaraz Arquitectos
Arq. Juan Pablo Serrano Orozco.
Arq. Isabel Arechederra Tovar.
Fecha de proyecto: octubre 2017 – agosto 2021
Superficie construida (m2): 1,584m2 con 15% en circulaciones
Iluminación: Arq. Luis Lozoya; Luz y Forma.
Fotografía: Jorge Guadarrama.
Reestructuración: DIIN
Cristal y aluminio: Val y Val
Carpintería: DCBS





