Héroes 227
ARQMOV Workshop

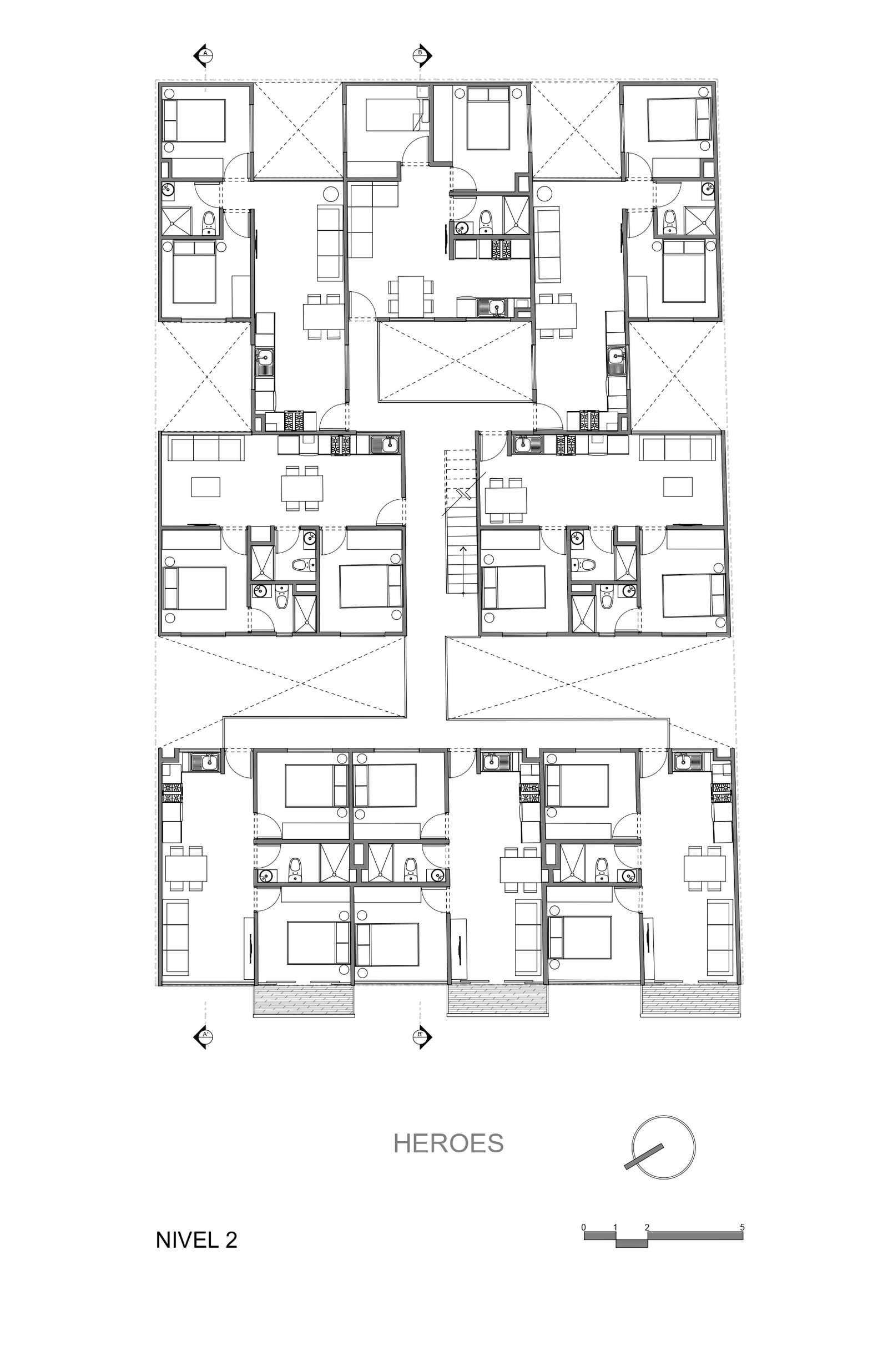
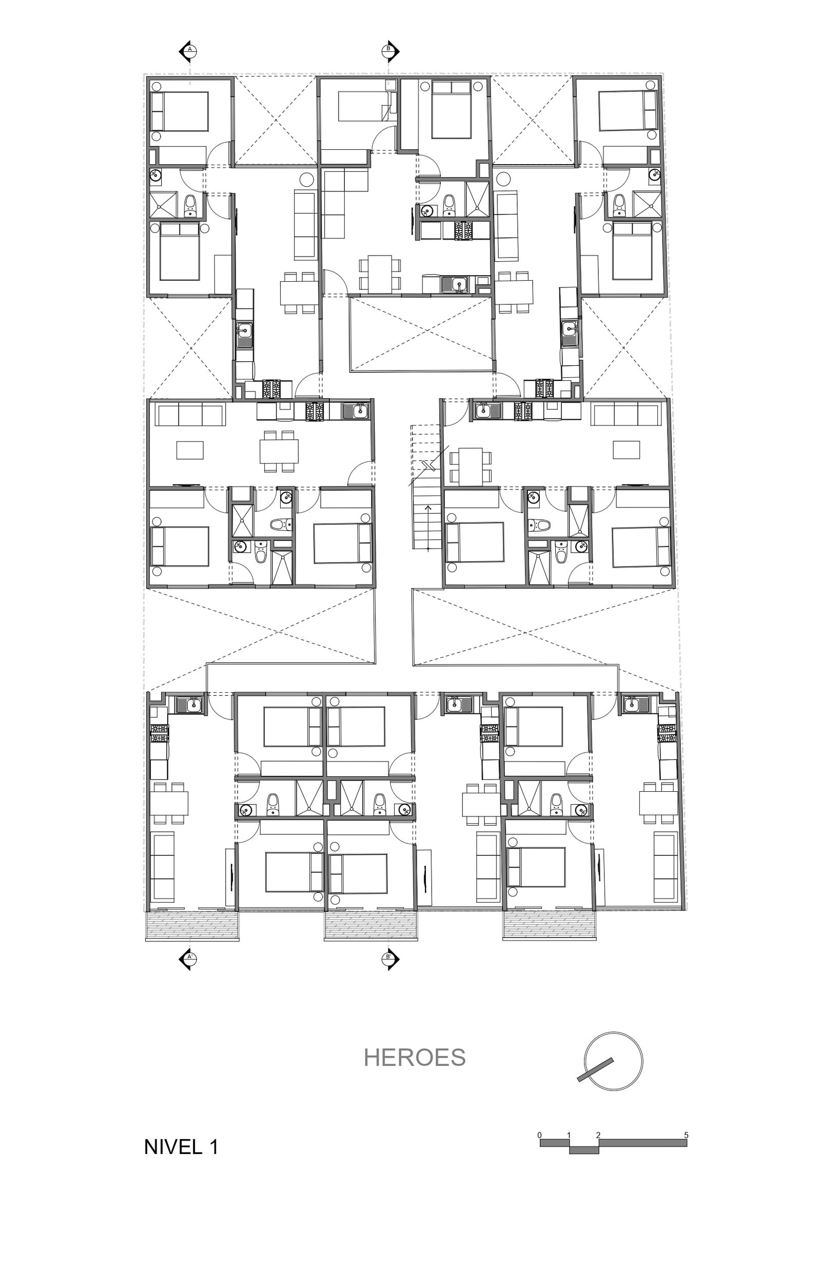
Es un edificio de vivienda multifamiliar nivel medio, ubicado en la calle Héroes No. 227, Colonia Guerrero, una de las primeras colonias que se fundaron durante el siglo XIX en la CDMX, la cual se caracteriza por ser un barrio popular de vecindades y departamentos.
La intención del diseño es la preservación de los asentamientos antiguos que tuvieron el beneficio de la Norma 26 (2 niveles adicionales), no obstante, nuestra aportación fue el mejorar la calidad de vida sin sobrecargar la ocupación del suelo, optando por respetar la altura de construcción en solo 3 niveles sobre nivel de banqueta.
Modulando la superficie del predio en cuadrantes se generó la ubicación de cada departamento, así como las áreas comunes y cubos de iluminación y ventilación, resultando así un edificio funcional y estéticamente sobresaliente, con departamentos de 50m2 en promedio.
Fue construido con pocos materiales aparentes que requieren de bajo mantenimiento, integrando como material principal el block negro con la estructura de concreto a base de muros de carga con castillos ahogados.
El confort se logra a través de estrategias de diseño pasivo, mediante vanos que otorgan ventilación cruzada e iluminación natural durante el día, así como la elección del block negro, que por ser térmico no demanda calefacción o aire acondicionado, garantizando así la calidad del ambiente interior.
La optimización de los recorridos de instalaciones de suministro de agua caliente y fría, así como descargas de aguas negras, pluviales e instalaciones eléctricas se obtiene mediante la unificación en un solo ducto para los servicios de cocina, lavandería y baños, por cada 2 departamentos.
A través de la utilización de equipos de bajo consumo y la captación de agua pluvial para uso sanitario, se genera la reducción en el consumo de agua potable.
En materia de energía eléctrica, cada departamento tiene de 8 a 10 salidas de iluminación y de 8 a 10 contactos, suficientes para el consumo promedio.
Créditos del Proyecto
Arquitectura: ARQMOV Workshop
Lideres de Proyecto: Eduardo Micha, Fabio Correa, Gabriel Merino.
Equipo de Diseño: Oscar Osorio, Christian Rodríguez, Maricruz Pérez, Daniel Miranda, Erika Nava.
Ubicación: Ciudad de México.
Área: 1,857 m2
Año: 2021
Fotografía: Jaime Navarros





