Pabellón de arquitectura
El proyecto consiste en un conjunto de 3 casas ubicadas al sur de la Ciudad de México las cuales fueron pensadas para que se volvieran un ícono tanto arquitectónico como sustentable y tecnológico.
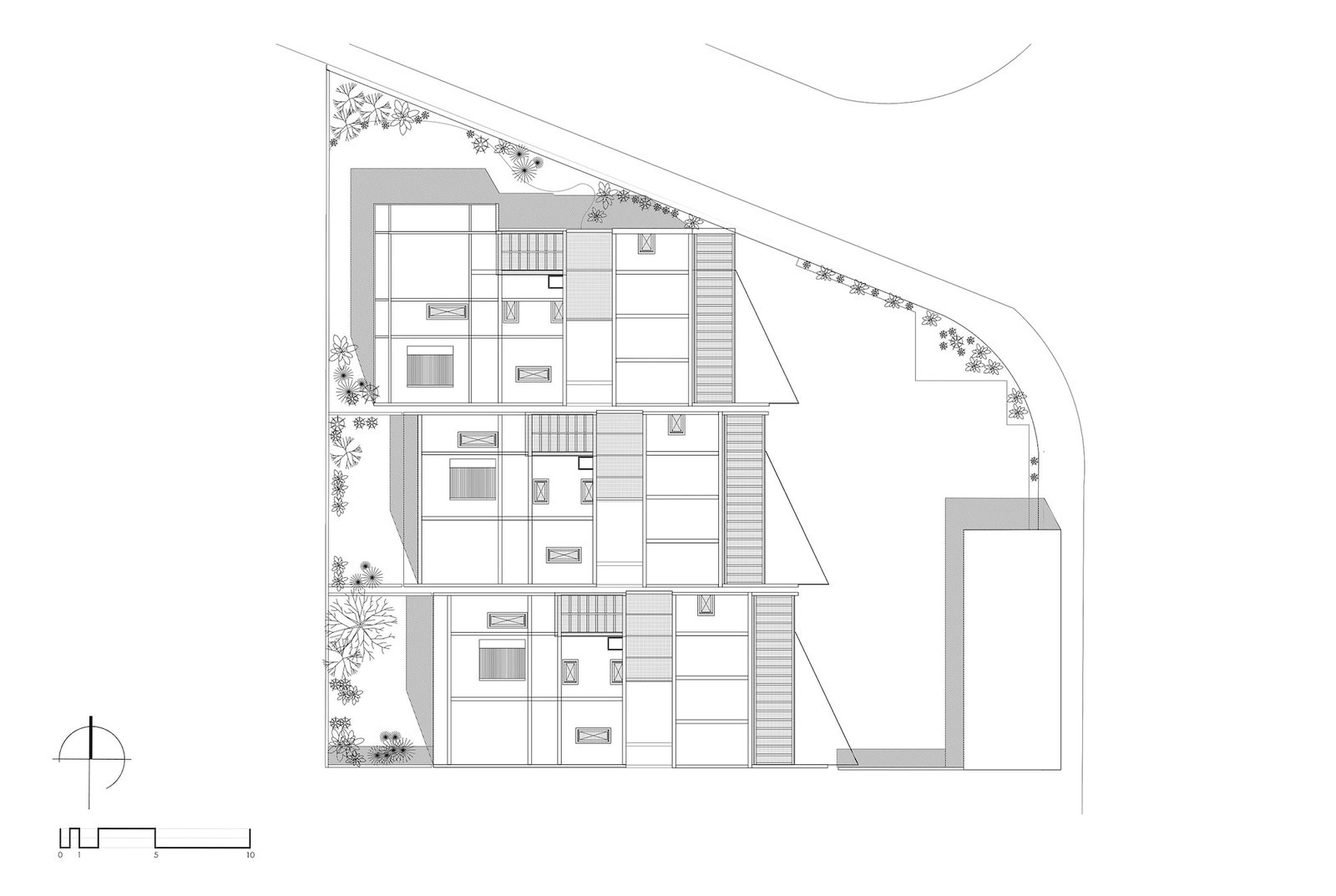
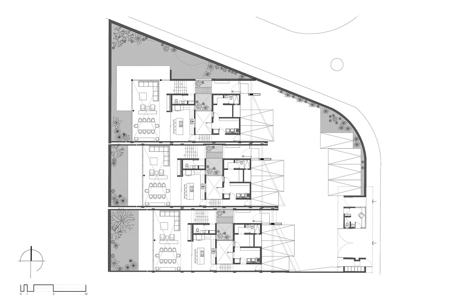
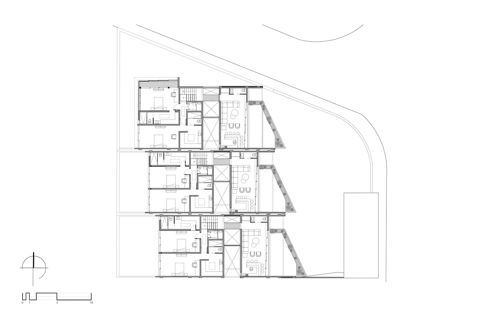
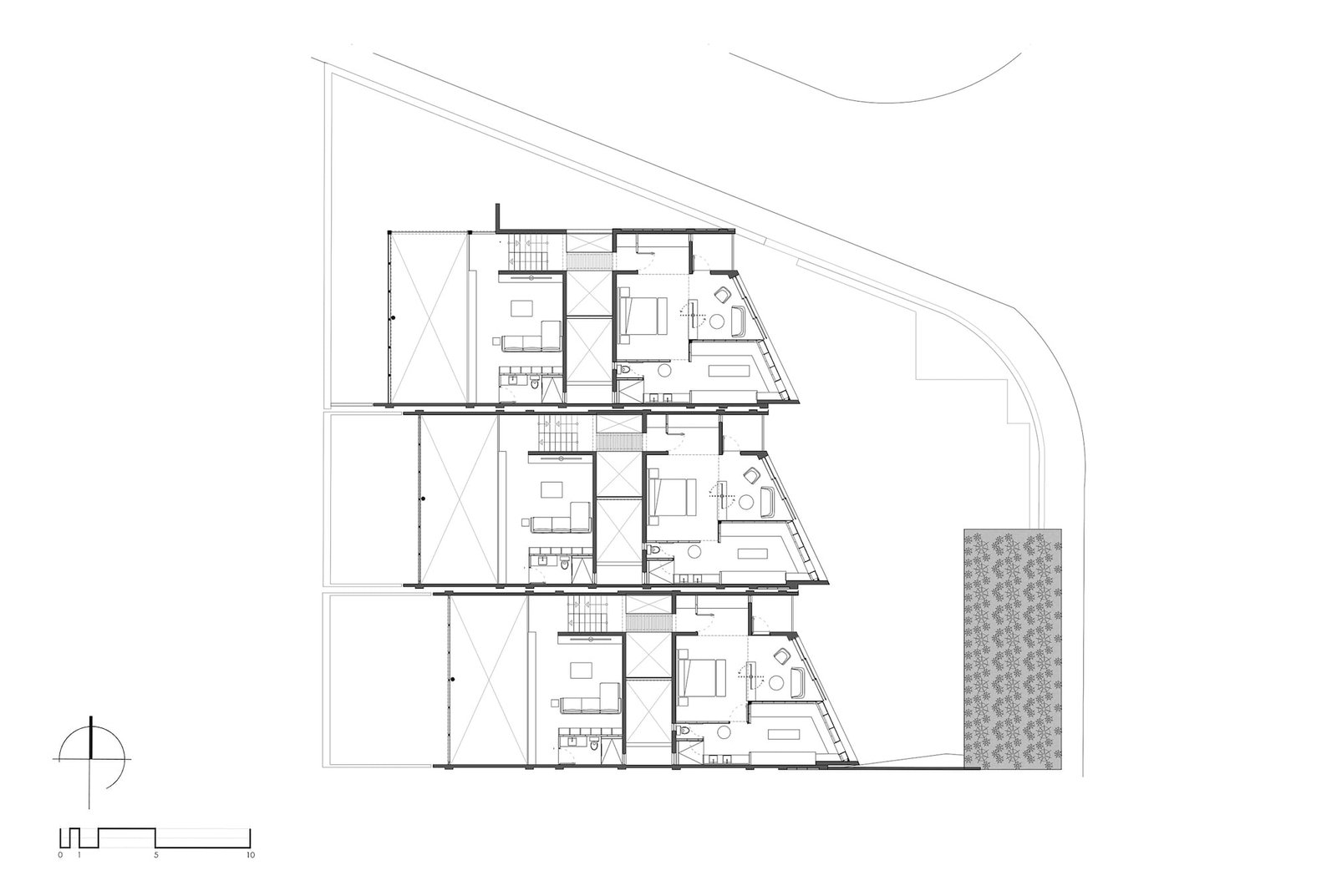
El diseño formal surge directamente de la geometría del terreno y la cercanía a la gran reserva natural de la Ciudad Universitaria, en torno a la cual se plantearon las vistas principales.
Estas casas debían presentar una gran opción de venta al público dentro de un ambiente económico/ecológico complicado en nuestro país y específicamente en la Ciudad de México.
Por lo cual se tenía que lograr el construir unas casas que por un lado ofrecieran amplios espacios, con un estilo moderno/minimalista lleno de lujo y confort. Y por otro, atendieran a las inclemencias de un medio ambiente cada vez más complejo en donde la escasez de recursos y los elevados costos de la energía generan un problema económico y ecológico apremiante.
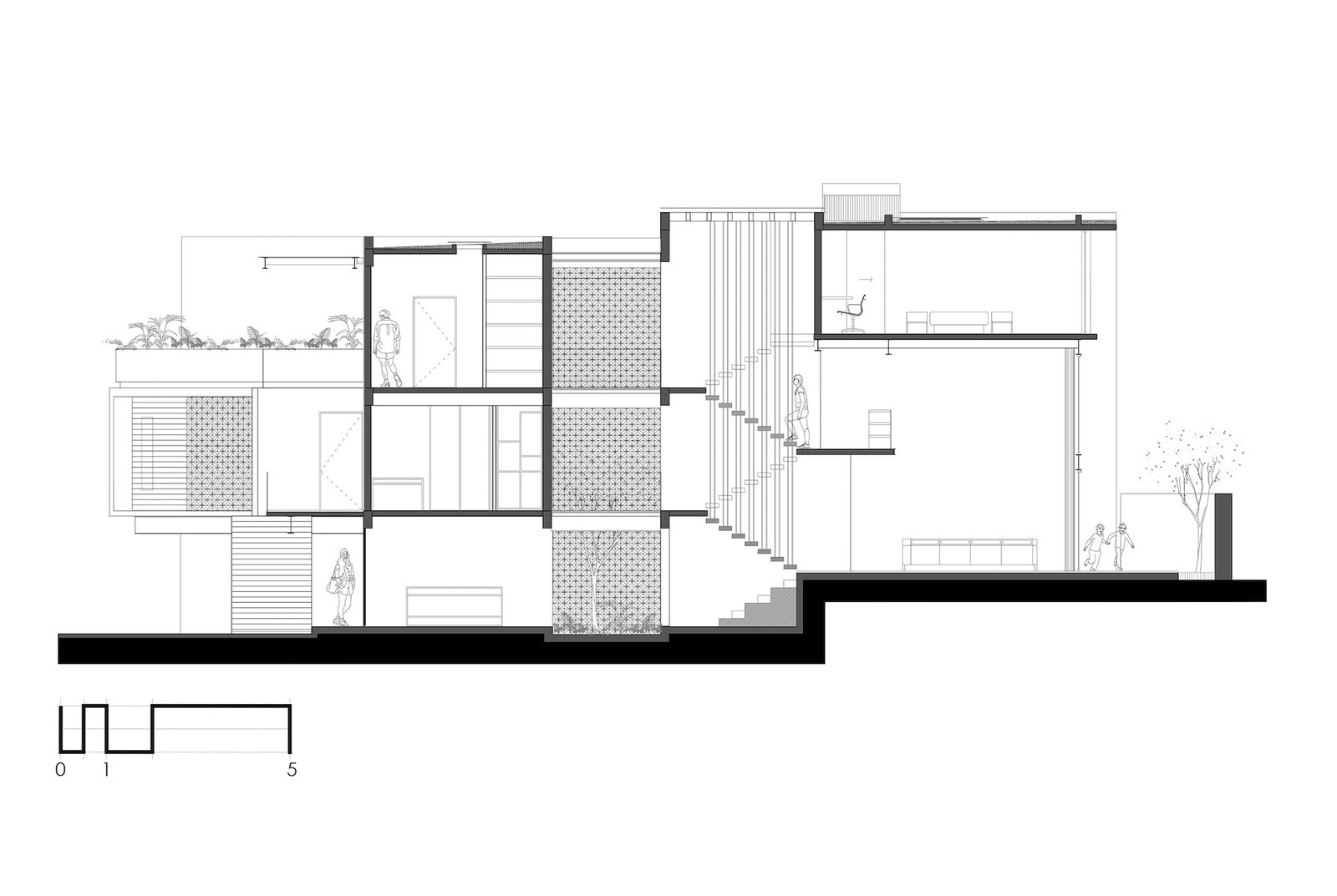
Hablando del funcionamiento y de la arquitectura en general, se planteó un esquema de medios niveles y plataformas a diferentes alturas que separa los espacios públicos de los espacios privados conectándolos por medio de puentes y escaleras aprovechando al máximo el espacio disponible y adaptándose a la geometría de un terreno irregular en esquina.
Se propusieron jardines internos siguiendo la idea de la arquitectura “orgánica” propia de la zona del Pedregal en donde el exterior se vuelve el interior introduciendo al mismo tiempo iluminación y ventilación natural.
En cuanto a temas de sustentabilidad se planteó una estrategia que combina sistemas pasivos con sistemas activos. Aprovechando correctamente la orientación para proveer de la mayor iluminación y ventilación natural posible se generaron diversos tragaluces y grandes ventanales a lo largo de toda la casa, así como también un gran atrio en donde por efecto chimenea el calor de la casa sube enfriando naturalmente y manteniendo una temperatura regular y confortable durante todo el año, de forma que no es necesario incluir un sistema de aire acondicionado.
En cuanto a los sistemas activos, las azoteas están diseñadas para captar la mayor cantidad posible de agua de lluvia, la cual es tratada mediante el uso de filtros con la más alta tecnología almacenándola para posteriormente reutilizarla para el riego y los WCs.
Se instalaron paneles solares orientados totalmente hacia el sur con una exposición completa durante todo el año. Así mismo, se instalaron calentadores solares en cada una de las viviendas para poder contribuir al ahorro de gas para calentar el agua utilizada en los baños y cocinas.
Todo este sistema de ahorro y optimización de recursos es controlado y monitoreado en tiempo real por un innovador sistema de domótica que se desarrolló específicamente para este proyecto en colaboración con un grupo de Ingenieros especializados en ingeniería mecatrónica y sistemas.
Este sistema está directamente conectado a toda la casa, y por un lado permite la supervisión del estado y gasto de los recursos en tiempo real y por otro, sirve para poder controlar automáticamente todos los sistemas de persianas, iluminación y seguridad. Planteando una completa practicidad y comodidad a la vivienda mientras se concientiza al usuario a cerca del gasto energético y la importancia del ahorro de recursos. Ahorrando en conjunto con todas las implementaciones activas y las pasivas hasta un 65% de los recursos.
Créditos del Proyecto
Arquitectura: Pabellón de Arquitectura
Arquitectos a Cargo: Sebastián Navarro Mora, Héctor Fuentes Veyna, Alvaro Rodríguez García, Alvaro Navarro, Rolando Fuentes, Gabriel Meléndez
Equipo de Diseño: Monserrat Martínez, Selene Guerra, Israel Hernández
Superficie construida: 1,500m2
Ubicación: Llanura 294, Pedregal, Ciudad de México.
Año: 2019
Fotografía: Jaime Navarro Soto.





