Casa NEO - TaAG Arquitectura
TaAG Arquitectura

Casa Neo es un proyecto desarrollado en tres niveles con 830 m2 de construcción, en un condominio residencial al poniente de la ciudad, en Zapopan, Jalisco; con estrictas regulaciones en su manual de construcción, con el fin de mantener una imagen estética dominante, que en la actualidad nos habla más de anacronismo que de una búsqueda de belleza colectiva.
El cliente contaba con una clara y fuerte idea estética de su proyecto. Una casa completamente ortogonal, con un lenguaje claro y reduccionista, un container básicamente. Y así la idea se trabajó durante varios meses, logrando reducir al mínimo la volumetría de la casa. La cual se resuelve con la intersección de tres cuerpos ortogonales perpendiculares entre si, a manera de un jenga, que intercalados van completando el programa en un desarrollo vertical, utilizando la cota máxima de altura permitida por el fraccionamiento.
El primer cuerpo, semi-enterrado, aprovecha la topografía del terreno, solucionando el requerimiento del cliente de tener un programa público independiente del resto de la vivienda. Se contempla un acceso alterno a la vivienda el cual conduce al estudio, a una pequeña sala de juntas y un salón de juegos logrando así un home office independiente del programa residencial.
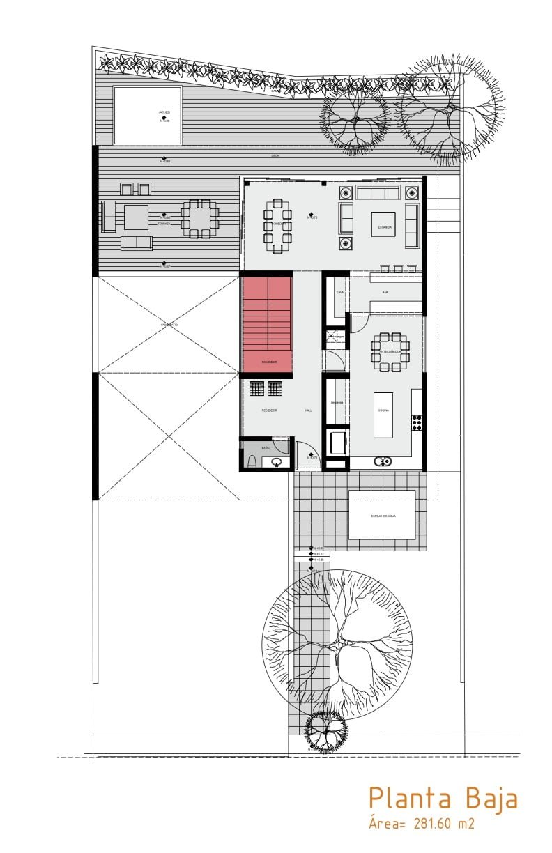
Al segundo cuerpo se ingresa por una pequeña escalinata que conduce a la planta baja de la vivienda (a media altura sobre el nivel de calle). Ésta contiene el programa social del proyecto, concebida como una gran caja de cristal que se articula por medio de un eje compositivo y visual perpendicular que distribuye al programa social: ingreso – recibidor – estancia – terraza.
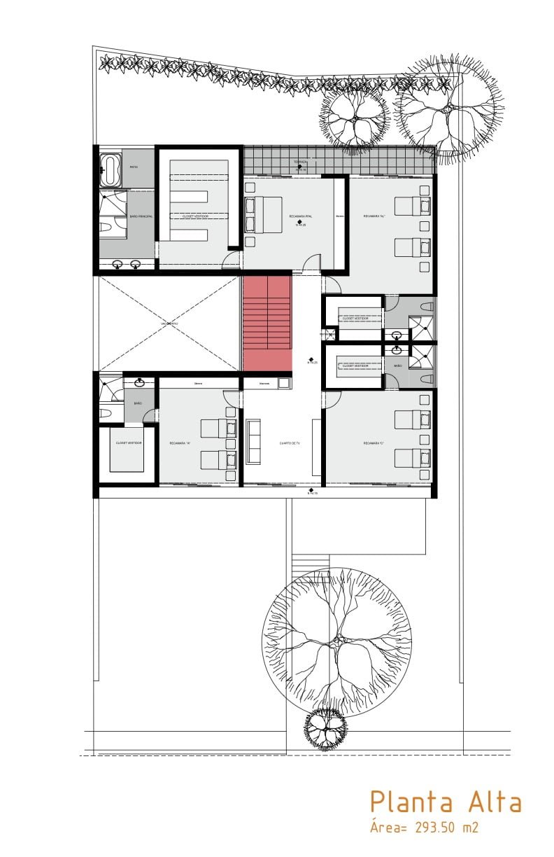
El proyecto cuenta con un crujía central al que todos los espacios observan, acceden y articula al programa arquitectónico: Un patio central y el núcleo de escaleras.
El patio cuenta con una gran ceiba que es visible de cualquier punto de la residencia, permitiendo una excelente iluminación y ventilación natural a toda la casa. La escalera de papelillo en concreto aparente se convierte per sé en un elemento decorativo y protagonista. Aunado al uso de un cristal rojo que re-califica el espacio por medio de la luz, dándole nuevas perspectivas en el transcurso del día. Fuera del uso del color en este espacio, la casa no cuenta con elementos decorativos adicionales a lo estrictamente constructivo por petición del cliente.
El tercer cuerpo en orden ascendente contiene el programa privado, diseñando como una gran caja con aperturas más discretas y dirigidas hacia puntos visuales interesantes. En planta se resuelve como una crujía que envuelve el núcleo central y proyecta las visuales al exterior de la vivienda. Compuesta por tres habitaciones secundarias y la principal en el extremo opuesto, además de una sala familiar que se convierte en el complemento ideal para las actividades personales de los hijos.
Créditos del Proyecto
Ubicación: Zapopan, Jalisco.
Año: 2017.
Área: 830 m2.
Autor: TaAG Arquitectura / Arq. Gerardo Ayala García de Quevedo.
Construcción: TaAG Arquitectura.
Interiorismo: TaAG Arquitectura.
Materiales utilizados: Estructura de concreto, yeso, ventanería en aluminio, pisos de mármol carrara, carpintería y piso en duela de nogal. Recinto (piedra volcánica).
Fotografía: Adlai Pulido.





