Casa Loma De Vallescondido
ESKEMA Arquitectos

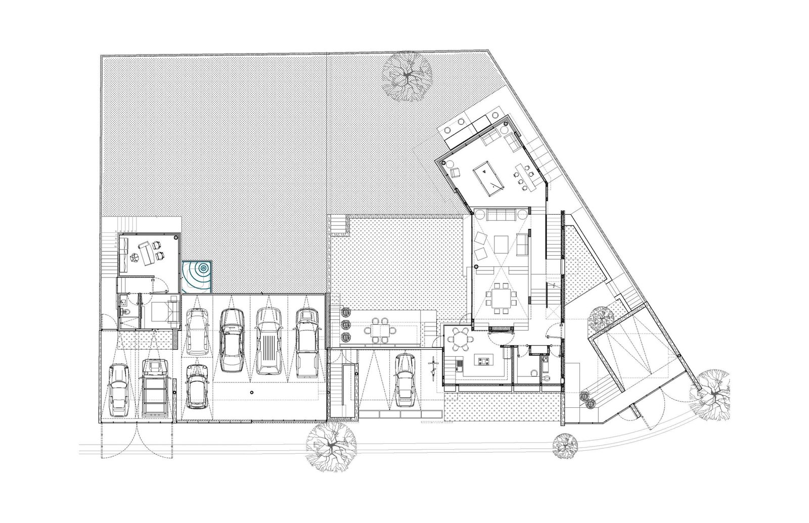
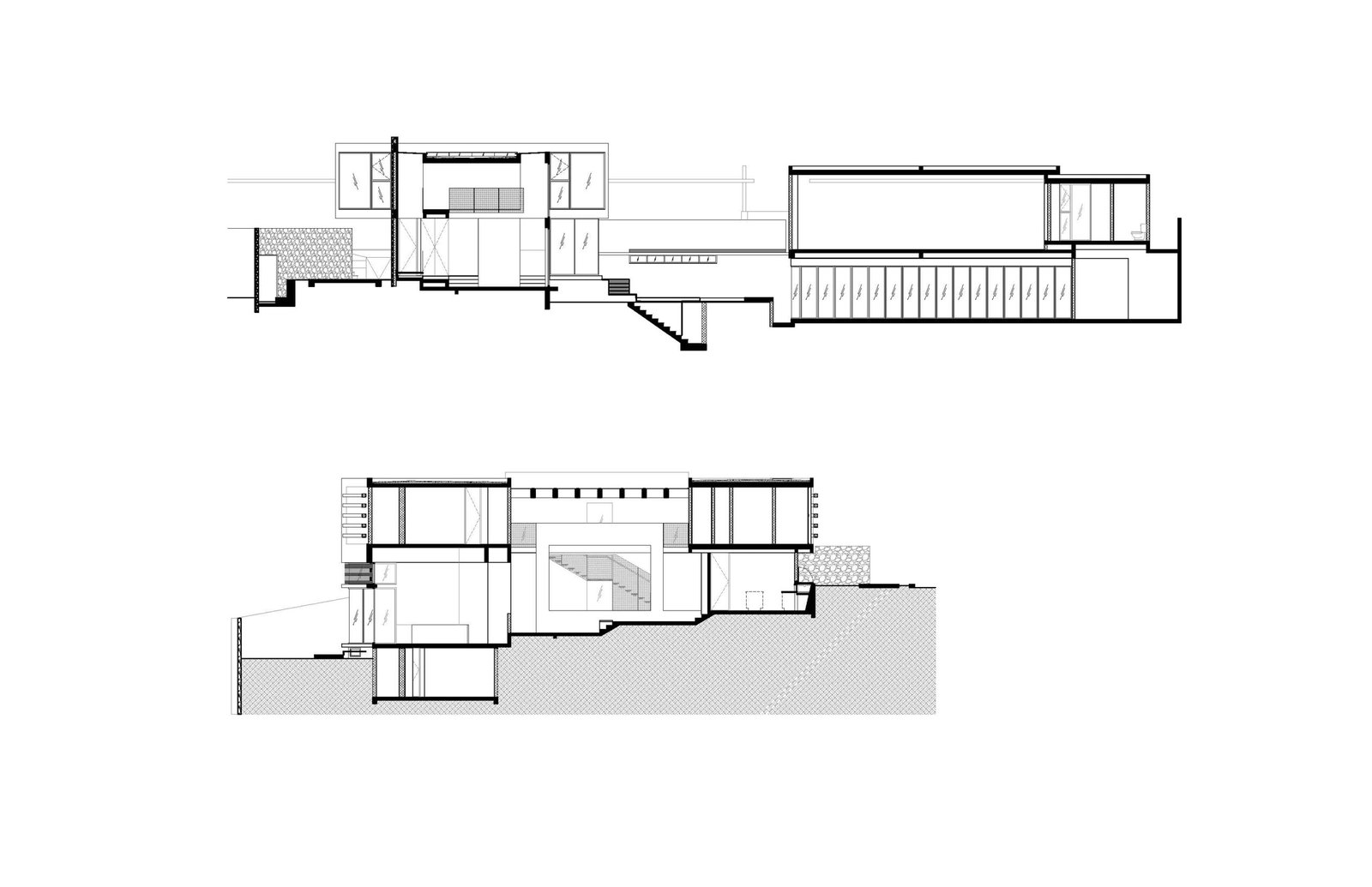
El sitio del proyecto se ubica en la zona norponiente de la ciudad, en la Zona Esmeralda del Estado de México. Es una zona fría de muchas lomas con excelentes vistas. El predio tenía una forma trapezoidal con pendiente descendente, y grandes vistas hacia el norte. El cliente solicitaba aprovechar las vistas con una casa cálida y un gran jardín. Había que encontrar una forma que resolviera todos los problemas en una misma idea. Aprovechando la forma del predio, se decantó la propuesta hacia una planta en forma de “T” que aprovechaba el sol oriente-poniente y obtenía las vistas lateralmente, reservando mucho espacio libre para el jardín que convive con todos los espacios. Los cuartos secundarios tendrían calor del lado sur y vistas hacia el norte.
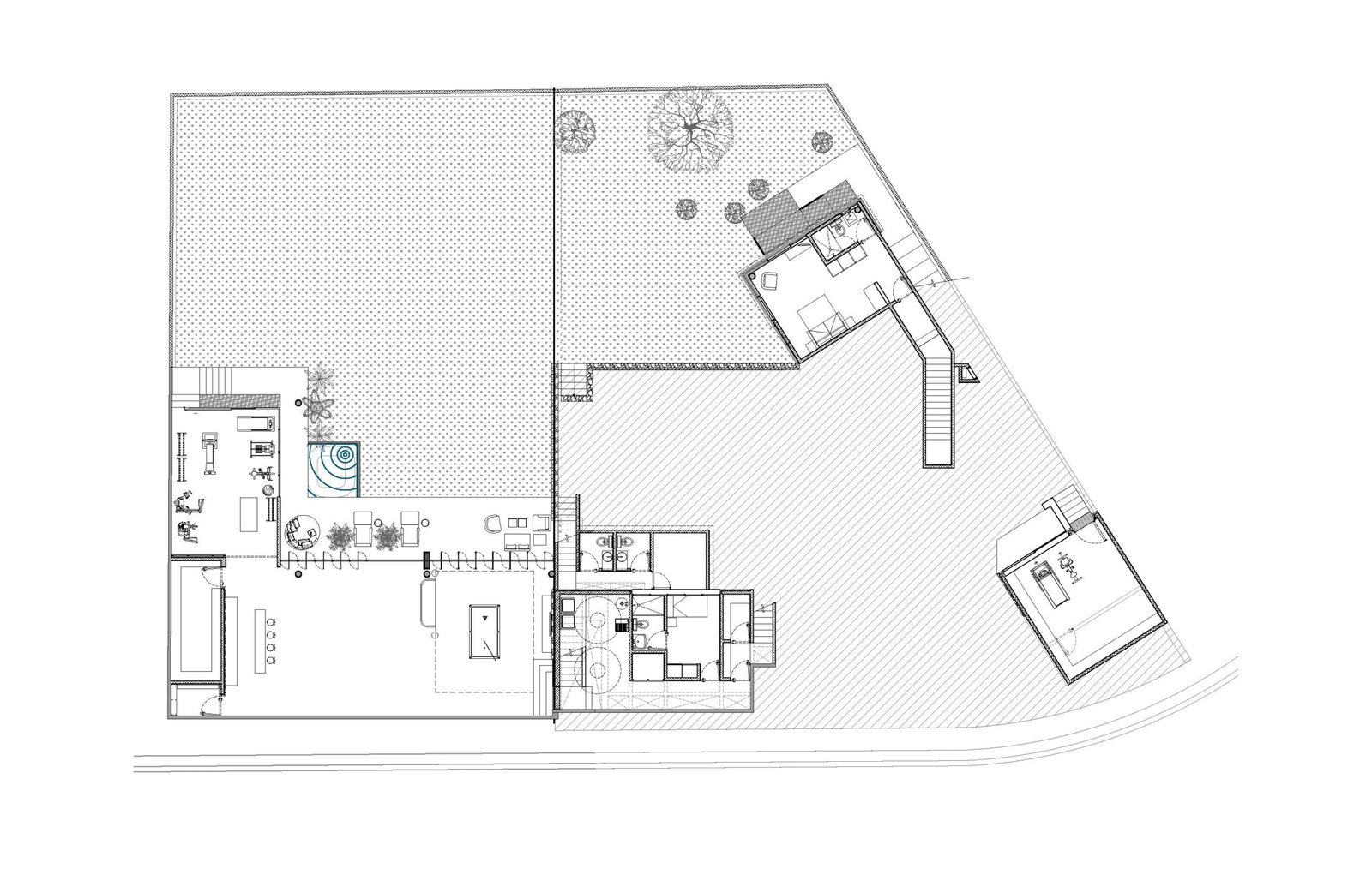
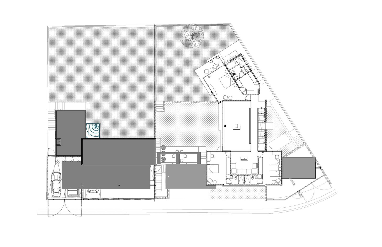
Al mismo tiempo la casa se desarrolla a lo largo de la pendiente del terreno, bajando pausadamente, la distribución la marca un gran muro de piedra que sostiene lateralmente la escalera, misma que conduce al puente que cruza por encima de la sala comedor, dicho puente da privacidad entre la recámara principal y las secundarias. El puente ayuda a crear una doble altura sobre el área de la sala comedor. Este gran espacio central se abre hacia el jardín principal. La composición de los volúmenes muestra un esfuerzo para integrarse al contexto. Planos horizontales metálicos que se intersectan con volúmenes limpios que se cierran al exterior y se abren al interior, soportados por planos verticales de piedra volcánica que se integran con el sitio. Los materiales buscan fundirse dentro del contexto intentando un balance entre calidez y sencillez.
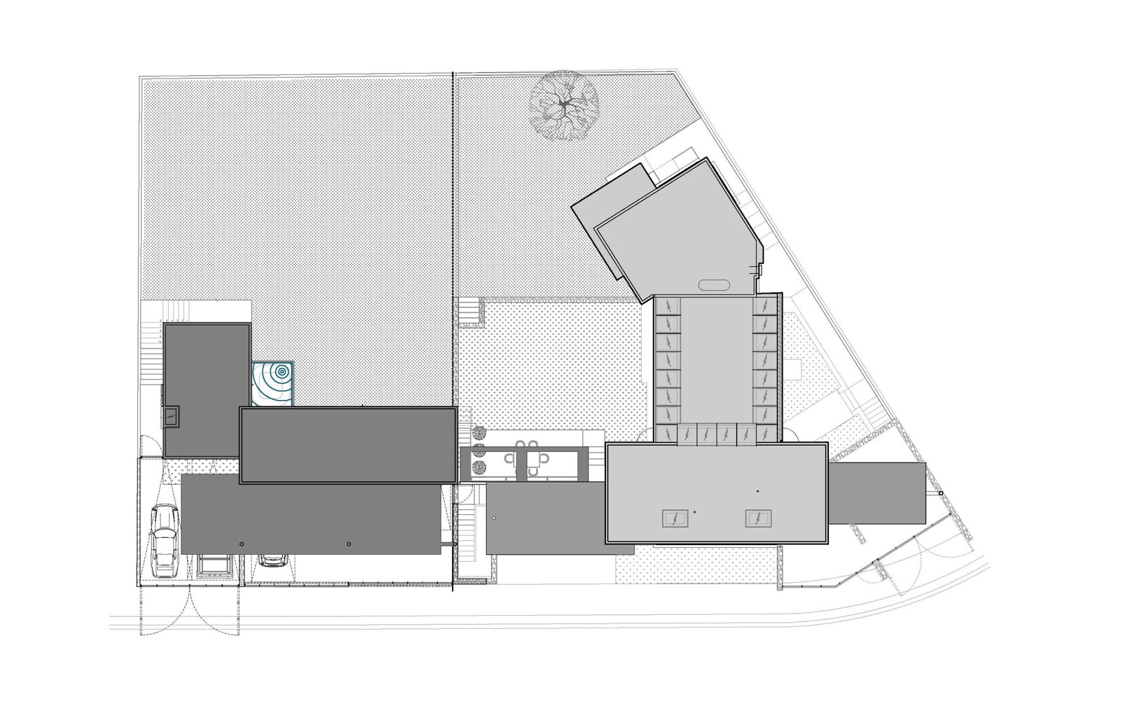
Al cuerpo principal de la casa se le añadió en una segunda etapa, un amplio salón de fiestas que también goza de vista al jardín y cuenta con un bar interior. El estilo de la casa se mantiene moderno y atemporal al mismo tiempo, ya que sus materiales y paleta de colores son neutros. En la fachada destacan las sombras que dan los distintos volúmenes, y las texturas de la piedra volcánica arqueológica en tonos cafés grisáceos que se mezcla con el concreto aparente, y perfiles de acero expuestos en la fachada. Para los interiores se eligió la madera de nogal.
De esta manera el equipo del arquitecto Luis Manuel Gómez Portugal resolvió el conflicto que tenía este terreno entre la vista y la orientación que podría ofrecer.
Créditos del Proyecto
Arquitectura:
ESKEMA Arquitectos
Arq. Luis Manuel Gómez Portugal
Arq. Juan Carlos Jiménez
Ubicación: Residencial Loma de Vallescondido, Zona Esmeralda, Atizapán, Edo.de Mex.
Área: 870m2
Año: 2020
Fotografía: Juan Carlos Jiménez





