ASP Arquitectura Sergio Portillo
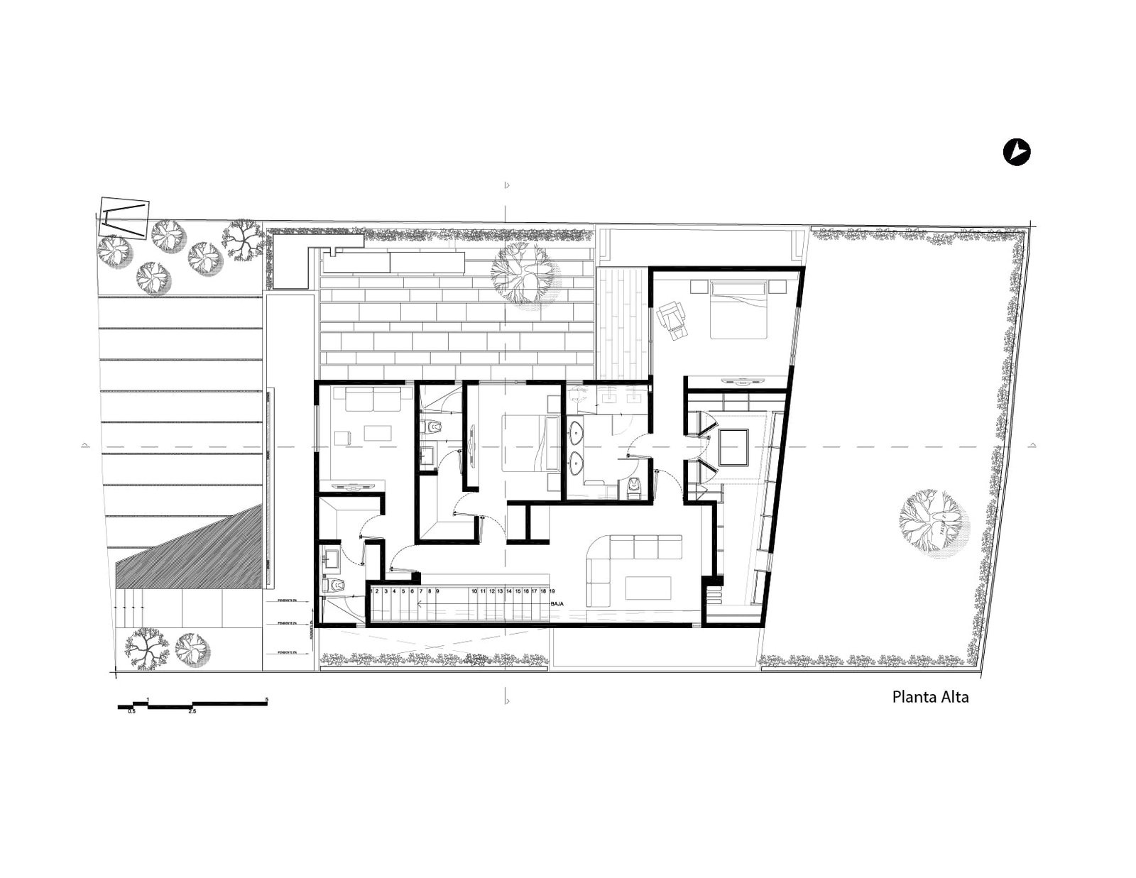
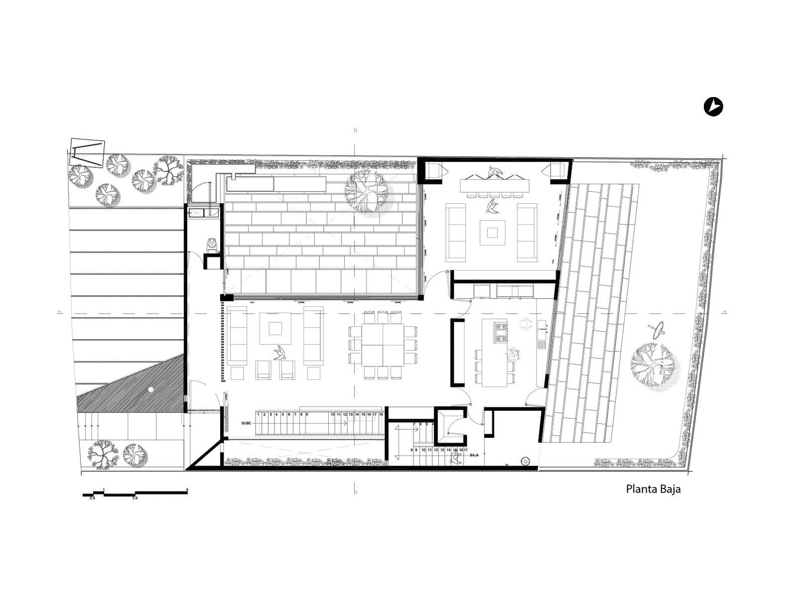
es un proyecto que, bajo su esquema de vivienda, aprovecha las orientaciones y genera un gran patio, a partir del cual se desenvuelve el programa y genera un diálogo entre interior y exterior que, al mismo tiempo, permite la entrada de luz y le da autosuficiencia visual y climática.
Otra forma de autosuficiencia fue la materia prima con la que se construyó la casa. Llevar a cabo el desplante incluyó una excavación y un retiro de tierra importante, por lo cual se utilizó este recurso natural para fabricar bloques de tierra comprimida en el sitio. Esta solución, además de reducir la huella ecológica, le da pertenencia y arraigo definidos por el sitio y no por el arquitecto.
Desde el exterior, el proyecto es un grupo de bloques extruidos que aluden al hermetismo y la masividad de la materia, mientras que al interior, existe una apertura y ligereza de estos elementos en una planta libre. Es la tierra el material unificador del proyecto.
Créditos del Proyecto:
Diseño Arquitectónico: ASP Arquitectura Sergio Portillo.
Director de diseño: Sergio Portillo.
Coordinador del proyecto: Rafael Ovalle.
Desarrollador del diseño: Francisco Machuca.
Ingeniería estructural: Girón Mega Proyectos (Ing. Humberto Girón).
Ingeniería eléctrica: Alta Innovación en Ingeniería .
Diseño de Iluminación: ASP Arquitectura Sergio Portillo.
Construcción del proyecto: LINEAL Construcción y Desarrollo Arquitectónico..
Ejecución eléctrica: Grupo R (Jaime Rangel) .
Director de construcción: Sergio Portillo Alarcón.
Paisajismo: ASP Arquitectura Sergio Portillo – David Villanueva
Ubicación: Santa Fe, Ciudad de México
Área de Proyecto: 517 m2
Año: 2016
Fotografía: Rafael Gamo.





