7 Sur - Puebla
Boué Arquitectos
Descripción del proyecto:
Teniendo clara la importancia del patrimonio arquitectónico de la ciudad de Puebla, la propuesta busca rescatar y reincorporar a la actividad urbana este edificio subutilizado y deteriorado construido en 1972. Las proporciones del edificio histórico preexistentes son respetadas propiciando la integración con su entorno desde su fachada. Los pórticos generan acceso a los locales comerciales ubicados en la planta baja, además de permitir conexión directa con la calle y lo pétreo en su fachada genera continuidad de manera visual con el edificio contiguo en busca de armonía.
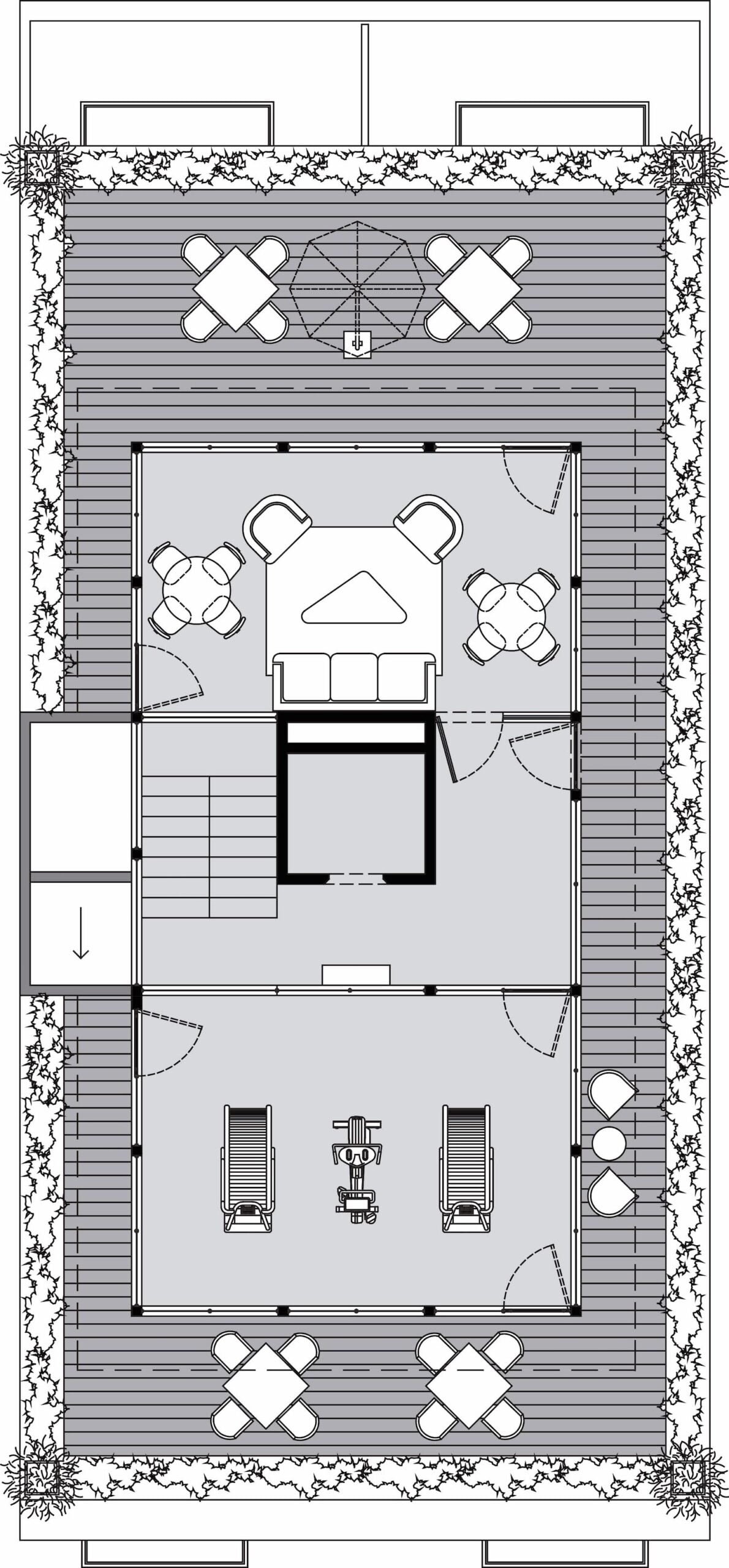
El programa de este edificio de seis niveles incluye locales comerciales, un roofgarden con vistas privilegiadas de la ciudad y veintidós departamentos de hasta 45 m2, cada uno con baño completo, sala, comedor, cocineta y balcón. En el nivel superior se encuentran las amenidades con gimnasio, asador y terraza.
El edificio desde su conceptualización busca ser parte de la reactivación de la vida de barrio, con una estrategia de acupuntura urbana la rehabilitación ha permitido generar una activación positiva y la incipiente renovación de edificios vecinos gracias a que la actividad económica y social comienza a ser constante.
Créditos del Proyecto
Arquitectura: Boué Arquitectos / Arq.Gerardo Boué
Ubicación: Puebla
Área: 132, 920 m2
Año: 2018
Fotografía: Marcos Betanzos Ornelas.





