Silvette
DIN Interiorismo

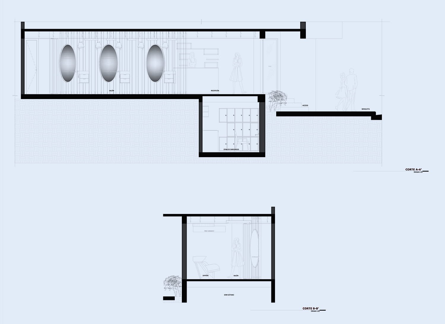
Un ambiente sofisticado era el objetivo solicitado por el cliente para el diseño interior de su salón Silvette. El elemento principal del espacio es una celosía de madera que marca la distribución de las áreas y para enfatizar su protagonismo el equipo de DIN interiorismo decidió iluminarla de forma indirecta para hacerla sobresalir. La celosía sirve además como soporte para las unidades de atención a clientes recibiendo los espejos y cajoneras de cada lugar.
Para darle la vuelta a la falta de espacio se decidió resaltar la división que marca las dos áreas principales del salón y se hizo un cambio de nivel por medio de una plataforma. El local tiene muros de concreto aparente, mismos que no era posible intervenir por reglamento, para resolver esta restricción se seleccionó una paleta de color en tonos cálidos que se combinó con madera y papel tapiz para agregar calidez al espacio.
Se diseñó un plafón, para resolver la falta de muros del local, en el que se definió la iluminación que permite crear distintos escenarios para la operación del salón y el confort de los clientes. El mobiliario tiene una línea sencilla y contemporánea en colores neutros acentuando la armonía del espacio. El diseño del interiorista Aurelio Vázquez cuidó que Silvette tuviera una vista muy atractiva desde el exterior aprovechando al máximo su fachada completamente acristalada.
Créditos del Proyecto
DIN Interiorismo
Interiorista: Aurelio Vázquez
Ubicación: Ciudad de México, Michoacán
Comunicación: Círculo Cuadrado.
Área: 58.70 m2
Año: 2018
Fotografía: Arturo Chávez Lopez.





