PROPERMAR
UG Arquitectos
Propermar es un edificio de oficinas. La función busca albergar en la planta baja un espacio comercial y acceso, dos niveles de oficinas para una empresa naviera y en un tercer nivel, vivienda. El concepto trata de emplear formas y materiales que dialoguen con figuras marineras, pudiendo remitir a botes apilados en un muelle, al velamen de un velero,a claraboyas, o hasta burbujas dentro del agua. En todo caso se busca transmitir visualmente la idea de movimiento y afinidad con el mar.
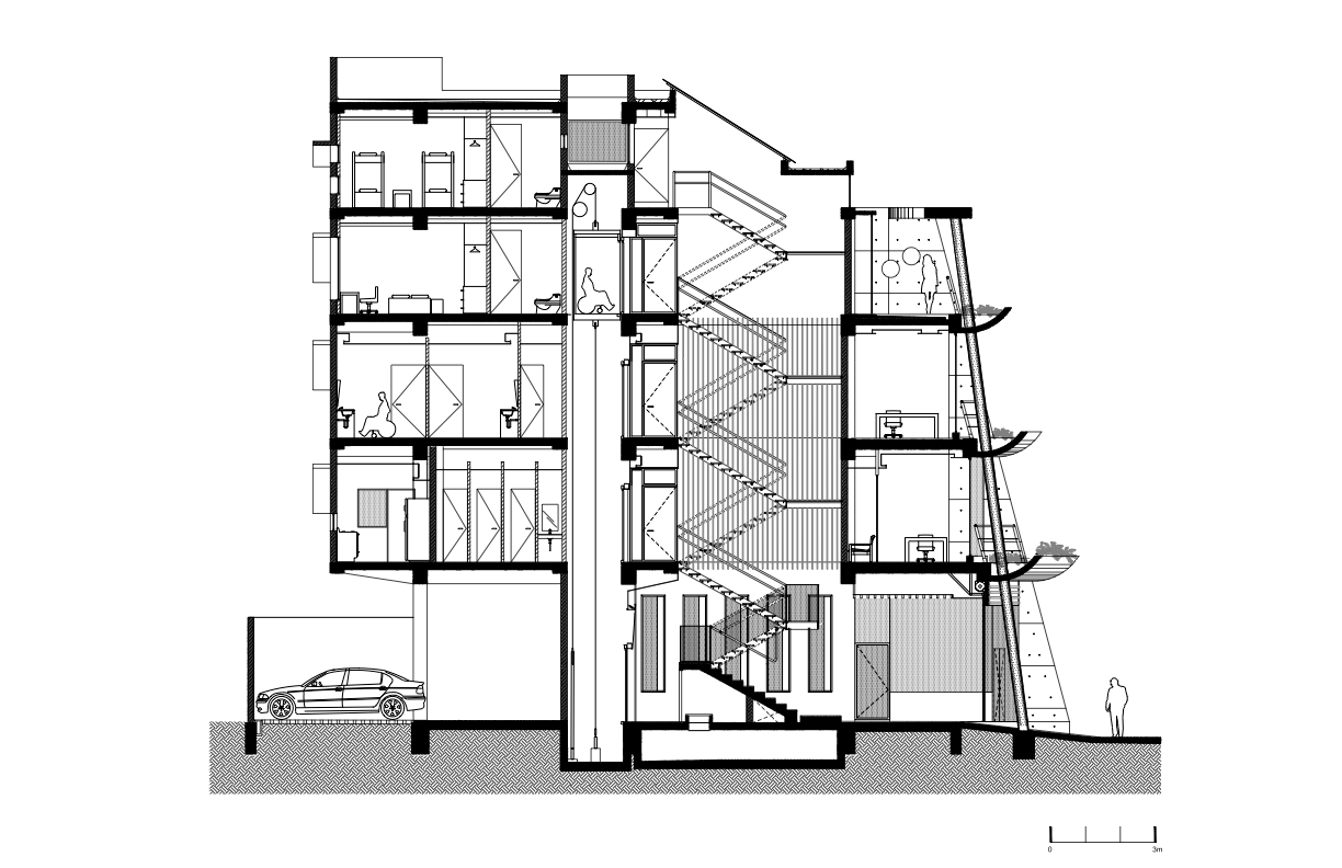
La fachada principal se distingue contundentemente por tres voladizos semi curvos que son atravesados por un puntal estructural de color blanco que remite a un mástil. Estos voladizos circulares de concreto blanco pigmentado aparente, son utilizados con el múltiple propósito de proteger del asoleamiento directo, albergar terrazas con jardinería que mejoranla vista y la temperatura, así como para cortar las visuales directas inmediatas desde el exterior.
Esta fachada se va alejando del paramento hacia la calle conforme la cota asciende, y en planta baja el paramento se retrae respecto de los vecinos para formar un espacio a manera de zaguán o vestíbulo exterior, buscando generar un espacio de encuentro y transición entre lo público y lo privado. Así se pensó a manera de integrar el edificio al contextoy dar escala evitando lo disruptivo.
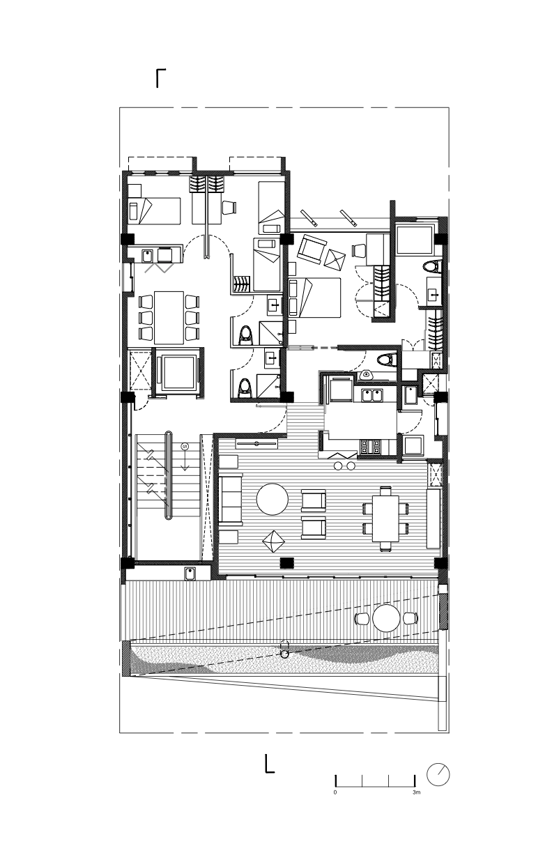
Formalmente, la colindancia izquierda mantiene un plomo vertical, mientras que la de la derecha se inclina hacia dentro del predio, junto con el paño de las losas de cada nivel a manera ascendente, tratando de generar un ritmo cambiante en perspectiva para el observador conforme avanza sobre la calle o se aproxima al edificio. La losa con la cota más alta sobre la fachada hace un gesto de cierre entre las dos colindancias, a la vez que enmarca y sombrea una terraza para la única vivienda del edificio, la cual goza de vistas privilegiadas hacia el antepuerto de Veracruz. Este gesto de enmarcar y delimitar toda la fachada del edificio con un elemento de concreto de sección constante se pensó acorde al concepto de diseño total de Gio Ponti.
Constructivamente, para la fachada principal y vista hacia la calle se utilizó concreto blanco pigmentado aparente, material escogido debido a su moldeabilidad, resistencia al medio ambiente y bajo mantenimiento. Para el resto del edificio se utilizó el sistema de marcos rígidos de concreto armado y losas de vigueta y bovedilla de cemento, por tratar de utilizar el menor andamiaje posible y disminuir el desperdicio de madera.
Se incluyó un elemento metálico, en este caso un puntal circular que trabaja como columna central. Este elemento se galvanizó por inmersión previamente a su colocación en la obra y se ligó estructuralmente a las trabes y losas de concretoblanco pigmentado para que hiciera su función de carga.
El zaguán-vestíbulo, así como las áreas de circulación y servicios permiten el encuentro entre los usuarios del edificio, en pro de la convivencia humana. Los balcones con áreas verdes y terrazas permiten esparcimiento y gozo para la tranquilidad de los habitantes y visitantes del inmueble. Considerando también a personas con movilidad limitada, edificio permite el desplazamiento sin escalones ni barreras desde la acera con una silla de ruedas a cada nivel del edificio, a través del elevador dimensionado para tal efecto.
El núcleo principal de circulaciones verticales está ocupado por un elevador, ductos de instalaciones y una escalera metálica que podría estar dentro de un barco. Su primer descanso se sostiene por medio de un tensor -con un juego deconexiones que se utilizan para izar y mover los contenedores de un barco carguero-, como gesto para quién por familiaridad lo reconozca. Este núcleo principal distribuye la circulación en cada piso hacia un módulo colindante que alberga baños generales y hacia las plantas libres de oficinas, pero también funciona como elemento de ventilación, pues se generó un tiro de ventilación, tomando aire del exterior a través de ventanas en la planta baja y de los canceles de piso a techo en los pisos intermedios, desfogando el aire caliente hacia la parte superior apoyado por otro flujo de ventilación en sentido horizontal, que se logra abriendo dos ventanas situadas en la parte más alta de este espacio de circulación de cuatro pisos de altura, generando un efecto de chimenea. A la cancelería de piso a techo en los pisos intermedios se le colocaron celosías de madera como protección hacia el vacío y como cortantes de vistas desde el pasillo de acceso, permitiendo así ventilación e iluminación natural gracias a este tiro vertical que a la vez es circulación vertical.
Cabe destacar que este elemento que funciona como una chimenea fue considerado desde el inicio del planteamiento, ya que uno de los requerimientos del cliente -a quien no le gusta el aire acondicionado-, fue que el edificio pudiera funcionar sin climatización artificial, lo cual plantea un reto importante sobre todo con el clima del puerto de Veracruz, sin embargo se cuenta con aire acondicionado fan and coil y mini split de tecnología inverter como apoyo; su agua de condensación es vertida en las jardineras de la fachada principal para su aprovechamiento, en vez de conducirla al drenaje, como regularmente se acostumbra.
También se desarrolló un modelo sustentable para uso y gestión del agua, proponiendo un sistema semi-cerrado con recuperación de agua pluvial como abastecimiento principal en época de lluvia. El agua necesaria para satisfacer las demandas del edificio se almacena en un sistema integrado por una cisterna que contiene agua prefiltrada –o agua cruda-, misma que una vez almacenada, se impulsa a través de un sistema de presión directa y se hace pasar por un sistema de filtros de arena (lecho profundo) y carbón activo a fin de dejarla en condiciones adecuadas para consumo humano. El agua ya potabilizada se almacena en un sistema de tinacos para distribuirla por gravedad a cada uno de los consumos.
Eléctricamente es un edificio autosuficiente por el empleo de iluminación led de bajo consumo y el uso de celdas fotovoltaicas, algunas de ellas empleadas, como ya se dijo, como parteluces en la fachada sur-poniente.
Créditos del Proyecto
Arquitectura: UG Arquitectos, Arq. Luis Edgar Ugalde Tuero.
Colaboradores: Guadalupe Ochoa, Diana Márquez, Alejandra Cortés, Cecilia Suárez, Francisco Téllez.
Estructura: Diopsa
Sistema de gestión de agua: Centro Día.
Instalación eléctrica y sistema fotovoltaico: Maya Electro.
Sistema contra incendios: DAF y asociados
Aire acondicionado: Ruta
Cancelería: Ferco | Vidrios San Martín.
Carpintería: AD Ambientes | Ricardo Díaz Herrería: T-Ing.
Ubicación: Veracruz.
Área de Terreno:297 m2
Metros Construidos: 896 m2
Año: 2021.
Fotografía: The Raws, Gabriela Sarahí.




