Museo Santiago Carbonell
Miguel Concha Arquitectura

Ubicado en el centro histórico de la ciudad de Querétaro, el museo busca acercar el arte a la población en general, en donde se exhibe una interesante muestra de obras que ilustra la carrera del afamado pintor Santiago Carbonell.
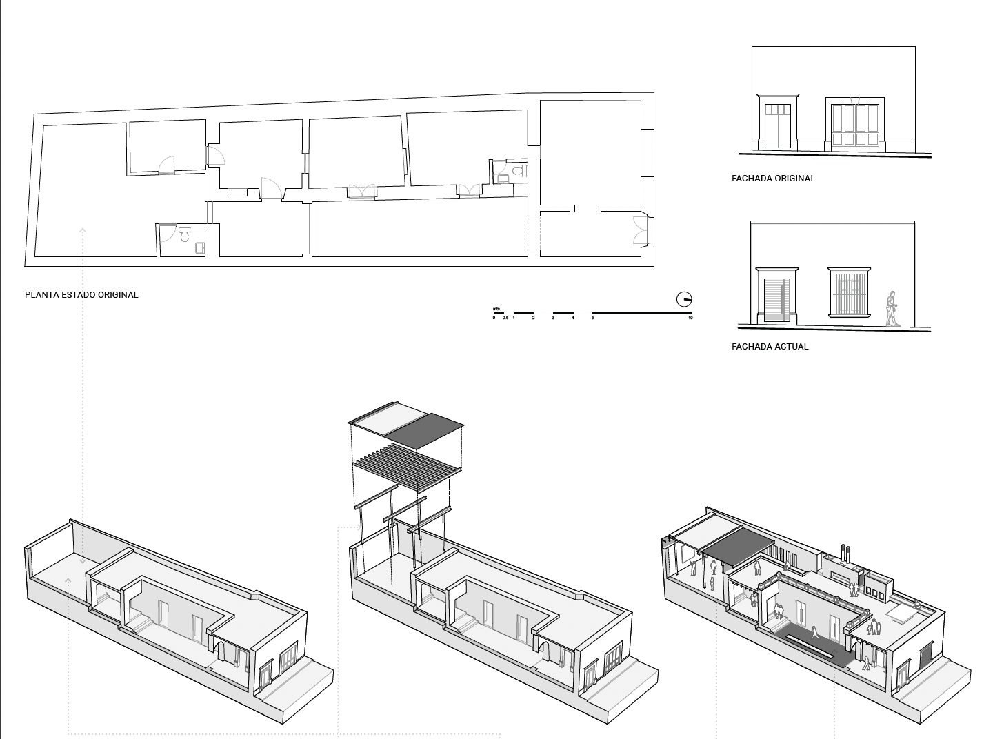
En una casa que data del año 1760, es la materialización de un proyecto con más de una década de planeación, cuyo objetivo central es el desarrollo cultural de la ciudad.
La estrategia de reutilización del edificio existente, parte de recuperar la estructura original y realizar modificaciones menores que permitieran la adaptación del inmueble a su nuevo uso y optimizar la operación del museo. Las que antes fueran habitaciones, ahora son galerías que resguardan importantes obras de arte. La galería principal se crea gracias a los elementos de acero que sostienen la nueva cubierta, una estructura ligera que no afecta la integridad de la estructura original.
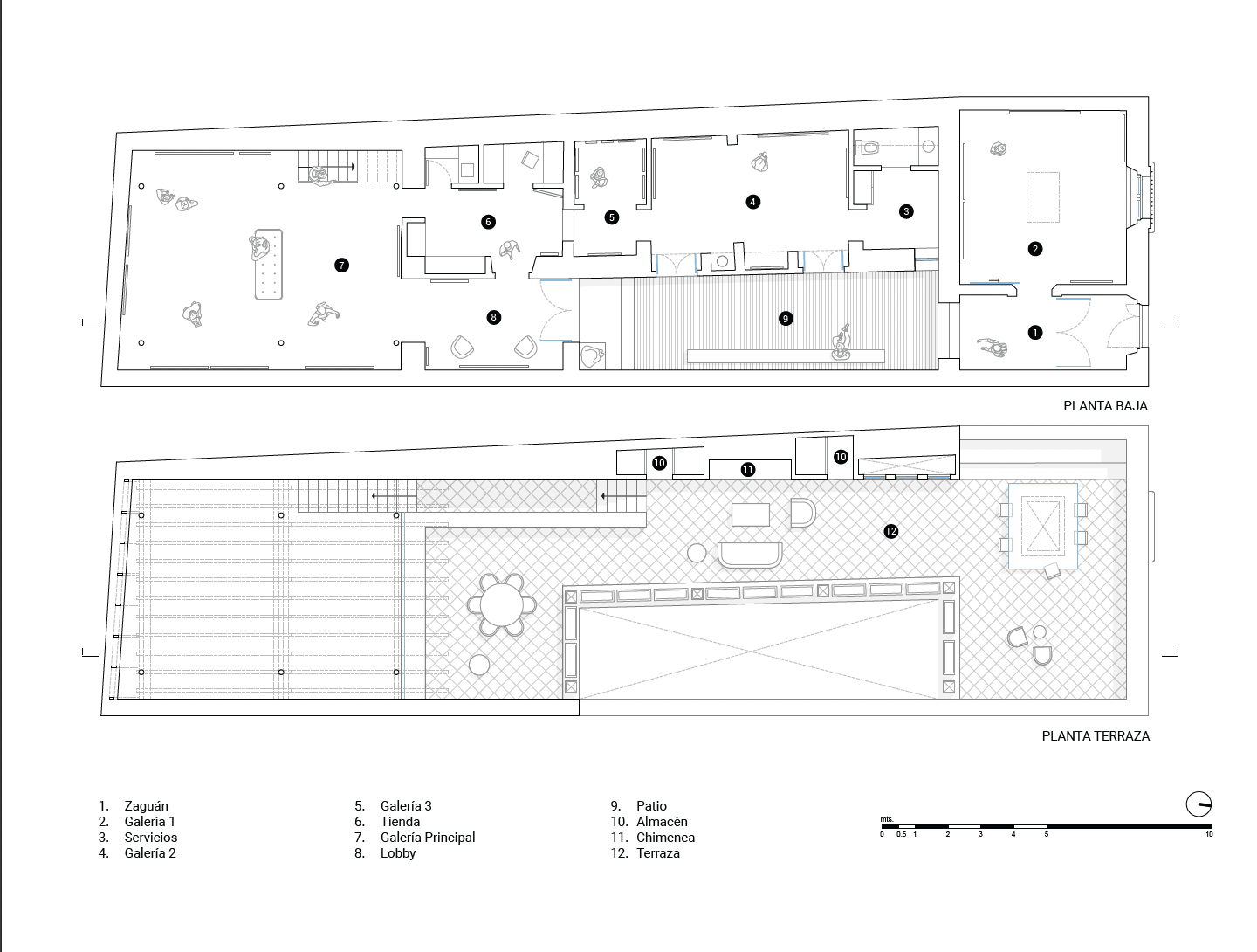
Un patio, distintivo de las casas queretanas de la época; conecta e ilumina a todas las galerías. Arte, arquitectura e historia interactúan conjugando todo en una atmósfera atemporal. Parte de la obra y colección personal del artista ha sido trasladada a las instalaciones del museo, ahí la gente puede tener acceso gratuito a las exposiciones y programas que ofrece la fundación abriendo la posibilidad de otra forma de ocupar este espacio.
Cuenta con salas de exposición, un área de servicios para el museo, una tienda y una terraza desde la cuál se contempla el paisaje. El acervo permanente está basado en la colección privada del artista, con algunos cuadros que ha ido rescatando y otros tantos conservados a través del tiempo; todos ellos convergen en este espacio acogedor e íntimo que mezcla sutilmente elementos históricos robustos con estructuras ligeras, recuperando las cualidades espaciales de la antigua construcción que ha sido intervenida para adecuarse a una dínamica pública y cultural.
Créditos del Proyecto
Arquitectura: Miguel Concha Arquitectura
Ubicación: Santiago de Querétaro, Qro.
Año: 2022.
Fotografía: Ariadna Polo





