Fachada Liverpool La Perla
Miguel de la Torre Arquitectos

El proyecto está ubicado en el Centro Comercial Distrito La Perla, en la Ciudad de Zapopán, Jalisco, México. Es un ejercicio de integración urbano que conjuga la modernidad por medio de la arquitectura y la tradición en las actividades de la comunicad jalisciense.
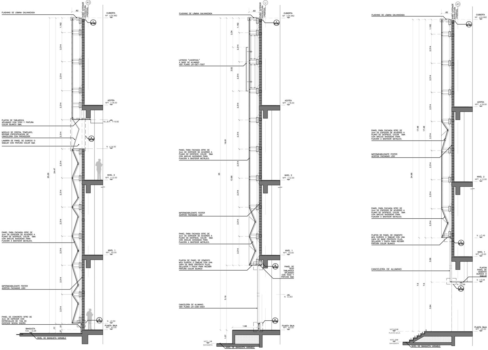
La fachada converge en un vértice que forma la unión de dos avenidas, está formada por una retícula de módulos triangulares con piezas planas y en bajo relieve, las cuales forman una pirámide sustraída, que al ser girada permite múltiples variables, y al combinarla logra transmitir la sensación de movimiento. La textura va girando a lo largo de los muros de la fachada que a su vez apunta y acentúa el acceso principal a la tienda. Complementariamente al juego de relieves, la misma geometría ha sido trasladada a los vanos por medio de ventanales que enmarcan el contexto urbano exterior y que permiten la iluminación natural al interior.
La intención de esta fachada, es que conforme pasa el día, las distintas iluminaciones solares generen juegos de sombras y reflejos. Por lo tanto, la fachada siempre se ve distinta, incluso de noche, gracias al diseño de iluminación. Es importante apuntar que la escala del proyecto fue determinante para la modulación, la composición responde al gran lienzo de la envolvente, sin perder de cuenta al usuario, es interesante observar en una vista abierta cómo la figura humana es abrazada por los juegos de líneas y sus propias sombras.
La construcción de fachada está realizada a base de prefabricados de concreto blanco sobre bastidores metálicos, el material permite que el mantenimiento mínimo y al ser una pieza diseñada permite el menor número de ajustes en la colocación.
Créditos del Proyecto
Arquitectura: Miguel de la Torre Arquitectos
Ubicación: Zapopan, Jalisco.
Año: 2021
Fotografía: Jaime Navarro




