COºRDENADA Centro de Diseño
HADVD Arquitectos

COºRDENADA Centro de Diseño está conformada de 4 empresas inmersas en la creatividad. Dentro de una región en donde el proyecto arquitectónico y la cultura hacia la planeación es baja se desarrolla un espacio que fomenta un diálogo constante en búsqueda del desarrollo de la ciudad, en donde se fusionen diferentes disciplinas, como la arquitectura, el diseño, la ingeniería y el arte, teniendo como meta una mejor calidad de vida acompañados de profesionales que nutren el nuevo entorno de nuestras ciudades.
Teniendo una ubicación estratégica para que coexistan en un mismo espacio empresas y marcas que giran en torno al diseño, la arquitectura y la construcción. COºRDENADA es un escaparate de innovación y fomento de las posibilidades del diseño. Un espacio que fomenta la creatividad a partir de sus espacios flexibles que permite interactuar con productos y marcas que giran entorno de la alta especificación en la arquitectura.
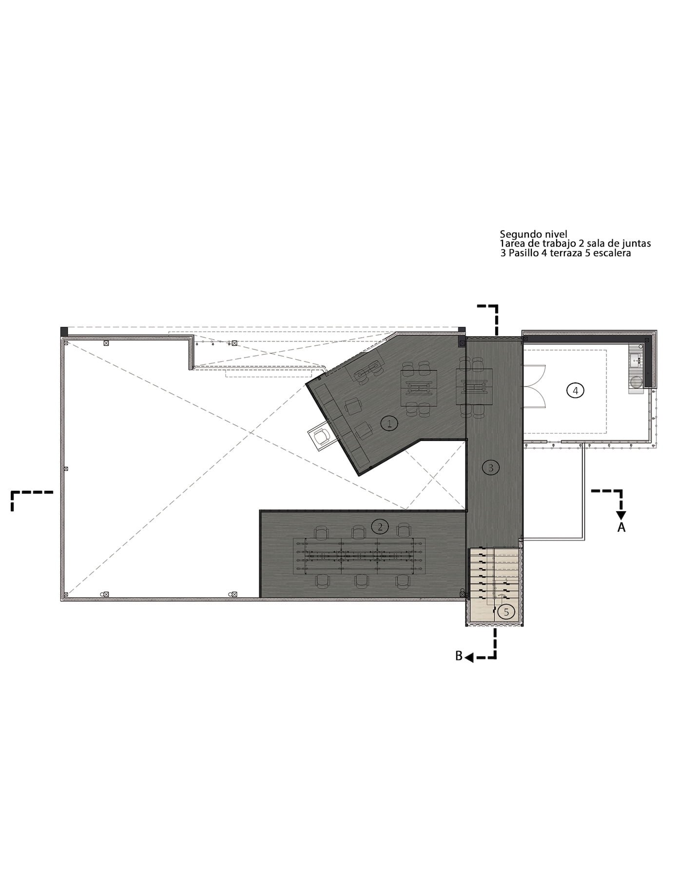
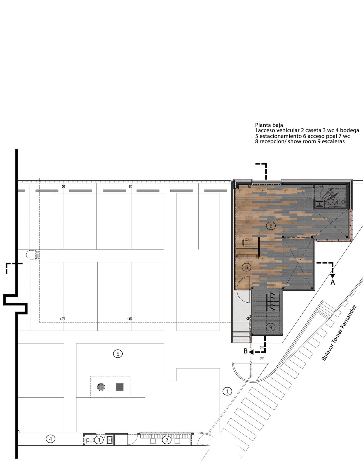
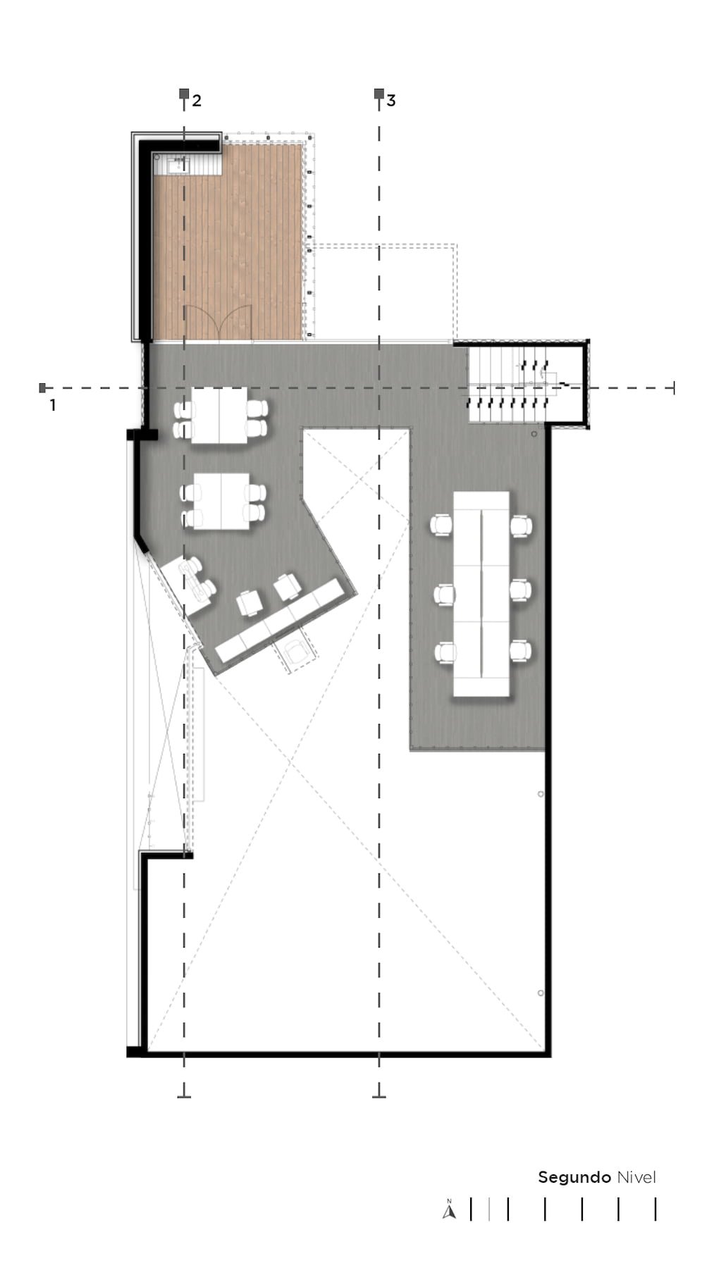
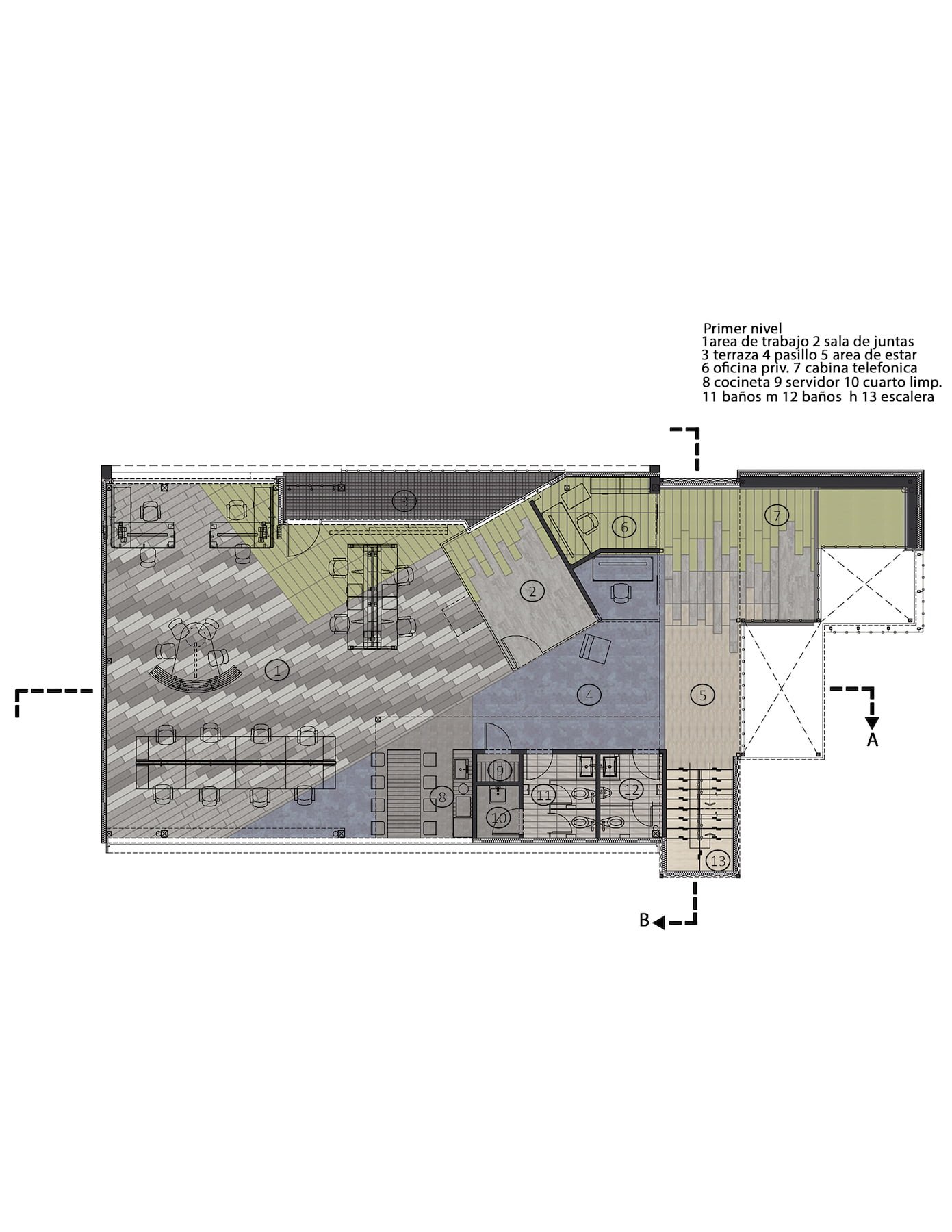
El diseño del espacio corporativo contiene una línea de arquitectura industrial que destaca en la ciudad, incluyendo el reúso de contenedores de tren como blocke distribuidor del edificio que se mezcla con materiales como el vidrio, metal y vigas estructurales visibles desde el interior del edificio los cuales realzan su principal característica. A su vez el interior mantiene una conexión con el medio ambiente, inspirados en el campo de golf con el que colinda se crea una franja con las alfombras que permita llevar el ambiente exterior hacia el interior del edificio, una especie
Con el contrastante y juego de colores del mobiliario y las cracteristicas de los sistemas se busca crear un espacio cambiante, cómodo, e innovador que conecta los diferentes tipos de diseño y que fomenta la colaboración a partir de sus espacios flexibles.
Situado en un punto estratégico como enlace entre dos fronteras, ubicado en una gran metrópolis binacional que permite fomentar una fuerte cultura del diseño en frontera y profundizar al respecto del buen diseño a travez de la participación comunitaria, en donde los diseñadores, constructores, empresarios y estudiantes se congregaran para intercambiar ideas, realizar negocios y obtener asesoría del consejo de diseño de coordenada conformado por 4 empresas juarenses enfocadas en el diseño, construcción y equipamiento.
COºRDENADA espera reducir las barreras a la adopción de un buen diseño y la baja cultura hacia la planeación y el diseño arquitectónico teniendo como objetivo promover un centro con mejores prácticas de diseño arquitectónico integrando en su esencia un recinto en donde la sustentabilidad, la eficiencia energética y la innovación sean sus ejes fundamentales.
Créditos del Proyecto
Arquitectura: HADVD Arquitectos.
Lideres de Proyecto: Hugo Alonso Amparan De Leon / Carlos Eduardo Villegas Duarte.
Colaboradores en diseño: Guillermo Morales, Mariana Aguirre, Victor Guzman, Josimar Bocanegra. Construcción: DYCA / LAPIN Construcción.
Equipamiento:Artificio Arquitectura Interior
Paisaje: LOSE Verde / Karla López Sepulveda.
Ubicación: Blvd. Tomas Fernandez 8440, Colonia Partido Doblado, CP 32424, Cd. Juárez, Chihuahua.
Área: 420 m2
Año: 2017
Fotografía: Oscar Hernández.




