CONCEPT OFFICES
MATERIA

El proyecto propone, mediante su diseño interior, un espacio funcional y estéticamente sobresaliente que incita al desarrollo, colaboración y convivencia laboral con una espacialidad fuera de lo convencional, fresca, alegre y que representa al corporativo con una propuesta que también habla de la propia marca, aunque no se apegue a la idea tradicional de una oficina.
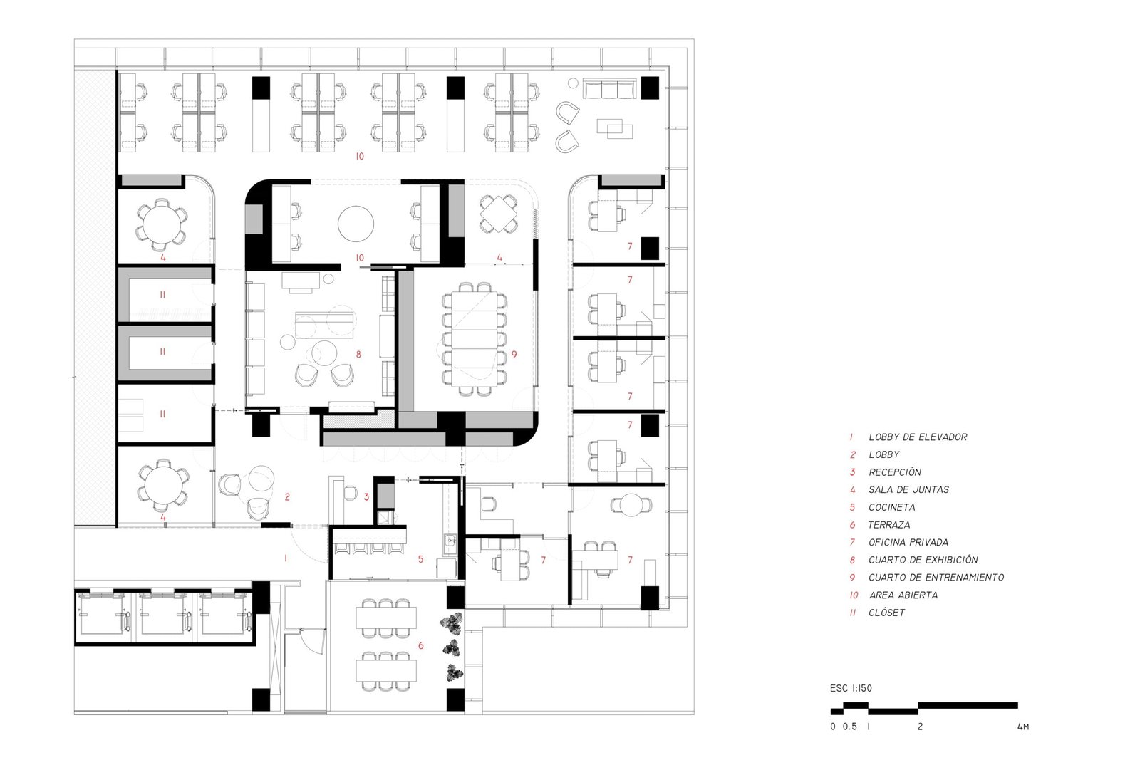
El diseño resulta de un estudio de las dinámicas de trabajo dentro de la empresa, la propuesta conecta todos los espacios a una vista al parque, mediante una configuración de espacios privados y de uso común, en un entorno de comunidad.
La característica principal, si debe decirse, es que se ha optimizado el espacio, las condiciones naturales del mismo y los materiales.
El concepto se basa en la referencia de color como agente de vitalidad, inspiración y elegancia; se creó un recorrido sensorial mediante cromáticas intensas que van de lo cálido a lo fresco, dependiendo del punto de este recorrido. Las instalaciones son expuestas, pero se integran como parte de la composición del espacio, se puede leer claramente la honestidad del diseño y cómo se integran al espacio.
El impacto en el entorno se propone mediante el manejo de la incidencia social y los elementos arquitectónicos, se delimita la espacialidad/propiedad de los usuarios, siendo esta una de las cualidades y calidades del espacio, se rompe con el esquema tradicional de una oficina, creando una atmósfera elegante, pero fresca que envuelve al usuario en un contexto en el que puede ser productivo, estar enfocado en su labor diaria y en la que se siente abierto, incluso en espacios cerrados.
El diseño está alineado a los criterios de certificación LEED propios del edificio en el que se encuentra esta oficina, por lo que existe un consumo optimizado del aire acondicionado, lavado de aire, iluminación y lo que implica el proceso de materiales, destacando su desempeño energético y ambiental.
Créditos del Proyecto
Arquitectura: Materia
Lideres de Proyecto: Gustavo Carmona
Colaboradores: Karla Uribe, Alejandra Alén, Fernanda Méndez
Año: 2022
Fotografía: Jaime Navarro





