Complejo Cultural Universitario Edificio Central
CCUNEC

Fungiendo como uno de los moradores principales del conjunto Rosalino, frente a la plazuela rosales, se encuentra el Edificio Central de la Universidad Autónoma de Sinaloa, símbolo tangible de la transformación y desarrollo del estado de Sinaloa.
Dicha edificación sincrética, presenta un estado riesgoso en su fisionomía. Tras esta problemática y la necesidad urgente de la universidad por dotar de cultura al noroeste del país, nace el proyecto Complejo Cultural Universitario Edificio Central.
La propuesta consiste en la restauración del edificio existente y su adecuación como centro cultural universitario. Como primera instancia, se plantea la dignificación de elementos vestigios, retirando las cargas innecesarias y liberando lo no acorde a su fisionomía.
La eliminación de las cargas de entrepiso en el edificio dejará cicatrices visibles en los muros. Inspirado en la filosofía del kintsugi, estas “heridas” no se ocultarán, sino que se enmarcarán, mostrando la historia y las múltiples intervenciones que ha sufrido el espacio. Permitiendo que cuente su propia historia a través de su estructura y apariencia. De este modo, el edificio no solo conservará su funcionalidad, sino que también se enriquecerá con un sentido de continuidad histórica y estética.
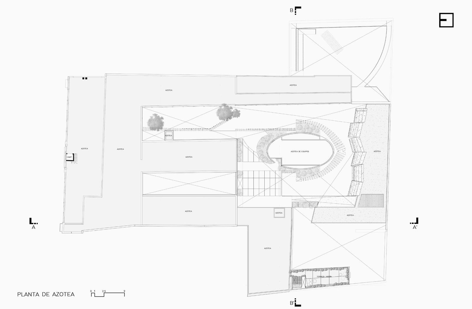
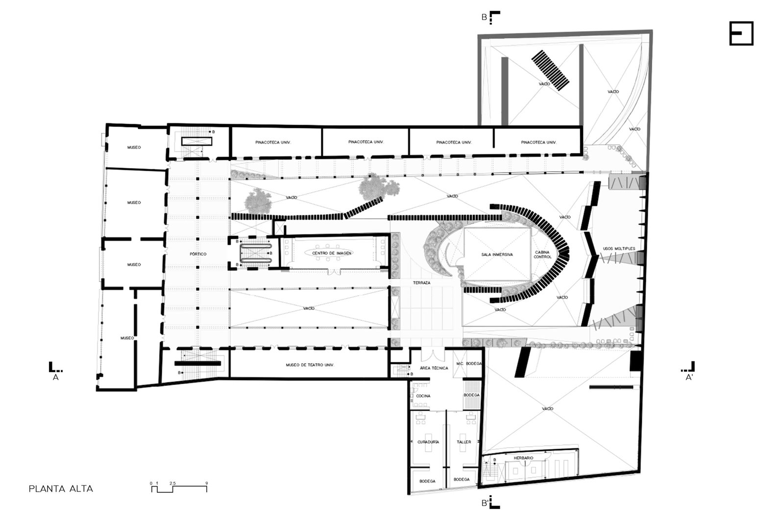
Para dotar al edificio las funciones culturales, se genera un volumen de respaldo que complementa el programa arquitectónico. Este anexo contemporáneo estará compuesto de elementos prefabricados de concreto y estructura metálica, preservando así la integridad de la edificación patrimonial.
Esta ampliación contemporánea de dos niveles proporcionará accesibilidad universal a todo el complejo cultural, actuando como conector de calles colindantes (oriente-poniente), ofreciendo opciones seguras para los peatones mientras da vida a espacios como; foro al aire libre, túnel universitario, curaduría botánica, usos múltiples, sala inmersiva, patios y terrazas que, con su paisaje, generarán diversas atmosferas.
Se crearán conexiones mediante puentes que integrarán a lo largo de un recorrido, el edificio histórico con el anexo contemporáneo. Logrando además que el proyecto se asome más allá de sus límites contemplando diversos iconos de la ciudad, lográndose por su topografía y niveles.
El Complejo Cultural Universitario ofrecerá recreación, educación, difusión e investigación, creando a su vez una experiencia sociocultural contemporánea. Con un enfoque en la formación integral de los estudiantes se posicionará como uno de los principales atractivos artísticos y turísticos de la región.
Además de generar conciencia sobre el aprovechamiento de recursos naturales mediante sistemas de polinización, energía limpia y cuidado del agua. Los materiales propuestos transmitirán fortaleza, pureza y sinceridad, logrando que el CCUNEC se convierta en una obra arquitectónica que envejezca con dignidad.
Créditos del Proyecto
Arquitectos a Cargo: Marco Torres
Diseño arquitectónico: Marco Torres, Ysmael Baez, Fernanda Paniagua, Dulce Nava Ayón, Juan José Moreno, Diana Low, Fernando Navarro.
Equipo de restauración: Walkirya Angulo
Proyecto cultural: Carlos Maciel Sánchez, Jesús Madueña Molina, Homar Medina, Alejandro Mojica, Laura Verdugo, Azucena Manjarrez, Valeria Millán.
Fotografía: Luis Brito
Ubicación: Culiacan, Sinaloa.
Créditos Renders: Ysmael Baez, Diana Low, Fernanda Paniagua, Juan José Moreno, Dulce Ayón, Fernando Navarro.
Prácticas profesionales y servicio social: Dannia Moreno, Gustavo Rojo, Eduardo Diaz, Juan Carlos Diaz, David Gonzales, Aleidy Cazares, Guadalupe Aispuro, Alondra Corona, Pedro Gastelum, Alejandro Betancourt, José Mendoza, Loredana Amelio, Natalia Noriega, Miguel Anzaldúa, Alexia Mayorga, Emmanuel Santos, Ximena Ochoa, Yessely Gallegos, Adrián Pérez.





