RIMA Arquitectura
Este proyecto corporativo es una intervención de seguimiento a la primera fase de la remodelación realizada por RIMA Arquitectura en 2013. Debido al crecimiento del personal de Altius, una empresa de marketing y creación de marca, se solicitó un plan que reinterpretara en el espacio todos los cambios organizacionales de los últimos años, sin dejar de lado la personalidad creativa de la marca.
Con la finalidad de alcanzar un resultado óptimo, se analizó la relación de flujos entre cada una de las diferentes áreas; la iluminación natural que recibirían y las formas de trabajar específicas de la empresa y sus colaboradores. Este análisis fue el sustento y guía para decidir los trazos, formas, colores y acabados de diseño que contribuyeran a obtener un funcionamiento óptimo y lograr ambientes adecuados de trabajo.
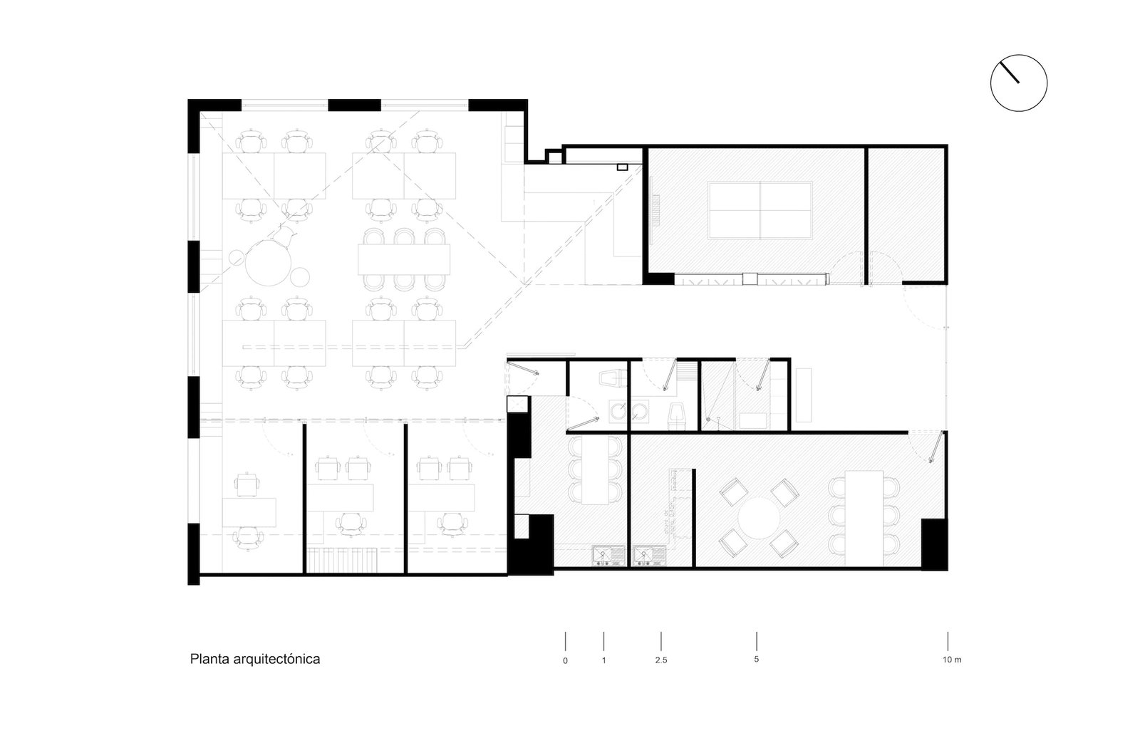
Anteriormente, la configuración organizacional estaba compuesta por oficinas privadas y pocas zonas abiertas; esta fragmentación entre el área pública y privada no permitía aprovechar al máximo las instalaciones y se contraponía a la nueva operación, por lo cual, el nuevo objetivo fue generar una atmósfera abierta con iluminación natural y áreas que permitieran diferentes formas de trabajo: desde el clásico trabajo individual, en tu propio escritorio, hasta el trabajo colaborativo a puerta abierta o cerrada.
La entrada es a través de un lobby, envuelto por un muro de madera rústico, que se despliega y se convierte en el pasillo y conduce al área común. Aquí, el elemento principal es una grada en triplay de pino, forrada de cojines en los asientos para hacerla cómoda: un espacio dinámico para trabajar, realizar juntas y conferencias. En el resto de área se ubica la zona de trabajo común con mesas continuas de OSB laqueado y, frente a ella, se ubican secciones privadas con puertas de vidrio. El uso de la madera rústica y OSB además de ser materiales reciclados que otorgan sustentabilidad al proyecto, otorgan una personalidad distintiva de las oficinas de Altius, junto con los plafones asimétricos de color azul y una línea continua de luz LED que cubren tan sólo una parte de la losa encasetonada expuesta.
Realizar los cambios necesarios en oficinas que fueron proyectadas por nosotros hace siete años, fue una oportunidad para entender cómo han cambiado las formas de trabajo en el mundo corporativo y su relación con el espacio. Los privados, se requieren cada vez menos, dada la importancia que han adquirido los procesos colaborativos en el día a día; por lo cual, el gran reto fue generar espacios transparentes en funcionamiento y disposición.
Créditos del Proyecto
Arquitectura: RIMA Arquitectura / Ricardo Urías.
Ubicación: Ciudad de México.
Área: 139 m2
Año: 2020.
Fotografía: Frank Lynen.




