ARQMOV WORKSHOP
El proyecto se localiza en Ciudad Juárez, Chihuhua, México. Se trata de una ciudad que limita con Texas, Estados Unidos; y por lo tanto posee características propias de una urbe fronteriza. Los habitantes de ambos lados, viven las “twin cities” como una, en donde se sincretizan dos culturas.
Rocco Cantabria debía ser un Restaurant – bar que no pudiese encasillarse dentro de un estilo particular, así como tampoco sentirse como un espacio estandarizado. Como premisa de diseño, se partió de la idea de un espacio de restaurant y café; cálido, elegante, pero no pretencioso o exuberante; en donde cada rincón fuese realizado a medida, destacando las particularidades del interior.
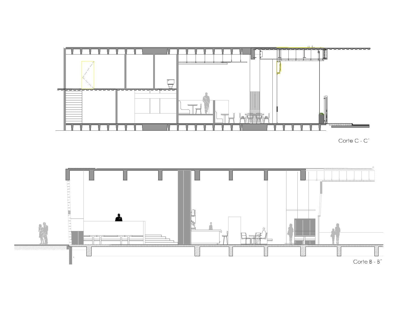
El espacio dispuesto para trabajar el interiorismo era una caja de doble altura de cristal con hormigón visto en sus columnas y losas casetonadas. Un área despojada, moderna en donde debíamos mantener el atractivo de las vistas hacia el exterior, pero protegiendo al interior de la incidencia directa de la luz solar.
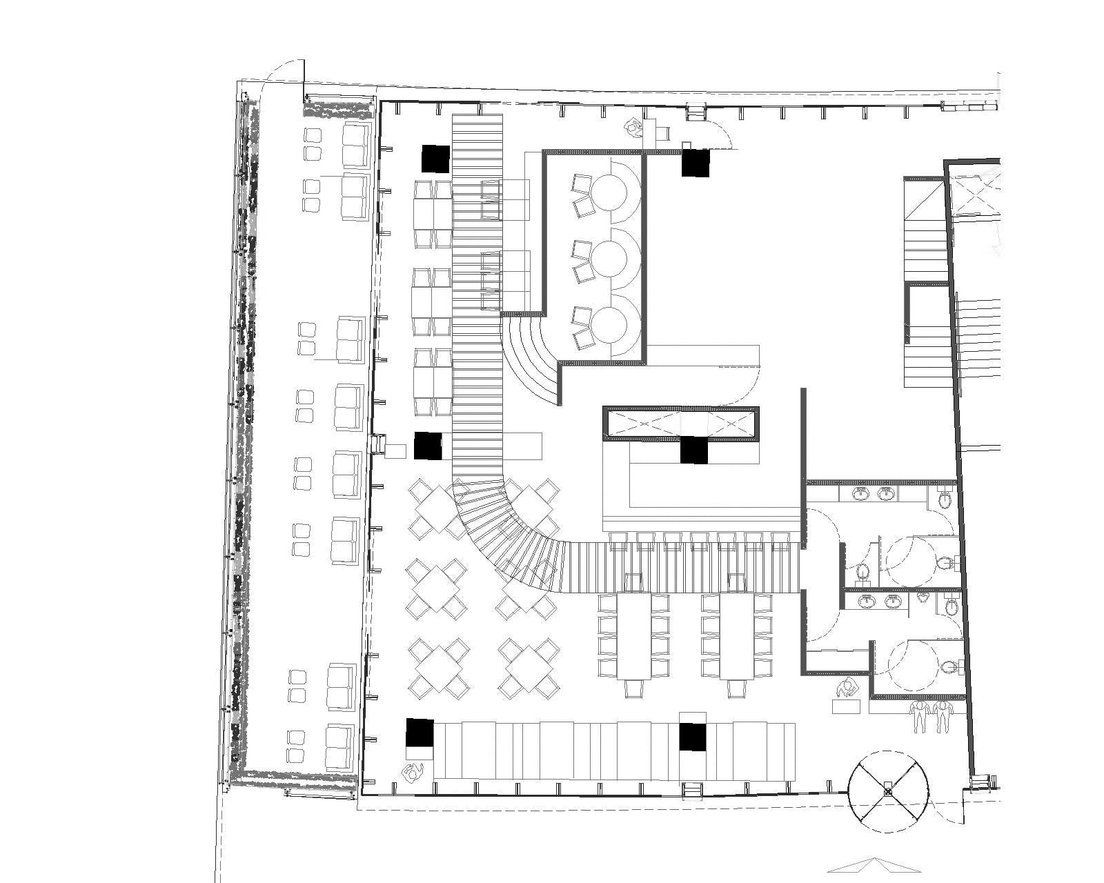
El área de cocina y sanitarios no fue reorganizada debido a la tubería de ventilación, limitando nuestro espacio para comensales. La zona de apoyo a servicios se concentró en un mezzanine de 95 m2. El espacio exterior con 84.66 m2 posee capacidad para 32 comensales, mientras que el interior cuenta con 273.44 m2 de superficie y alberga a 104 comensales.
Retomando la idea de la elegancia, pero sin caer en la ostentación, se recurrió a trabajar elementos particulares con reminiscencias del Art Déco. Ejemplo de esto son el logotipo en impreso sobre el cristal en la barra, las superficies de granito negro curvas y pulidas de la barra y la escalera, la geometría de líneas en pisos, el tratamiento del techo a partir de elementos cromados de cobre, entre otros. Esta relación entre la expresión moderna/industrial del hormigón visto y los detalles que aluden a otra época, se ve atenuada por el uso de madera como símbolo de neutralidad y como principal material en el interior. En cuanto al color, se trabajó una paleta neutra que hace del lugar un sitio elegante y sobrio.
Para crear diferentes áreas dentro de una planta libre, empleamos mobiliario hecho a medida, como elemento divisorio de la misma arquitectura; permitiéndonos formar, pequeños espacios acogedores. Todos los materiales y texturas utilizados concluyen en un sitio agradable que busca el deleitarnos con la gastronomía mexicana.
En cuanto a la iluminación, se viven dos experiencias diferentes; durante el día la luz natural atraviesa los cristales de la fachada y contrasta con el efecto que se logra una vez que baja el sol. Por la noche tenemos iluminación led, cálida, tenue y sutil para ambientar escenas de reunión y confort. Algunos elementos como la barra, se acentúan con una luz guía que acompaña su recorrido tanto en el techo como en la base.
Rocco Cantabria provoca en los usuarios una experiencia espacial única, en un lugar con diferentes ambientes. Pese a que logramos conformar un espacio que se visualiza unificado, es posible vivirlo y usarlo de diversas maneras.
Créditos del Proyecto:
Arquitectos a Cargo:
Fabio Correa Martínez, Eduardo Micha Mizrahi y Gabriel Merino.
Equipo de Diseño: Patricia Pérez, Christian Rodriguez, Santa Ana, Oscar Osorio Santos, Maricruz Pérez Mendoza, Daniel Miranda Rendon
Clientes: Luis Monrroy Fernandez
Ingeniería: Martín Corral.
Año:2018
Superficie construida:445 m2
Ubicación: Cd. Juarez
Fotografía: Rafael Gamo.





